Пошаговая инструкция изготовления столешницы
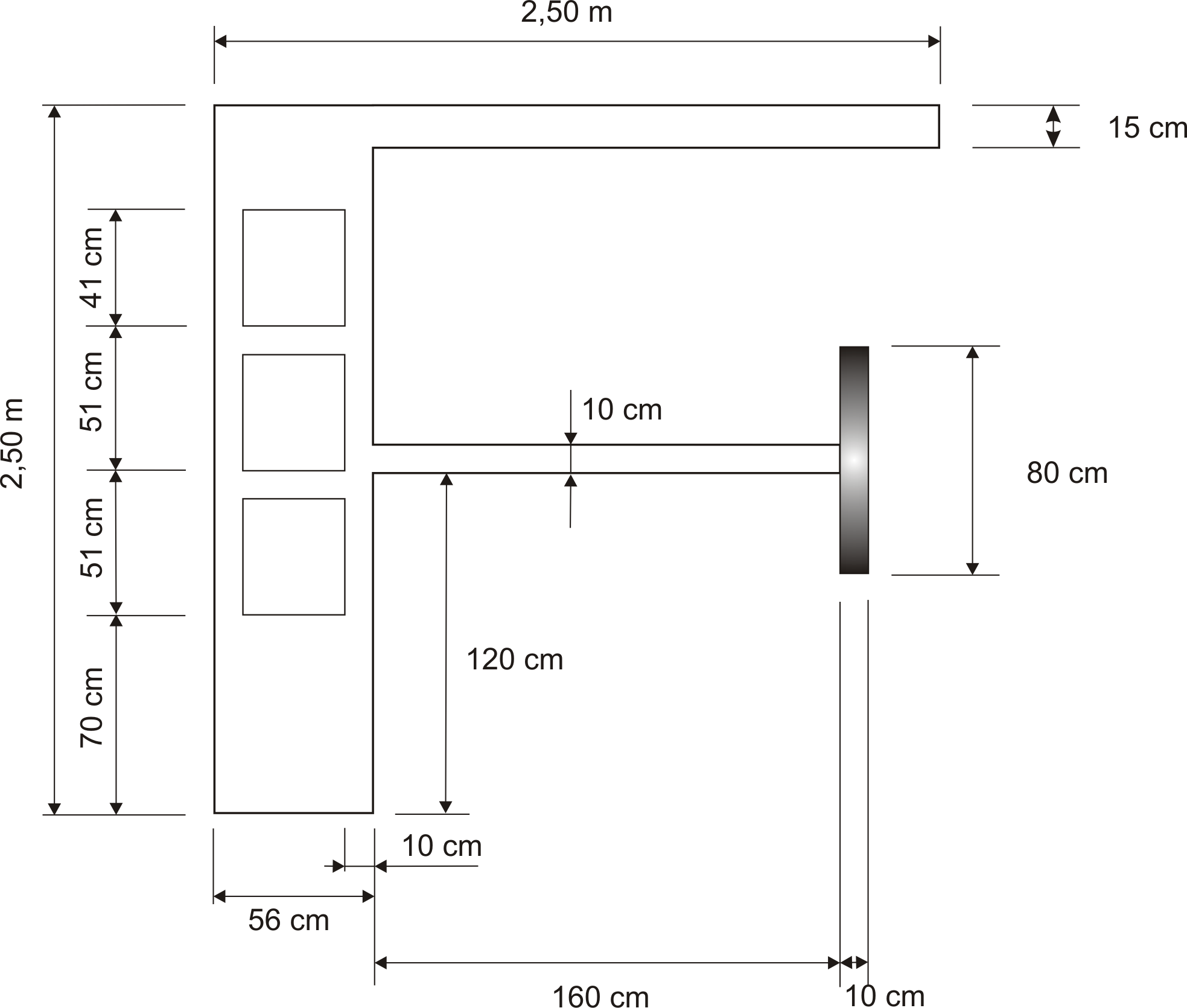
Чертеж с размерами столешницы из гипсокартона
Чтобы сделать монтаж столешницы из гипсокартона в ванной комнате, следует определиться, где она будет расположена. Удобнее всего её монтируют вокруг раковины, сооружая рядом нишу для стиральной машинки. Это выглядит современно, практично.
Необходимые материалы и инструменты
Для проектирования и монтажа столешницы в ванной комнате необходимы инструменты:
- Простой карандаш, лист бумаги, линейка.
- Метр или рулетка.
- Набор отверток разной длины и типов.
- Ножницы для резки металла.
- Набор шпателей.
- Водяной уровень.
Необходимые материалы:
- Влагостойкий «зеленый» гипсокартон.
- Металлические профили разного типа.
- Саморезы для различных поверхностей.
- Шпаклевка для гипсокартона влагостойкая.
- Клей.
- Армированная лента.
- Плитка или мозаика.
- Крестики для плитки.
- Специальная затирка.
- Силикон или другой водостойкий изолятор.
Количество материала рассчитывается после снятых замеров.
Проектирование и нанесение разметки
Для того чтобы приступить к монтажу каркаса столешницы, необходимо начертить схему, с точными замерами и нанесением всех важных точек. Для этого следует:
- Сделать замер длины в месте будущей столешницы.
- Высчитать высоту и ширину конструкции.
- Все полученные данные зафиксировать на бумаге. Следует начертить все линии, указать места креплений.
Важными являются замеры раковины, её диаметр, поскольку они разные. Для более точного чертежа нужно сделать контур по раковине на картоне. После того когда будет полностью спроектирован чертеж, все данные переносятся на стену и пол. Линии чертятся при помощи уровня и уголка. Требуется на данном этапе работы соблюдать точность построения рисунка. А также наносить точки креплений и места для укрепления конструкции.
Преимущества полок из гипсокартона
Перед тем как мы начнем разбирать эти конструкции подробно, стоит отметить, что простой гипсокартон для этого помещения применять нельзя. Для этого есть специальный вид влагостойкого гипсокартона – плиты зеленого цвета, которые пропитаны специальным составом, защищающим материал от грибковых образований и влаги. Преимущества полок из ГКЛ:
- сделать можно полочки индивидуальной конструкции, не нужно бегать по магазинам в поисках нужного фасона;
- можно выбрать любой цвет и фактуру, при этом в любой ситуации можно поменять дизайн помещения, просто перекрасив полки;
Гипсокартонные полки в ванной
- полки, смонтированные правильно, могут выдержать большой вес;
- какой бы ни была сложная конструкция, стоимость ее будет небольшая;
- материал экологичный, и невредный для человека;
- смонтировать полки можно самостоятельно, и достаточно просто и быстро;
- благодаря гибкости материала из него можно создавать конструкции любой формы: ломаными, полукруглыми, угловыми, прямолинейными, фигурными, встроенными.
Именно благодаря невысокой стоимости и простоты в монтаже, гипсокартон завоевал свою популярность у строителей и обывателей. При этом конструкция, выполненная по всем правилам, не будет уступать аналогичных объектам, сделанным из МДФ или доски, а работать с гипсокартоном гораздо проще. Создать полноценную полку из гипсокартона в ванной комнате можно пользуясь следующей структурой:

Пример полки из гипсокартонна в ванной
- Создание плана.
- Сбор материалов и инструмента.
- Проведение разметки.
- Сборка каркаса.
- Облицовка системы.
- Финишная отделка.
Приведенная выше последовательность процессов является оптимальной и дает возможность провести строительные работы по максимуму. Кроме того, использование подобной структуры позволяет получить качественное изделие, способное выдерживать большие нагрузки.
Окончательная отделка ↑
Чаще всего конструкции из гипсокартона шпаклюют, подготавливая тем самым к финишной отделке. На этом этапе не следует забывать про грунтовку, которая в обязательном порядке должна предварять шпаклевку. Чтобы получить идеально ровную поверхность на стыки листов наносим слой гипса или шпаклевки и заклеиваем специальной армирующей сеткой. Поверх нее вновь кладем шпаклевку. Не забываем закрыть углы специальными монтажными уголками и зашпаклевать. После подсыхания наносим финишный слой отделки. Даем материалу окончательно высохнуть и с помощью абразива зачищаем все неровности поверхности до полной гладкости. Теперь вновь наносим грунтовку, полка готова к покраске или любому другому декору.

Армирующая сетка закрывает стыки листов гипсокартона и выравнивает поверхность
Существует несколько очень интересных оригинальных вариантов отделки полочек из гипсокартона. Игра с цветом – традиционное решение, но можно еще поиграть и с фактурой. Для этого влажную шпаклевку:
- обрабатывают большой кисточкой с достаточно твердой щетиной, получая своеобразную рябь
- «проглаживают» пальцами, что дает замысловатый выпуклый узор
- точечно обрабатывают мелким шпателем, который проворачивают вокруг оси. В результате получаются округлые декоративные фрагменты.

В качестве финишной отделки можно использовать мозаику
Гипсокартон – довольно легкий в обработке материал, дающий возможность создать практически любую по конфигурации конструкцию. Это утверждение абсолютно справедливо для тех, кто имеет определенный опыт в работе с ним. Для всех остальных выполнить даже самое простое изделие будет достаточно сложно. Конечно, всему можно научиться. Но если не хочется тратить время и силы, лучше пригласить профессионалов и получить грамотное и красивое воплощение собственного дизайнерского замысла.
Технология изготовления полки с боковыми стенками
При всем многообразии ассортимента мебели для санузлов, вариантов полок, позволяющих закрыть широкую щель между стеной и бортом ванны, не существует. Поэтому самодельный бюджетный вариант полки с боковыми стенками от пола до потолка из гипсокартона остается лучшим решением для интерьера санузла.
Из-за разной ширины зазора между ванной, стеной готовых решений мебели не существует, используются самодельные полки.
Стены не нужно подготавливать, после разметки собирается каркас, обшивается листовым материалом, усиливаются углы полок, выполняется облицовка плиткой или мозаикой.
Разметка
Для обеспечения максимальной прочности конструкции следует закрепить профиль на, как можно большем количестве несущих конструкций здания. В торце ванны это две смежных стены, пол, потолок. Выбор дизайна в данном случае ограничен, можно применить разные облицовки, форму выступающих частей полок, не более того.
Инструкция по разметке выглядит следующим образом:
- на торцевую стену переносится отметка ширины ванны;
- на обеих смежных стенах вычерчиваются вертикальные линии для стоек с учетом толщины плитки, клеевого слоя, гипсокартона (обычно 25 мм);
- на полу и верхней плите перекрытия выполняется разметка под стартовый профиль;
- на стены наносятся горизонтальные линии для стартового профиля по количеству полок.
При наличии в полках подсветки размечаются трассы под штробление стен для разводки электрокабеля.
Каркас из профиля
В каркасах систем ГКЛ используется несколько видов профиля. Для полок подойдет стартовый и стоечный. Первый крепится вдоль стен на потолках, полах, второй вставляется в него, образуя ребра жесткости силового каркаса. Для симметричной конструкции пошаговая инструкция имеет вид:
- один стартовый профиль укладывается возле торцевой стены, второй крепится напротив него на потолке;
- третий кусок монтируется вдоль проекции борта ванны на пол, четвертый на плите перекрытия напротив него;
- края стоечного профиля заводятся внутрь стартовых профилей, фиксируются мелкими саморезами «семечками» или просекателем;
- дополнительно стойки каркаса крепятся к стенам подвесами (2 дюбель-гвоздя на каждый);
- из стоечного или стартового профиля по периметру полок изготавливаются ребра.
Обшивка листами ГКЛ
При наличии каркасных стенок с металлическими стойками допускается обшивка полки несколькими слоями тонкого листа (6,5 мм арочный или 8 мм потолочный ГКЛ) или использование толстого гипсокартона в один слой. После отделки плиткой такая полка выдержит, не только шампунь с зубной пастой, но и 5 кг упаковку стирального порошка.
При обшивке каркаса следует соблюдать правила:
- шляпки саморезов должны вкручиваться заподлицо, но без лишнего утапливания, для этого используются специальные биты;
- в стартовый профиль лучше вворачивать длинные, 35 мм шурупы;
- электропроводка закладывается в полки, стенки перед креплением листового материала;
- отверстия под осветительные приборы вырезаются после этого;
- в санузлах применяются листы ГСП-Н2 у Кнауф, ГКЛВ (GKBI) у остальных производителей с влагозащитными свойствами.
Правильное крепление влагостойкого гипсокартона к профилю.
Для снижения толщины полки домашние мастера засовывают два слоя гипсокартона своими руками внутрь стартового профиля, а не обшивают им каркас снаружи.
Под отделку плитки стыки не нужно усиливать серпянкой, а плоскости оклеивать стеклохолстом.
Варианты отделки
Даже влагостойкий гипсокартон не рекомендован в санузлах без дополнительной защиты от намокания. Поэтому полка должна облицовываться одним из двух материалов:
- мозаика – больше подходит для криволинейных поверхностей, конструкций малого размера;
- кафель – обеспечивает максимальный эксплуатационный ресурс полки за счет увеличения жесткости.
После укладки плитки, швы заполняются влагостойкой затиркой, как выбрать затирку читайте здесь, про плиточный клей — тут.
Таким образом, домашний мастер без квалификации в состоянии самостоятельно изготовить полки в санузле из гипсокартона под ванной, отдельно стоящего, консольного типа, с боковинами или в нише под отделку кафелем.
Укладка плитки в ванной на гипсокартон
Перед тем как класть плитку в ванной на гипсокартон, следует подготовить поверхность. Она предварительно грунтуется в 2 слоя. Далее шпаклюются все стыки с использованием армированной ленты, что предотвратит образование трещин в будущем. Готовая поверхность снова грунтуется в 2 слоя.
При отделке конструкции из гипсокартона керамической плиткой с особой ответственностью следует подойти к выбору клеевого состава. Лучшим вариантом является эластичный клей для плитки. Материал выпускается в виде сухого порошка или готовой смеси. Он обеспечивает надежное сцепление поверхности с плиткой, которая не отпадет со временем. Самым удобным в использовании является современный состав в виде жидких гвоздей, который выпускается в пластиковых баллонах. Для работы с ним понадобится специальный пистолет.

Перегородка из гипсокартона облицована плиткой и дополнена полками из дерева
Плитка на гипсокартон в ванну выкладывается согласно выбранной схеме. Начинать следует от места, которое больше всего просматривается. Каждая плитка предварительно смачивается. Клеевой состав наносится на поверхность из гипсокартона и тыльную сторону отделочного материала при помощи зубчатого шпателя. Правильное положение изделия проверяется уровнем. Следующая плитка укладывается аналогичным образом.
Между элементами располагают крестики с целью формирования ровного и аккуратного стыка. Завершающим этапом изготовления полки в ванную из гипсокартона и плитки является затирка зазоров между элементами отделки.
Облицовка мозаикой полочек из гипсокартона в ванной
Красиво и органично смотрятся полки из гипсокартона, отделанные мозаикой. Такой облицовочный материал состоит из маленьких прямоугольников или квадратиков. Существуют также другие формы фрагментов в виде овала, ромба, сот или круга.

Полка в ванной облицована мозаикой
Мозаика может быть штучной или собранной на бумажной, полимерной или силиконовой основе, что значительно упрощает процесс укладки материала на поверхность. Плитка выпускается в разном исполнении. Наибольшей популярностью пользуются керамические варианты. Изделия могут обладать глянцевой или матовой поверхностью, содержать рисунок, быть в разной цветовой гамме.
Эффектно смотрятся поверхности, отделанные мозаикой из стекла. Полки, отделанные зеркальными пазлами станут изящным украшением помещения, способствуя зрительному расширению пространства. Сальтовая мозаика в виде непрозрачного стекла обладает особым свойством преломлять свет. Благодаря такой отделке полочка в ванной из плитки может стать акцентным элементом помещения.
Благодаря гибкости подложки материала, мозаику можно укладывать на поверхность любой конфигурации. Она полностью повторит контур и изгиб изделия, поэтому такой вариант отделки идеально подходит для криволинейных конструкций. Интересные дизайнерские решения показаны на фото полок в ванной из гипсокартона и мозаики.
Укладка модулей осуществляется по такому же принципу, что и при использовании керамической плитки. Изделия на сетчатой основе крепятся мозаикой наружу, а модуль на бумажной – мозаикой внутрь. После укладки бумага снимается с поверхности. Модули следует разравнивать при помощи резинового валика. Затирка швов осуществляется спустя 1-2 суток после укладки плитки.

Задняя стенка ниши в ванной облицована мозаикой
Отделка готовой конструкции
Финишная отделка полочек из гипсокартона зависит от общего дизайна ванной комнаты, и производится следующим образом:
на готовую конструкцию нанести грунт в два слоя, и дать ему хорошо высохнуть;
при помощи шпаклевки и серпянки заделать все стыки и примыкания к стенам, чтобы впоследствии не появились трещины;
на внешние углы установить перфорированные угловые элементы и зафиксировать их смесью штукатурки
Важно! Для криволинейных конструкций покупается арочный уголок, изготовленный из пластика, он отлично гнется благодаря сечениям, нанесенным на одну сторону; Подготовка полки для декора
нанести слой шпаклевки на всю поверхность гипсокартонной конструкции, дать просохнуть;
прошпаклевать полочки повторно, через 24 часа;
как только высохнет второй слой шпаклевки, конструкцию нужно хорошо отшлифовать абразивной сеткой;
нанести на готовые полочки грунт.. Подготовка к финишному покрытию закончена
Задекорировать полки из гипсокартона можно различными способами, например:
Подготовка к финишному покрытию закончена. Задекорировать полки из гипсокартона можно различными способами, например:
- Применить декоративную штукатурку с водоотталкивающим эффектом.
- Окрасить в любой оттенок.
- Уложить на полочки декоративную мозаику на плиточный клей. Применять этот способ облицовки, можно без предварительной шпаклевки.
Подготовительные работы
Даже самую сложную конструкцию из гипсокартона можно сделать своими руками, тем более обычную полку или нишу в ванной. Но чтобы работа увенчалась успехом, сначала придется взять в руки линейку и карандаш. Продумайте конструктивные особенности полки и удобство использования, измерьте участок, отведенный для нее.
Замеры делайте как можно точнее, это избавит от необходимости подгонять готовые полки по месту. Понадобятся хотя бы элементарные знания об искусстве черчения. Правильно построенный чертеж – это половина работы. Только после этого можно посчитать необходимое количество гипсокартона, металлического профиля и крепежа.
Для работы понадобятся:
- гипсокартон марки ГКВЛ;
- направляющий оцинкованный профиль UD;
- стоечный профиль CD (несущий);
- дюбели, саморезы;
- сетка для стыков;
- грунтовка;
- строительные инструменты (отвес, рейка, дрель, уровень и т. д.).
Для каркаса разумнее выбирать стандартный оцинкованный профиль 50х25 мм. Расчет и изготовление несущей конструкции для полки – самый ответственный и трудоемкий процесс.
Основа для гипсокартонных полок
Надежность конструкции во многом зависит от правильно изготовленного каркаса. Сначала из направляющего профиля монтируют периметр будущей полки, затем по обеим сторонам от конструкции (сверху и снизу или справа и слева, если речь идет о вертикальных перегородках) крепят несущие профили.
Сборка производится на полу или столе, затем готовый каркас крепят к стене. Если речь идет не о полках, а о стенных нишах, то сборку начинают с монтажа стальных подвесов к стене, на которые потом крепят направляющие. На этом этапе внутрь устанавливают дополнительное освещение, если оно запланировано.
Важно подобрать правильный крепеж. Дюбель типа «бабочка» выдерживает до 24 кг веса, а самосверлящий – только 8 кг
При расчете веса конструкции из гипсокартона не забывайте учитывать будущую нагрузку — на полках в ванной комнате обычно скапливается множество флаконов, тюбиков, коробок и других мелочей.
Обшиваем каркас
Для этого понадобится очень острый нож, саморезы по металлу длиной 25 мм, линейка и карандаш. Перед началом «раскроя» листа можно предварительно вырезать контур полки из тонкой бумаги (выкройку). Не забудьте сделать прорези под освещение (если оно планируется). Размеченные детали аккуратно вырезают, устанавливают на место и закрепляют саморезами.
Можно сделать в ванной гипсокартонные полки с криволинейными элементами или арками. Это немного сложнее, так как потребуется шаблон из прочного материала (например, фанеры), по которому будет изгибаться лист.
Гипсокартон неплохо поддается изгибу, но для больших радиусов его нужно предварительно намочить. Малые арки или закругления выполняют даже «на сухую», с использованием каркаса и специального валика с иголками, способными проколоть верхний слой и уберечь материал от растрескивания. Мокрую или наколотую сторону листа закрепляют на шаблоне и оставляют на сутки или до полного высыхания.
Окончательная отделка
Углы полки или ниши закрывают перфорированным уголком, а стыки — армирующей лентой. Перед окончательно отделкой эти элементы в обязательном порядке шпаклюют.
Перед шпаклевкой необходимо нанести слой грунтовки. Когда она высохнет, можно приступать к финишной отделке. Для этого наждаком зачищают всю поверхность от возможных неровностей и снова покрывают гипсокартон грунтовкой. Полка готова к покраске или укладке кафеля.
Основное преимущество полок из гипсокартона – полная свобода в выборе формы и отделки. Можно с помощью кисти или пальцев создать узор на влажной штукатурке, покрасить в любой цвет, облицевать маленькими керамическими плитками или придумать что-то еще. Материал дает простор для фантазии, оставаясь при этом практичным и надежным. Если есть желание и опыт, все работы по созданию полок для ванной легко выполнить самостоятельно. Но если вы неуверены в своих силах, пригласите специалиста. У него можно научиться приемам работы и следующую конструкцию выполнить уже самостоятельно.
Как сделать полочки в ванной комнате с боковыми стенками
Часто встречаются ситуации, когда нужно закрыть пространство между стеной и умывальником либо бортом ванны. Приобрести в магазине такую систему хранения невозможно, поскольку габариты свободного места являются нестандартными, и готовых решений не существует. Самым подходящим и бюджетным вариантом является создание на стене полок из гипоскартона.
Первым этапом наносится разметка для закрепления металлического профиля на все несущие конструкции. На полу и плите перекрытия помечаются места для стартового профиля. На смежных стенах наносятся обозначения вертикальных линий стоек с учетом толщины гипсокартона и облицовочного материала. Также вычерчиваются линии под горизонтальный стартовый профиль в зависимости от количества полок.
Конструкция из гипсокартона создается с использованием стартового и стоечного профилей. Первый тип фиксируется вдоль стен на потолке. Стоечный профиль вставляется в него, благодаря чему образуются ребра жесткости силовой рамки. Он фиксируется при помощи просекателей или саморезов. Стойки каркаса должны быть дополнительно закреплены к стенам подвесами с помощью двух дюбелей-гвоздей для каждого элемента.

Боковые стенки для полки необходимо запланировать еще на этапе ремонта
Готовый каркас обшивается листами гипсокартона в один слой, если используется толстый материал толщиной более 8 мм, и в несколько слоев с применением тонкого ГКЛ. Шляпка саморезов вкручивается заподлицо. Длинные шурупы следует ввинчивать в стартовый профиль.
Готовая система хранения отделывается кафелем или мозаикой. Первый вариант способствует повышению эксплуатационного ресурса полки. Мозаика предпочтительна для криволинейных конструкций небольшого размера. Завершающим этапом является затирка швов влагостойким материалом.
Полки из гипсокартона на стене также можно окрасить в любой цвет. При этом поверхность можно оставить ровной или придать ее рельефность. В последнем случае процесс выполняется на стадии шпаклевания конструкции. При воздействии на влажную шпаклевку твердой щетиной удастся получить своеобразную рябь. Выпуклый узор можно создать, проглаживая поверхность пальцами. Округлые декоративные фрагменты получатся при помощи мелкого шпателя, при проворачивании его вокруг своей оси.

Ниша-полка из гипсокартона может быть построена от стены до стены
Пошаговая инструкция по монтажу гипсокартонной полки в ванной
Создание полки из гипсокартона своими руками не относится к категории сложных задач. Однако для решения подобного вопроса необходимо проявить внимательность и ответственность, в противном случае результат труда будет удручающим. Пошаговая инструкция по монтажу гипсокартонной конструкции выглядит следующим образом:
- Согласно разметке в стене просверливаются отверстия под дюбели. При этом длина каждого из них превышает размер дюбеля как минимум на 1-1,5 см. Для увеличения несущей способности объекта расстояние между отверстиями должно быть не менее 10-15 см.
Крепление профиля с помощью дюбелей
- В отверстия вставляются дюбели и забиваются до тех пор, пока они не станут в одну плоскость со стеной. Потолочный профиль UD подгоняется по размеру, прикладывается к стене и просверливается согласно расположению точек крепежа. На саморез надевается шайба, он продевается сквозь отверстие в профиле и вставляется в дюбель, после чего вкручивается до самого конца. Подобное действие проделывается со всеми точками фиксации, а прикрепленный профиль сверяется по уровню.
Крепление профиля для гипсокартона
- Профиль UD выполняет фиксирующую роль и задает направление всей конструкции. Устанавливается он на 2-х стенах, формирующих угол, и задает ширину и длину будущей полке. С внешней стороны из него формируется угол, который скручивается саморезами. Профиль CD обрезается согласно необходимой длине таким образом, чтобы получилось 2 продольных элемента и как минимум 4 поперечных планки (наша полку будет иметь длину около 120 мм, а располагать их следует через каждые 40 мм).
Установка конструкции из профилей
- В направляющий профиль вставляются продольные рейки, причем одна укладывается лицевой частью наружу, а вторая вовнутрь. С обеих концов они прикручиваются саморезами. В таком виде несущая способность полки оставляет желать лучшего, поэтому полку нужно усилить.
Крепление продольных реек конструкции
- Начиная от внешнего края, к стене через каждые 40 см прикручиваются удерживающие планки (фиксируются они при помощи дюбелей и саморезов). Их величина напрямую зависит от длины полки и должна соответствовать ей. После этого нижние части планок следует соединить с крайними точками продольных планок. Выполняется подобное действие при помощи стоечного CD профиля, величина которого определяется расчетным путем по теореме Пифагора (в которой речь идет о квадрате гипотенузы).
Пример чертежа угловой конструкции для полки
- Части CD профиля соединяются с удерживающими рейками и вставляются заподлицо крайней продольной планки. В таком положении он фиксируется в 3-4 точках с каждой стороны. Теперь каркас стеллажа способен выдерживать большие нагрузки.
Правильно собранный каркас выдерживает большие нагрузки
- Листы гипсокартона (ГКЛ) обрезаются согласно полученной модели. Для облицовки полки понадобится 5 частей — верхняя, нижняя и 3 боковых. Сперва прикручивается нижний кусок и формируется своеобразный короб. При этом под удерживающие рейки вырезаются небольшие пазы и только после этого, ГКЛ полностью фиксируется саморезами как минимум в 6 местах (по 3 возле стены и края полки).
Пример крепления гипсокартона на полке
- Аналогичным образом делают боковые накладки. Для их фиксации достаточно 3-4 саморезов. Самым последним укладывается верхний кусок листа, предающий конструкции законченный внешний вид. При желании удерживающие стойки также можно закрыть гипсокартоном и покрасить краской.
Каркас обшит гипсокартоном
- Готовая полка в ванной из ГКЛ требует дополнительной обработки, которая заключается в заделывании швов гипсокартона и мест креплений и подробно будет описана ниже.
Обработка стыков листов гипсокартона
Как сделать полку из гипсокартона своими руками
Определившись с типом изделия, можно приступать к изготовлению. Рассмотрим этот процесс подробнее.
Чертежи и схемы сборки
Первым этапом изготовления изделия является создание чертежа. В нем нужно отразить внешний вид, точные размеры, инструменты и пошаговое выполнение работ. При помощи эскиза намного проще осуществлять монтаж.
Размер и количество полок можно определить самостоятельно, учитывая габариты уже имеющейся техники.
Составить чертеж можно самостоятельно на миллиметровой бумаге или просто на листе А4. Также можно воспользоваться специальной программой на компьютере, которая поможет создать правильный и четкий рисунок. Можно прибегнуть к помощи Интернета.
Можно вмонтировать дополнительно настенные или точечные светильники, светодиодные лампы и ленты.
Подготовка стены
Для того, чтобы изделие было прочным и качественным, нужно подготовить стену, к которой будет крепиться сооружение.
Перед началом проведения монтажных работ по изготовлению гипсокартонных полок, потребуется подготовить стены.
Для начала нужно удалить старое покрытие. Это могут быть обои, слой шпаклевки и так далее. Если в стене есть какие-либо дефекты, то их нужно устранить. Для этого все трещины и шероховатости заполняются пеной или шпаклевкой. Покройте стену специальным раствором для большей прочности.
После того, как раствор высохнет, стену необходимо покрыть грунтовкой.
Стены лучше обработать несколькими слоями грунтовки, чтобы они в дальнейшем не осыпались.
Теперь можно приступить непосредственно к изготовлению полки.
Важно продумать внешний вид полок, функциональность, рассчитать размер и весовую нагрузку
Процесс монтажа полок из профиля
Первоначально нужно определиться с формой, размещением и тем, будет ли встроена подсветка, так как это оказывает непосредственное влияние на общую конструкцию.
Каркасом всей конструкции выступает профиль из дерева или металла. Если полка будет использоваться как хранилище для вещей, то ее нужно максимально укрепить. Если же у нее только декоративное предназначение, то укрепление не нужно.
Монтаж начинают с возведения каркаса из металлического профиля, который крепят к стене на дюбель-гвозди.
Для изготовления понадобятся следующие материалы и инструменты:
- Строительный нож;
- Ножницы для металла (если его использование предусмотрено);
- Карандаш или маркер;
- Уголок;
- Отвес;
- Саморезы;
- Дюбеля;
- Гипсокартон;
- Шуруповерт;
- Дрель;
- Лента для армирования;
- Шпатель;
- Шпаклевка;
- Грунтовка.
Для обработки понадобятся краска, обои, клей и защитное покрытие.
Теперь рассмотрим этапы проведения работ. Для начала нужно смонтировать каркас. В качестве материала можно взять древесину или сваренный в единое металл. Полки крепятся при помощи дюбелей из металла для большей надежности.
Все части каркаса закрепляются между собой на саморезы. Необходимо тщательно затягивать крепления, чтобы основа получилась прочной.
Дальше нужно саморезами прикрепить листы гипсокартона. Теперь нужно приступить к шпаклевке. Готово.
При необходимости можно установить подсветку: для этого нужно привлекать светодиоды при помощи шурупов. Также можно провести декорирование поверхности краской или узорами. Узоры можно изготовить также из гипсокартона.
Используя специальные саморезы, нужно присоединить к основанию верхние и нижние листы. Для таких целей лучше брать саморезы диаметром в 2,5 сантиметра.
Полки из гипсокартона отлично вписываются практически в любой интерьер, придают ему изюминки. Для самостоятельного изготовления необходимо следовать инструкции и четко соблюдать чертеж.
Дизайн полок бывает различным, здесь каждый человек сможет проявить свою фантазию.





































