Как сделать пиролизный котёл своими руками
Технологический процесс изготовления котла пиролизного принципа действия включает выполнение слесарных и сварочных работ.
Необходимые материалы и инструмент
Для изготовления качественного агрегата необходим опыт в работе со следующими инструментами:
- аппарат электросварочный;
- дрель электрическая;
- угловая шлифмашина;
- набор слесарных инструментов — угольник, уровень.
Потребуются материалы и комплектующие:
- металл:
- листовой, толщина 4 мм, 7,5 м²;
- труба — 8 м (диаметр 57 мм, толщина стенки 3,5 мм);
- полоса сталь (толщина 4 мм, ширина 20 мм) — 7,5 мп;
- полоса сталь (толщина 4 мм, ширина 30 мм) — 1,5 мп;
- полоса сталь (толщина 5 мм, ширина 80 мм) — 1 мп;
- шамотный (огнеупорный) кирпич — 15 шт;
- профтруба 60×30 (толщина стенки 2 мм) — 1,5 мп;
- профтруба 80×40 (толщина стенки 2 мм) — 1 мп;
- круг отрезной d 230 — 10 шт.;
- круг шлифовальный d 125 — 5 шт.;
- электроды — 5 пачек;
- датчик температуры.
Им автоматически выполняются манипуляции с заслонкой: открытие (для увеличения температуры горения) и закрытие (при достижении температурой максимального значения)
Температурный датчик — это механическое устройство контроля количества воздуха, проходящего в камеру сгорания.
Продуктивность работы котла зависит от функционирования дымоотводящей трубы. Для обеспечения хорошей тяги дымоотвод должен соответствовать требованиям качества:
- высота не меньше 5 метров;
- хорошее утепление;
- отсутствие резких изгибов;
- отвод конденсата;
- простой доступ для чистки.
Чертежи и схемы устройства
Пиролизный котёл без принудительной вентиляции имеет наиболее простую схему. Энергонезависимость конструкции удешевляет эксплуатацию агрегата.
Схема пиролизного котла с естественным дымоотводом имеет вид:
Для повышения высокого КПД некоторые конструкции имеют двойные стенки основания
Котёл состоит из трёх основных камер:
- загрузочная, служащая для заброса топлива;
- камера дожига, куда подаётся вторичный воздух;
- теплообменник, выходящий в трубу.
Горение сырья направляет поток газа сверху вниз. При подаче воздуха под колосники в массив шамотного кирпича происходит дожиг горючих газов. Продукты распада уходят через теплообменник в дымоотвод. Регулировка тяги выполняется термодатчиком на выходе из котла с помощью цепочки, связанной с заслонкой подачи вторичного воздуха.
Подробную деталировку с размерами и допусками можно взять в стандартном чертеже:
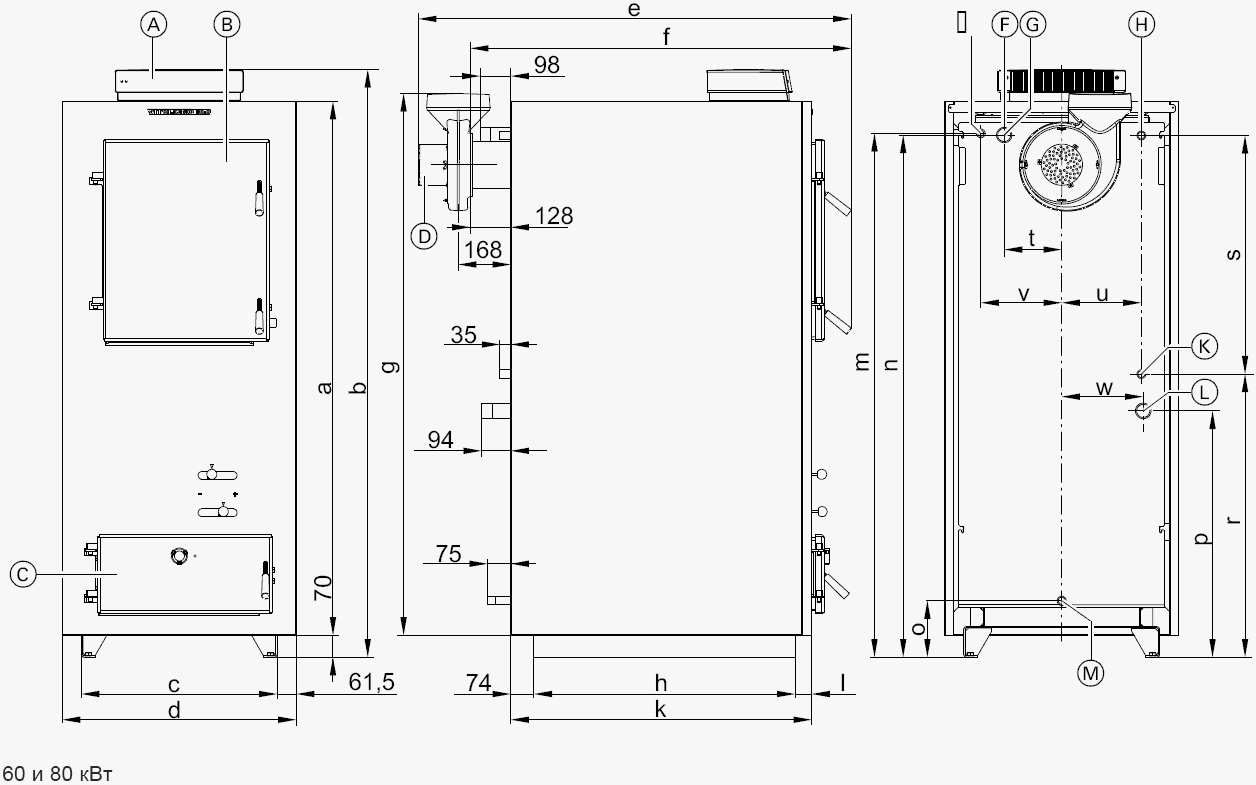
A — контроллер контура котла; B — дверца загрузки; C — крышка зольника; D — дымоотвод; E — муфта для датчика температурного предохранителя; F — патрубок предохранительного клапана; G — подающая магистраль контура; H — подвод холодной воды в теплообменник; L — обратная магистраль контура котла; M — расширительный бак
Пошаговая инструкция изготовления агрегата
Изготовления пиролизного котла своими руками разделяется на этапы:
- Согласно чертежу выполняется разметка и нарезка деталей для корпуса. После «прихватывания» элементов производится контрольный замер, затем делаются сварочные швы. Установленные на свои места задняя панель и боковые стенки свариваются с двух сторон, зачищаются, обрабатываются сварочным герметиком.
- Производится монтаж труб теплообменника.
- После наваривания внешней стенки и обечаек дверок устанавливается механический регулятор контроля теплоносителя.
- Дымоход собирается наращиванием трубы Последующую часть нужно вставлять внутрь предыдущей, чтобы конденсат не попадал на внешнюю сторону. Готовая конструкция окрашивается огнеупорной краской.
Создание котла своими руками
Высокая стоимость заводских твердотопливных обогревателей вынуждает владельцев загородной собственности отапливать дома посредством самодельных устройств. Обязательное условие – точное следование пошаговой инструкции.
Мини-версия из газового баллона
Чтобы сделать котел из газового баллона своими руками, необходимо придерживаться определенного порядка действий:
- У использованного сосуда объемом 50 л обрезают верхнюю часть, после шлифовки использующуюся в качестве крышки. Сбоку формируют отверстие для загрузки дров. В нижней зоне устанавливают арматурную решетку, удерживающую топливо до полного прогорания. Остатки выпадают сквозь ячейки между стальными прутьями.
- Сверху приваривают дымоход. Интенсивность тяги повышается за счет разницы диаметров в начале и конце газоотводящей магистрали. Чтобы придать самодельному устройству эстетичный вид, наносят слой огнеупорной краски.
- К поршню, сделанному из трубы и металлического круга, приваривают лопасти. В процессе нагревания происходит вращение импровизированной крыльчатки, создаются воздушные вихри. Диск препятствует разгоранию. В отсутствие открытого огня топливо медленно тлеет.
Кирпичный котел
Выбирая такой вариант самодельного агрегата, следует учитывать, что брусками обкладываются металлические элементы конструкции.

На заметку: для установки громоздкой печи выделяется специальное место.
Порядок дальнейших действий:
- После высыхания цементно-песчаной смеси кладка выводится «в ноль».
- Корпус облицовывают огнеупорным кирпичом. Для скрепления используется вяжущий раствор из глины и песка, выдерживающий высокие температуры. Строго горизонтальное направление контролируется уровнем. В нижнем ряду для поддержания конвекции формируется несколько зазоров толщиной до 1 см. На дверцы устанавливается рама и фиксируется базальтовый картон, нивелирующий расширение нагревающегося металла.
- Перегородки внутри конструкции выкладываются шамотным кирпичом. При сооружении дымохода выполняется облицовка. Обязательное условие – тщательная затирка внутренних швов.
Кладка проводится по установленной схеме. Размеры соответствуют габаритам железных конструкций.
Оборудование из металла
Для работы потребуются специфические знания и навыки сварщика. При изготовлении самодельного пиролизного котла действуют по инструкции:
- Из металлических листов толщиной не меньше 3 мм вырезают 4 прямоугольные пластины для корпусной части устройства. В передней стенке делают отверстия для подачи топлива и удаления золы.
- На соответствующих участках формируют прорези для подсоединения труб и выведения дымохода.
- Собирают корпус. За исключением задней стенки, стороны соединяют методом сварки. Швы на стыках обрабатывают шлифовальным кругом болгарки.
- Выполняют сборку теплообменника по заранее подготовленному чертежу. Отдельные участки двух заготовок приваривают.
- Магистральную конструкцию для циркуляции теплоносителя вставляют в корпус. Проверяют герметичность водяного контура. При отсутствии протечек сваркой закрепляют заднюю стенку.
- Проводят монтаж колосниковой решетки, разделяющей внутреннюю полость на 2 камеры. Нижний отсек дополняется воздуховодом с форсункой.
- На отверстия для загрузки и удаления золы устанавливают дверцы. Обязательное условие – плотное прилегание к корпусу.
- Предварительно утеплив трубу минеральной ватой, подсоединяют дымоход.
- Подключают к собранной конструкции водяной контур.
- Монтируют дутьевой вентилятор.

Для регулирования интенсивности подачи воздуха устанавливают автоматизированную систему управления.
Модификация для горения на опилках
Технология аналогична созданию агрегата из газового баллона. В работах по изготовлению котла, функционирующего на опилках, используются те же материалы и инструменты.
Дополнительно потребуется:
- для циркуляции теплоносителя закрепить над топкой водяную рубашку из листового металла, по форме и габаритам соответствующую размерам корпуса;
- внутри топочной камеры по кругу приварить несколько железных ребер жесткости, предотвращающих температурные деформации;
- соединить конструкцию с водяной «рубашкой» надежным креплением;
- установить бункер с опилками.
Допускается модернизировать самодельный котел за счет монтажа шнекового механизма, автоматизирующего загрузку стружки в топочное отделение.
На заметку: необходимо учитывать обратно пропорциональную зависимость производительности обогревателей, работающих по принципу пиролиза, от влажности топлива. При закладке сырых опилок КПД резко падает. Поэтому перед применением древесную стружку просушивают.

Принцип работы пиролизных котлов и их особенности
Создавая пиролизные котлы своими руками, люди стремятся сэкономить денежные средства в своем кошельке. Если газовое оборудование стоит довольно дешево, то твердотопливные агрегаты просто поражают своей ценой. Более-менее приличная модель мощностью 10 кВт обойдется в 50-60 тысяч рублей – дешевле провести газ, если рядом проходила бы газовая магистрально. Но если ее нет, то выходов два – приобретать заводское оборудование или делать его самостоятельно.
Изготовить пиролизный котел длительного горения своими руками можно, но сложно. Давайте для начала разберемся, для чего вообще нужен пиролиз. В обычных котлах и печах дрова сгорают традиционным способом – при высокой температуре, с выбросом продуктов сгорания в атмосферу. Температура в камере сгорания составляет порядка +800-1100 градусов, а в дымоходе – до +150-200 градусов. Таким образом, солидная часть тепла просто улетает наружу.
Прямое сгорание дров применяется во многих отопительных агрегатах:
Твердотопливные пиролизные котлы могут использовать несколько видов топлива, в том числе отходы деревообрабатывающего производства и сельскохозяйственной переработки.
- Твердотопливные котлы;
- Печи-камины;
- Камины с водяными контурами.
Главным преимуществом данной методики является то, что она отличается простотой – достаточно создать камеру сгорания и организовать отвод продуктов сгорания за пределы оборудования. Единственным регулятором здесь становится дверка поддувала – регулируя просвет, мы можем отрегулировать интенсивность горения, тем самым воздействуя на температуру.
В пиролизном котле, собранном своими руками или купленном в магазине, процесс сгорания топлива идет несколько по-другому. Дрова здесь сгорают при низкой температуре. Можно сказать, что это даже не горение, а медленное тление. Древесина при этом превращается в подобие кокса, одновременно выделяя горючие пиролизные газы. Эти газы отправляются в камеру дожигания, где сгорают с выделением большого количества тепла.
Если вам кажется, что данная реакция не даст особого эффекта, то вы глубоко заблуждаетесь – если заглянуть в камеру дожигания, то здесь будет видно ревущее пламя ярко-желтого, почти белого, цвета. Температура сгорания – чуть выше +1000 градусов, а тепла в этом процессе выделяется больше, чем при стандартном горении древесины.
Для того собранный своими руками пиролизный котел смог показать максимальную эффективность, необходимы дрова с низким содержанием влаги. Влажная древесина не даст оборудованию выйти на полную мощность.
Реакция пиролиза знакома нам еще со школьного курса физики. В учебнике (а может и в лабораторном кабинете) многие из нас видели интересную реакцию – древесина помещалась в стеклянную запечатанную колбу с трубкой, после чего колба нагревалась над горелкой. Через несколько минут древесина начинала темнеть, а из трубки начинали выходить продукты пиролиза – это горючие газы, которые можно было поджечь и понаблюдать за желто-оранжевым пламенем.
Аналогичным образом работает и пиролизный котел, собранный своими руками:
На одной загрузке топлива пиролизные котлы работают около 4-6 часов. Так что большим и стабильно пополняемым запасом дров стоит озаботиться заранее.
- В топке разжигаются дрова до появления устойчивого пламени;
- После этого доступ кислорода перекрывается, пламя гаснет почти полностью;
- Запускается дутьевой вентилятор – в камере дожигания появляется высокотемпературное пламя.
Устройство пиролизного котла довольно простое. Основными элементами здесь являются: камера сгорания, в которой складированы дрова, и камера дожигания, в которой сгорают продукты пиролиза. Передача тепла в отопительную систему осуществляется через теплообменник
В схеме пиролизного котла ему уделяется особое внимание
Все дело в том, что теплообменники в пиролизных котлах, собранных своими руками, устроены не так, как в газовом оборудовании. Продукты сгорания с воздухом проходят здесь через множество металлических труб, омываемых водой. Для увеличения эффективности котловая вода омывает не только сам теплообменник, но и все другие узлы – здесь создается своего рода водяная рубашка, которая отбирает излишки тепла от раскаленных элементов котельного агрегата.
Особенности конструкции
https://youtube.com/watch?v=Lkhm4z4sF7c
Пиролизные котлы — один из видов твердотопливных котлов, который в последнее время пользуется повышенным спросом из-за постоянно растущих цен на газ и электроэнергию, их еще называют — газогенераторные котлы.
Основным топливом для пиролизного твердотопливного котла является:
- древесина;
- брикеты;
- щепа;
- древесные отходы.
Очень редко в качестве топлива используется каменный уголь или кокс. Пиролизные котлы комфортны в эксплуатации, отличаются надежностью и большим сроком эксплуатации. Прежде чем купить пиролизный котел нужно изучить возможность выполнения строгих требований по качеству используемого топлива.
В подавляющем большинстве разрешается применять древесину, влажностью не более 20 %. При использовании древесины с большим количеством влаги резко снижается эффективность.
Пиролизный котел работает по принципу сухой перегонки топлива.
При недостатке кислорода, под воздействием высокой температуры, сухая древесина разлагается на твердый остаток и летучую часть (пиролизный газ, который впоследствии смешивается с горячим воздухом).
Эта воздушно-газовая смесь, которая образовалась в процессе пиролиза, является топливом пиролизного котла. Процесс пиролизного сжигания является экзотермическим (сопровождается выделением теплоты).
Происходит он при температурах от 200 до 800 оС и обеспечивает подогрев поступающего в камеру сжигания воздуха. При этом происходит прогрев и подсушивание топлива в камере агрегата, за счет чего минимизируется выход сажи и золы.
Для пиролизного или газогенераторного котла характерным является более высокий КПД по сравнению с традиционной твердотопливной техникой.
При сжигании качественного топлива, КПД пиролизного котла находится на уровне пеллетных котлов и котлов длительного горения и достигает 90 %.
Пиролизные твердотопливные котлы используются как в частных домах и квартирах, так и для отопления производственных помещений.
Пиролизные котлы являются весьма рентабельным видом отопительной техники. Достаточно высокая цена на пиролизный котел покрывается за счет низкого потребления топлива.
В обычном твердотопливном агрегате длительного горения теплоноситель нагревается от тепла, выделяемого при горении топлива, то пиролизные котлы работают по-другому принципу.
При сжигании органического топлива (дров, пеллет, дровяных брикетов и даже угля) при температуре 400-800°С выделяется газ, сжигая который, можно получить намного больше тепла, чем при сжигании топлива.
Процесс газообразования из твердого топлива и последующее сжигание полученного газа называется пиролизом, а агрегаты, использующие такой принцип работы, называются пиролизными, или газогенераторными котлами.
В пиролизном котле присутствуют две камеры, и в обеих осуществляется горение:
- Камера сгорания – сжигаются (обугливаются) дрова или другое топливо.
- Камера дожига – сжигается газ, выделяемый топливом.
В камере сгорания располагается и поджигается топливо. В зону горения подается первичный воздух. При прогреве топлива до определенной температуры начинается газовыделение.
При помощи дымососа газ, вместе с вторичным воздухом, засасывается в камеру дожига (она расположена ниже уровня топлива) и сгорает там, выделяя тепло.
Продукты горения попадают в дымовой тракт (газоход) и поступают в дымоход, проходя через водяную рубашку агрегата и нагревая теплоноситель.
В результате, дрова превращаются в древесный уголь, сгорая практически полностью, а дым очищается от неприятных запахов и угарного газа.
Создаём пиролизный котёл
Разбор схем и чертежей
Чтобы создать пиролизный котёл своими руками, важно тщательно изучить схемы и чертежи. Именно по ним вы сможете подобрать конструкцию и максимально точно определить количество нужных для строительства материалов
На схеме и чертеже пиролизного котла отображены основные элементы, без которых невозможно построить конструкцию своими руками:
На схеме и чертеже пиролизного котла отображены основные элементы, без которых невозможно построить конструкцию своими руками:
На схеме и чертеже пиролизного котла отображены основные элементы, без которых невозможно построить конструкцию своими руками:
- регуляторы,
- дымовые каналы,
- отверстия для воздуха,
- трубы для подачи воды,
- трубы для отвода воды,
- камера сгорания,
- вентилятор.
Очень важно при изготовлении пиролизного котла своими руками придерживаться чертежей и схем. Дело в том, что это сложное устройство, в котором будут происходить высокотемпературные процессы
Поэтому малейшая ошибка может обратиться аварийной ситуацией
Поэтому малейшая ошибка может обратиться аварийной ситуацией
Поэтому малейшая ошибка может обратиться аварийной ситуацией.
Для частного дома будет достаточно пиролизного котла, мощность которого составляет 40 кВт. Не стоит стремиться к большой мощности. Дело в том, что в таком случае конструкция становится значительно сложнее. Мало того, конечная стоимость также увеличивается.
Выбор мощности пиролизного котла, который вы собираетесь создать, влияет на размер ключевых деталей на чертеже или схеме. От правильного подбора размеров зависит нормальное функционирование устройства.
Совет. Если вы владелец маленького домика, то можно остановить свой выбор на котле с мощностью в 30 кВт. Этого будет более чем достаточно.
Инструменты, необходимые для изготовления котла своими руками
Чтобы своими руками сделать конструкцию, работающую на основе пиролизной реакции по чертежам и схемам, необходимо запастись некоторым инвентарём. Для воплощения задумки в жизнь, вам понадобятся следующие материалы и инструменты:
- болгарка,
- сварочный аппарат,
- шлифовальные круги,
- электрическая дрель,
- электроды,
- трубы различного диаметра,
- полосы стали,
- термодатчик,
- вентилятор,
- металлические листы.
Это базовый набор, который необходим, чтобы создать пиролизную систему своими руками по схемам и чертежам. Конечно же, в процессе работы может возникнуть необходимость в дополнительных инструментах и материалах.
Внимание. Толщина стали для корпуса должна быть 3 мм, а лучше 4
Тонкости сборки
После того как вы выберите подходящую схему, можно будет приступить к сборке. При этом необходимо придерживаться следующих рекомендаций:
Отверстие, через которое в топку будут попадать дрова и брикеты должно располагаться немного выше, чем у обычных твердотопливных конструкций. Не забудьте про ограничитель. Его главная задача — это контролировать количество воздуха. Для его создания нужна семидесятимиллиметровая труба в сечении. Её длина должна быть больше корпуса. К ограничителю приваривается диск. Элемент должен быть выполнен из стали. Место приваривания — низ конструкции. В результате у вас получится зазор в 40 мм. Чтобы установка ограничителя стала возможной необходимо сделать дырки в соответствующих местах крышки. Лучшей формой для отверстия, через которое будут загружаться дрова является прямоугольник
При этом важно не забыть о дверце. Она должна иметь специальную накладку для лучшей фиксации. Также в конструкции необходимо предусмотреть отверстие, через которое будет удаляться зола
Также в конструкции необходимо предусмотреть отверстие, через которое будет удаляться зола
Трубу для теплоносителя нужно сделать с изгибом
Также в конструкции необходимо предусмотреть отверстие, через которое будет удаляться зола. Трубу для теплоносителя нужно сделать с изгибом
Это позволит повысить отдачу тепла.
Ещё одним важным элементом согласно любой схеме и чертежу является вентиль. С его помощью вы сможете контролировать количество теплоносителя, поступающего внутрь. Поэтому лучше всего расположить его в удобном и легкодоступном месте. Сам алгоритм создания пиролизного котла своими руками по чертежам вы можете увидеть на видео внизу.
После сборки огромное значение имеет первый запуск. Лишь после того, как вы убедитесь, что в продуктах горения нет угарного газа, можно будет утверждать, что всё сделано правильно. Для этого лучше использовать специальное оборудование.
Создать котёл, работающий на основе принципа пиролиза можно своими руками. Но перед тем как начать работу необходимо написать проект. Основную роль в нём будет играть рисунок со схемой изделия и размерами.
Обсудить статью на форуме
Дополнительное оборудование
К сожалению, пиролизные котлы не являются энергонезависимыми. Из-за реверсного потока газов требуется принудительный наддув. Для моделей мощностью до 15 кВт он реализуется дутьевым вентилятором, который монтируется на нижней дверце. При этом пополнение загрузки в процессе горения невозможно.
Более мощные котлы комплектуются вентилятором-дымососом, который устанавливается на верхней стенке корпуса на выходе дымоходного канала. При этом исключается появление обратной тяги и дверцу камеры газификации можно без последствий открывать даже в процессе горения.
Особое внимание нужно уделить температуре теплоносителя внутри рубашки. После выхода котла на режим она не должна быть меньше 60 °С для исключения образования конденсата. Эта задача решается путём установки узла автоматической рециркуляции, подмешивающей воду из подачи в обратку
Также требуется установка группы безопасности для закрытых отопительных систем и основного циркуляционного насоса. опубликовано
Эта задача решается путём установки узла автоматической рециркуляции, подмешивающей воду из подачи в обратку. Также требуется установка группы безопасности для закрытых отопительных систем и основного циркуляционного насоса. опубликовано
P.S. И помните, всего лишь изменяя свое потребление — мы вместе изменяем мир! econet
Как работает пиролизный котел?
В основе работы котла лежит принцип пиролиза, суть которого заключается в термическом разложении твердого топлива при высокой температуре в условиях искусственно созданного дефицита кислорода. В результате топливо тлеет, разлагаясь на твердый остаток и пиролизный газ. Образующиеся газы также сгорают, что повышает теплоэффективность оборудования и делает расход топлива более рациональным.
Устройство котла
Дополнительным преимуществом рассматриваемых отопительных котлов является экологическая безопасность. В процессе пиролизного сжигания топлива выделяющиеся вредные компоненты смешиваются с углекислым газом и утилизируются. В результате в атмосферу выводится дым, не содержащий канцерогенов и прочих вредных веществ. Эта особенность позволяет топить котлы даже резиной, обрезками древесно-стружечных плит и прочими подобными материалами.
Как движется воздух в котле
Работа пиролизных котлов состоит из 4 основных этапов.
- На первом этапе топливо дополнительно сушится и разлагается на твердый остаток и газы.
- На втором этапе пиролизные газы сжигаются.
- На третьем этапе продувается пламя и тепло возвращается к топливу, что способствует выделению дополнительного количества тепла.
- На четвертом этапе оставшиеся продукты сгорания выводятся через дымоход.
Пиролизный котел
Разобравшись в особенностях работы котла, приступаем к его изготовлению. Начнем с подготовки необходимых материалов и инструментов.
Котел пиролизный ViessmanОписание конструкции
Набор для работы
- Листовой металл толщиной от 0,8 мм.
- Огнестойкие кирпичи.
- Температурные датчики.
- Решетка колосника.
- Трубы диаметром 32 мм, 57 мм и 160 мм.
- Профилированные трубы в количестве 2 штук.
- Дверца зольника.
- Дверка для топливной камеры.
- Вентилятор.
- Гибкая пережженная проволока.
- Болгарка.
- Шлифовальные круги.
- Сварочный аппарат.
Собираем самодельный агрегат
Так как самодельный пиролизный котел будет собираться из металла, сварочный аппарат, болгарка и другие инструменты понадобятся обязательно. И тем более вы должны уметь с ними обращаться.
Печь пиролизного типа
Описывать, как именно собирается самодельный котел, мы не будем. Для этого вам в помощь чертежи, инструкции и схемы. Но несколько рекомендаций все же дадим. Особенно следует отметить основание под котел. Это, во-первых, хорошо залитый плиточный фундамент, толщина которого не должна быть меньше 25 см. Во-вторых, это остов, собранный из огнеупорного кирпича на смеси шамотной глины.
Рекомендации
Первое, что заслуживает внимания — это загрузочная камера. Ее загрузочное окно должно быть только прямоугольной формы. Сама же камера, если сравнивать ее с топкой обычного твердотопливного котла, должна располагать чуть выше — на 10–12 см.
Обязательно в конструкции печки делается зольник, через который можно будет удалять скопившуюся золу.
Теплообменник изготавливается в виде змеевика, который устанавливается под небольшим наклоном
На входном патрубке лучше вмонтировать отсекающий вентиль
С его помощью можно будет легко регулировать подачу воды из системы отопления, тем самым контролируя ее температуру.
Особое внимание ограничителю, который регулирует подачу воздуха в камеру сгорания. Его можно сделать из трубы диаметром 70 мм с установкой на его конце заслонки
Постарайтесь сделать так, чтобы ограничитель не проходил близко к камере сгорания
Ведь важно, чтобы поступающий воздух был не слишком сильно нагрет.
Очень важна герметизация всей конструкции. Вот почему сварочные работы должен проводить профессионал.
При установке пиролизного котла необходимо учитывать все требования правил пожарной безопасности.
Обязательно утепляется дымоход.. Специалисты рекомендуют использовать самодельный пиролизный котел не с водяной системой отопления, а с воздушной
Это эффективнее, экономичнее и безопаснее. То есть тепло от сгораемого топлива будет проходить по воздуховодам, которые распределяются по всему дому. Кстати, эту схему можно сделать круговой, пропустив обратку воздуховода под полом, и она будет возвращать остывший воздух в котел
Специалисты рекомендуют использовать самодельный пиролизный котел не с водяной системой отопления, а с воздушной. Это эффективнее, экономичнее и безопаснее. То есть тепло от сгораемого топлива будет проходить по воздуховодам, которые распределяются по всему дому. Кстати, эту схему можно сделать круговой, пропустив обратку воздуховода под полом, и она будет возвращать остывший воздух в котел.
Итак, все готово, и можно включать агрегат. Если в процессе горения дров или угля не выделяется угарный газ, можно считать, что самодельный пиролизный котел собран правильно.
Читайте далее:
Пиролизная печь своими руками — основные преимущества отопительного агрегата
Как изготовить твердотопливные котлы своими руками — чертежи и материалы
Как сделать печь на отработке своими руками — чертеж и способы сборки
Почему сегодня так популярны самодельные печи для бани из металла
Как сделать твердотопливный котел длительного горения своими руками: чертежи, схемы и инструкции
Как сделать пиролизный котёл своими руками
Технологический процесс изготовления котла пиролизного принципа действия включает выполнение слесарных и сварочных работ.
Необходимые материалы и инструмент
Для изготовления качественного агрегата необходим опыт в работе со следующими инструментами:
- аппарат электросварочный;
- дрель электрическая;
- угловая шлифмашина;
- набор слесарных инструментов — угольник, уровень.
Потребуются материалы и комплектующие:
металл:
- листовой, толщина 4 мм, 7,5 м²;
- труба — 8 м (диаметр 57 мм, толщина стенки 3,5 мм);
полоса сталь (толщина 4 мм, ширина 20 мм) — 7,5 мп; полоса сталь (толщина 4 мм, ширина 30 мм) — 1,5 мп; полоса сталь (толщина 5 мм, ширина 80 мм) — 1 мп; шамотный (огнеупорный) кирпич — 15 шт; профтруба 60×30 (толщина стенки 2 мм) — 1,5 мп; профтруба 80×40 (толщина стенки 2 мм) — 1 мп; круг отрезной d 230 — 10 шт.; круг шлифовальный d 125 — 5 шт.; электроды — 5 пачек; датчик температуры.
Температурный датчик — это механическое устройство контроля количества воздуха, проходящего в камеру сгорания.
Продуктивность работы котла зависит от функционирования дымоотводящей трубы. Для обеспечения хорошей тяги дымоотвод должен соответствовать требованиям качества:
- высота не меньше 5 метров;
- хорошее утепление;
- отсутствие резких изгибов;
- отвод конденсата;
- простой доступ для чистки.
Чертежи и схемы устройства
Пиролизный котёл без принудительной вентиляции имеет наиболее простую схему. Энергонезависимость конструкции удешевляет эксплуатацию агрегата.
Схема пиролизного котла с естественным дымоотводом имеет вид:
Котёл состоит из трёх основных камер:
- загрузочная, служащая для заброса топлива;
- камера дожига, куда подаётся вторичный воздух;
- теплообменник, выходящий в трубу.
Горение сырья направляет поток газа сверху вниз. При подаче воздуха под колосники в массив шамотного кирпича происходит дожиг горючих газов. Продукты распада уходят через теплообменник в дымоотвод. Регулировка тяги выполняется термодатчиком на выходе из котла с помощью цепочки, связанной с заслонкой подачи вторичного воздуха.
Подробную деталировку с размерами и допусками можно взять в стандартном чертеже:
A — контроллер контура котла; B — дверца загрузки; C — крышка зольника; D — дымоотвод; E — муфта для датчика температурного предохранителя; F — патрубок предохранительного клапана; G — подающая магистраль контура; H — подвод холодной воды в теплообменник; L — обратная магистраль контура котла; M — расширительный бак
Пошаговая инструкция изготовления агрегата
Изготовления пиролизного котла своими руками разделяется на этапы:
- Согласно чертежу выполняется разметка и нарезка деталей для корпуса. После «прихватывания» элементов производится контрольный замер, затем делаются сварочные швы. Установленные на свои места задняя панель и боковые стенки свариваются с двух сторон, зачищаются, обрабатываются сварочным герметиком.
- Производится монтаж труб теплообменника.
- После наваривания внешней стенки и обечаек дверок устанавливается механический регулятор контроля теплоносителя.
- Дымоход собирается наращиванием трубы Последующую часть нужно вставлять внутрь предыдущей, чтобы конденсат не попадал на внешнюю сторону. Готовая конструкция окрашивается огнеупорной краской.
Буржуйка
Таким примером может послужить простая буржуйка, с разделённой топкой. Если честно, эта печь выполняет функцию псевдо-пиролиза, поскольку простая конструкция, весьма далека от описанной теории, термической деструкции органического сырья с раздельным сжиганием её продуктов. Перегородка, разделяющая топку, имитирует возможность двух отдельных процессов, газогенерации и дожига. Наличие в данном случае форсунок подачи дополнительного воздуха, даёт весьма сомнительную возможность, полноценно сгорать продуктам тления. Это происходит, благодаря основному пламени, либо не случается вовсе.
Для изготовления такой “газовой” буржуйки, требуются минимальные переделки в конструкции. В пространство топки вваривается металлическая пластина и можно считать себя — “впереди планеты всей”. Некоторое улучшение, вследствие таких переделок конечно возможно. Но заключаться оно будет, в банальном удлинении пути, проходимого горячими газами. Необходимость пиролиза у кирпичной печи, на мой взгляд, весьма сомнительна. Отопительно – варочная шведка средних размеров, с встроенными в простенок каналами, имеет очень хорошие рабочие характеристики, в чём я могу убедиться как пользователь. Построение такой конструкции из кирпича, требует больше знаний и дополнительных материалов. Нестандартные габариты и опасность проникания угарных газов, не предполагают её размещение, в жилом помещении. Совсем другое дело, применение для промышленных нужд. Возможен обжиг глиняных изделий или отпуск металла. Внутри большая полость для выдержки керамики и длительное время может поддерживаться высокая температура.
Котлы с наддувом
Хорошим и легким с точки зрения изготовления и отработки представителем таких агрегатов является пиролизный котел Токарева. Если был сделан выбор в его пользу, то разработку, изготовление и отработку осуществляют, взяв в расчет такие особенности:
- Каналы первичной и вторичной подачи воздуха объединяют в один, и на его конце ставят вентилятор. Для этого может подойти даже компьютерный вентилятор.
- Камеру сгорания можно сочетать с камерой догорания. Это возможно благодаря тому, что в обеих возникает достаточное, даже избыточное количество кислорода.
- Необязательной является сталь с футеровкой. Котел можно сделать из жаропрочной стали, а также шамотного кирпича. Такая особенность возможна потому, что основная часть газов сгорает у сопла. Из-за этого температура у него составляет 1000 °С, а у стенок — 800-900 °С.
При этом нужно взять в расчет, что пиролизный котел Токарева и его надувные аналоги не имеют КПД больше 82-84%, а также при мощности, превышающей 30-35 кВт, теряют устойчивость.
Снижение КПД является результатом того, что через топливо в камере газификации проходит малое количество воздуха. Даже если сделать давление большим, ситуация не изменится. Основная часть воздуха будет уходить в стороны, опускаться и попадать внутрь камеры сгорания, где будет накапливаться в избыточном количестве. Из-за этого ухудшается пиролиз, а также снижается температура в сердцевине факела. Поэтому часть пиролизных газов не сгорает и выходит через дымовую трубу. Об этом говорят в разных видео, которые посвящены расчету, отработке схем, а также подключению котлов.
В самодельных котлах с мощностью 30-35 кВт нужно применять электрическую автоматику, а также ставить датчик в камере сгорания.





































