Обозначение канализационных колодцев на местности – что показывают цифры, буквы и цвет?
Во время строительства канализационных колодцев работники коммунальных служб пытаются оставить определенную информацию о них на стенах или с помощью специальных табличек.
Надписи можно увидеть почти на каждом доме. Они стали такими обычными, что их никто не замечает. Обозначение канализационных колодцев на местности имеет несколько вариантов.
Пример обозначения на фасаде здания
Обозначения канализационных колодцев производиться на стенах или специальных табличках. Маркировка делается для того, чтобы коммунальные службы смогли беспрепятственно отыскать люк при любых погодных условиях.
Маркировка безопасности
Обозначение канализационных колодцев на табличках имеет свои особенности. Цвет указателя сигнализирует о типах опасности емкости.
Самыми безопасными считаются синие и белые фоны надписей. Они показывают, что канализация и водопровод находятся совсем рядом.
Красные таблички обозначают опасные устройства. Кроме того, пожарные гидранты указываются также на красных пластинах. По стандартам цифры на светлых табличках должны наноситься черным цветом. Оттенок букв значения не имеет. Верхние цифры показывают расстояние от стены по оси назад. Нижние цифры обозначают расстояние смещения люка от главной оси.
Расшифровку смотрите ниже
Если расшифровать картинку выше, то можно понять, что от стены необходимо отойти на 5,5 метров и тут же повернуть направо на 0,5 метра. Расстояние до люка обозначается цифрами возле буквы «Т».
На стенах можно встретить таблички зеленого цвета. Они обозначают газопроводные люки или «кОверы». Цифры на указатели указываются в сантиметрах.
Рассмотрим буквенные обозначения канализационных колодцев
Виды канализационных колодцев на табличках имеют определенные сокращения:
- линейный колодец – «КЛ»;
- смотровой – «С»;
- накопительный – «КН»;
- дождеприемный колодец – «Д»;
- поворотный колодец – «КП»;
- контрольный – «К»;
- типовой перепадной – «ТПК»;
- шахта – «Ш»;
- буровая скважина – «БС»;
- кабельный смотровой колодец – «КСК».
Кроме того, на табличках и люках существуют буквенные обозначения, которые описывают вид канализации. Буква «В» означает водопровод, «К» указывает на канализацию, а «Д» обозначает люк от дождевой канализации.
Примеры других маркировок
Обозначение канализационных колодцев на местности является очень полезной и необходимой мерой. Она позволяет при любом случае быстро найти канализационный люк.
К сожалению, таблички часто закрашивают владельцы домов, что препятствует качественной работе коммунальных служб. Не делайте этого.
Хорошего вам дня.
Указание номинального диаметра в зависимости от типа трубы
С указанием условного прохода для трубопроводной арматуры всё предельно просто. Указывается округлённый внутренний диаметр, например, так: DN20, но иногда может встречаться устаревшее обозначение: Ду20, или Dy20, по ранее действующему СЭВ 254-76.
Но вот с указанием для разных видов металлических и пластиковых труб, не всё так просто, и часто происходит путаница, связанная с неправильным указанием или неопределенностью, какой указан диаметр внешний или внутренний (условный проход).
И возникает вопрос, как правильно указывается диаметр трубы? Далее приведены примеры правильного обозначения для некоторых видов трубопроводов.
Обозначение водогазопроводной трубы (Труба ВГП)
К водогазопроводным трубам (ВГП) относятся металлические сварные изделия, изготовленные из стали по ГОСТу 1050 и ГОСТу 380, а также другими утверждёнными регламентами. Применяются:
- В системах отопления зданий;
- Различных видах водопроводов;
- В конструкциях газопроводных систем и газопроводов;
Пример обозначений
Стальная труба, выпущенная по ГОСТу 3262-75, с условным проходом 32 миллиметра, и толщиной стенки 3,2 миллиметра.
То же самое только с муфтой.
Стальная ВГП с резьбой, цинковым покрытием, мерной длины. И так далее.
Обозначение электросварных прямошовных труб
Прямошовные электросварные производятся из низколегированных или углеродистых видов стали. Применяются для изготовления трубопроводов различного применения.
Пример обозначения
Стальная труба, выпущенная по ГОСТу 10704-91, с наружным диаметром 70.0 миллиметров, толщиной стенки 4.0 миллиметра, мерной длины (5000мм), II класс (точность изготовления по длине), из стали «СтЗсп» выпущенная по группе «В» ГОСТу 10705-80.
Указание диаметра бесшовных стальных труб
Стальные бесшовные трубы изготавливаются из легированных или углеродистых видов стали. Отсутствие швов повышает стойкость трубопровода к различным физическим воздействиям, таким как рабочая температура и номинальное давление.
Пример обозначения
Стальная труба, выпущенная согласно ГОСТу 32528-2013, с наружным диаметром 60.0 миллиметров, толщиной стенки 4.0 миллиметра, мерной длины (6000мм), повышенной точности изготовления, сталь марки 40Х, выпущенная по группе «В».
Немерной длины, выпущенная согласно ГОСТу 32528-2013, с наружным диаметром 95.0 миллиметров и внутренним диаметром 76.0 миллиметров, сталь марки 10, выпущенная по группе «Б».
Указание диаметров пластиковых труб
Пластиковые трубы и различные фитинги производятся из термопластов следующих видов:

Применяются для изготовления труб отопления, водопроводов горячей и холодной воды по ГОСТу 32415-2013.
Пример обозначения пластиковых труб и фитингов
Изготовленная из НПВХ, с номинальным наружным диаметром 25.0 миллиметров, номинальная толщина стенки 2,3 миллиметра, номинальным давлением PN25.
Условное обозначение пластиковых фитингов:
Муфта, изготовленная из НПВХ, для соединения трубопроводов с DN 63.0 миллиметра, соответствует SDR 13,6, номинальное расчётное давление PN16.
В чем состоит важность проектирования
Проектирование является одним из самых важных этапов при создании систем водопровода и канализации, так как неправильное проектирование может привести к серьезным негативным последствиям.
- Одним из главных задач проектирования является определение оптимального расположения всех элементов систем, чтобы достичь наилучшей производительности.
- Проектирование также предполагает расчет необходимого количества материалов и оборудования, что помогает избежать лишних затрат и снизить риски возникновения проблем в будущем.
- Кроме того, проектирование включает в себя разработку планов пожарной безопасности, что играет огромную роль в предотвращении пожаров и обеспечении безопасности жильцов.
- Адекватное проектирование позволяет производить регулярный технический осмотр систем, что является необходимым условием для их надежной работы в течение многих лет.
Таким образом, правильное проектирование систем водопровода и канализации является основой их качественного функционирования на протяжении долгого времени, что обеспечивает надежность и безопасность эксплуатации.
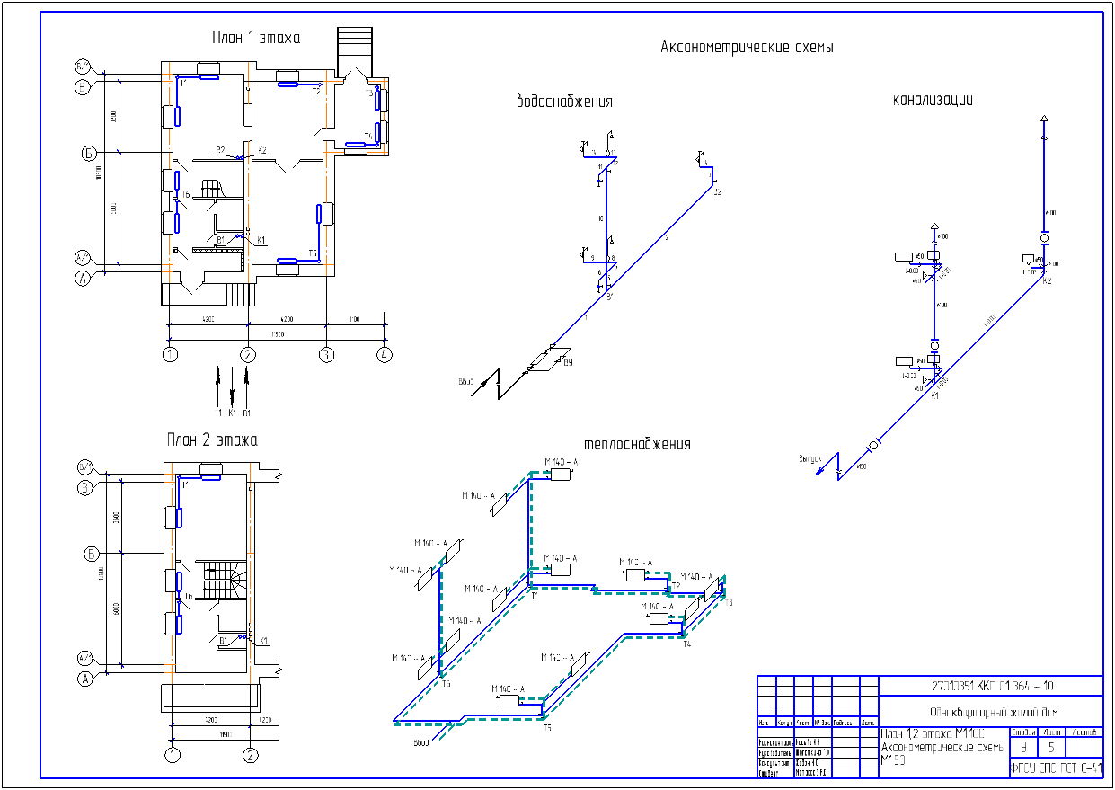
Как отразить все элементы коммуникаций на чертеже
Для того чтобы справиться с такой задачей, вам потребуется программа для создания графических рисунков, эскизов и схем. Можете открыть любую из арсенала строительных программ, дополненных такой функцией, или ту, с которой вы знакомы.
Перед разработкой аксонометрии подготовьте план здания, квартиры или другого помещения с коммуникационными сетями.

Начертить все не так уж и сложно, особенно если у вас имеется опыт работы с инженерными программами. На эскизе отражают все трубы, показанные на плане дома. Их переносят в электронную версию аксонометрической схемы и отражают под углом в 45 градусов.
https://youtube.com/watch?v=nF2kEdg7RJM
Создание чертежа в «Автокаде»
Данная программа является одним из главных помощников в проектировании, так как позволяет создавать чертежи быстро и удобно. В системе «Автокад» можно разработать и проект водоснабжения и канализации. Но для этого понадобятся определенные знания, так как программа имеет свои особенности.
Даже для того чтобы разработать самый простой чертеж в «Автокаде», нужно потратить несколько часов на изучение программы. Во всемирной сети предлагается немало бесплатных уроков, которых будет достаточно для того, чтобы освоить азы. Этого хватит для создания простого чертежа системы водоснабжения и канализации.
Программа удобна тем, что здесь можно прочертить любую схему. Для создания системы вывода и отвода воды из жилого здания в «Автокаде» применяют те же условные обозначения, что и в обычных чертежах.
В программе «Автокад» имеется огромное количество плюсов, которые будут полезны для тех, кто создает проекты систем водоснабжения и канализации. Тут можно внести отсканированный чертеж, а после на нем делать поправки, но уже на компьютере. Возможности программы позволяют не вычерчивать все элементы, а отмечать лишь половину, после чего использовать функцию отражения чертежа. Это позволяет сэкономить время и силы, если речь идет о симметричном изображении.
Программа «Автокад» будет полезна для тех, кто занимается проектированием различных систем. Но ее нужно хорошенько изучить, чтобы работа была простой и удобной. Кроме «Автокада» есть и другие специальные программы. Но в любом случае и на их освоение потребуется немало времени, поэтому значительно проще доверить работу по созданию чертежей водоснабжения и канализационной системы профессионалам.
Свойства жидкости
Жидкостями называют те вещества, которые находятся в жидком агрегатном состоянии. Оно, в свою очередь, является промежуточным между агрегатным состоянием твердым и газообразным. Жидкость имеет также такое свойство, которое не встречается более ни у одного другого агрегатного состояния: она способна под воздействием касательных механических напряжений менять свою форму в практически неограниченных пределах. При этом механические напряжения могут быть очень малыми, а объем жидкости остается неизменным.
Еще одним важнейшим свойством, присущим всем жидкостям, является поверхностное натяжение. Его нет ни у газов, ни у твердых тел, а объясняется оно следующими причинами: из-за того, что баланс действующих на молекулы поверхности сил нарушается, появляется определенная новая, направленная внутрь вещества результирующая сила. Именно этим и объясняется то обстоятельство, что поверхность жидкости всегда «натянута». Если рассматривать эту ситуацию с точки зрения физики, то можно утверждать, что поверхностным натяжением является ни, что иное, как та сила, благодаря которой молекулы жидкости не перемещаются с ее поверхности в глубинные слои. Именно сила поверхностного натяжения объясняет форму падающих капель любой жидкости.
Трубопровод
В современной технике трубопроводами именуют такие устройства, которые предназначаются для транспортировки разнообразных жидких, газообразных и сыпучих сред. Основными составными частями трубопроводных систем являются: прямые трубы, которые плотно соединены между собой; подвески и опоры; контрольно-измерительная аппаратура; запорно-регулирующие устройства; крепежные элементы; уплотнения и прокладки; средства автоматики.
Помимо этого к элементам трубопроводных систем относятся и материалы, необходимые для того, чтобы обеспечивать эффективную защиту всех указанных выше составных частей от пагубного воздействия пониженных и повышенных температур, а также от электрохимической коррозии.
Местами расположения элементов трубопроводных систем являются их разветвления, повороты, а также переходы на другой диаметр. Они служат для того, чтобы обеспечивать длительный срок службы системы в целом, а также герметичность всей конструкции. Практика показывает, что без таких элементов, как отводы, тройники и переходы сейчас не реализовывается практически ни одна трубопроводная система.
Внешний и внутренний диаметр труб и трубопроводной арматуры
DN — условный диаметр).
Используется как элемент соединяемых деталей, таких как: трубопроводная арматура, фитинги, соединения для различных типов трубопроводов.
Номинальный диаметр (округленный внутренний) не указывает точный размер в миллиметрах и приблизительно равен значению внутреннего диаметра соединяемой трубы в миллиметрах (Определен в ГОСТ 28338-89, соответствует ISO 6708-80).
Параметр введен для уменьшения стандартных размеров клапанов, труб и различных фитингов, принято понятие номинального размера.
Согласно ГОСТ 28338-89 необходимо обозначать буквы DN и числовое значение, выбранное из стандартного диапазона.
Ранее использовались обозначения: Dy — условный проход
Действуют все ГОСТы, указанные в тексте на момент написания 01.02.2018
Особенности применяемых обозначений
Для грамотного размещения в здании системы канализации стоит, в
первую очередь, учесть все возможные нюансы на предварительном чертеже
Стоит
помнить, что для каждого типа помещения должен использоваться разный проект.
Кроме того, проектировщик обязан принимать во внимание иные факторы, среди
которых:
- особенности здания;
- место географического размещения;
- количество жилых и нежилых комнат;
- количество выводов для подключения стоков.
Ещё на этапе проектирования возникает большое количество
нюансов. Именно для их учёта и потребуется схема, которая включает обозначение канализации,
и по которой будут выполняться последующие монтажные работы.
В процессе оформления проекта должны использоваться общепринятые
условные обозначения на
чертежах водоснабжения и канализации. Такие символы легко понять
мастеру, который действительно разбирается в своей работе.
Обозначение канализации на чертежах, которое применяется во время оформления проекта, регламентируется соответствующими ГОСТами и правилами СНиП. ГОСТ 21.205-93 СПДС. Условные обозначения элементов санитарно-технических систем. Использовать любые иные виды изображений принято считать недопустимым.
Отведение атмосферных осадков
Чтобы предотвратить преждевременную просадку строений, растрескивание стен, устраивается эффективная дождевая канализация К2. В ее задачу входит сбор, очистка и отведение атмосферной влаги. Часто К2 конструктивно объединяется с дренажной системой. Правила монтажа систем канализации
Ливневая канализация состоит из надземной и подземной частей. На поверхности система представляет конструкцию из приемных воронок, отводящих труб и желобов открытого типа. Фильтры, очищающие дождевую и талую воду от твердых загрязнений, могут располагаться как поверхностно (чаще) так и в подземной части отводящей сети.
При наличии коммунальной системы ливневого водоотведения атмосферные осадки собираются централизовано и после очистки от механических примесей сбрасываются в водоемы. На загородных участках также часто бывает возможность отведения атмосферной влаги в близлежащие природные резервуары. Если этого нет, сооружаются специальные колодцы, куда происходит сброс и поверхностных подземных вод дренажной системы.
Классификация по диаметру
Вы должны понимать, какого диаметра бывают стальные трубы, чтобы знать, что выбрать. В зависимости от диаметра специальные трубы также делятся на несколько видов:
- Трубы малого диаметра имеют сечение не более 114 мм.
- Изделия среднего диаметра — более 114 мм, но не более 480 мм.
- Трубы большого диаметра имеют поперечное сечение более 480 мм.
Продукция данного типа не маркируется, они транспортируются в специальной упаковке с сопроводительной этикеткой. Аналогичным образом данные применимы к трубам, полученным в процессе холодной деформации, диаметром не более 450 мм.

Товары должны сопровождаться следующей информацией:
- Реквизиты производителя и номер заказа.
- Дата изготовления и данные смены.
- Номер упаковки.
- Большое число.
- Размеры, включая обозначение толщины стенки трубы.
- Нормативный документ.
- Номер купальника.
- Количество единиц в упаковке.
- Теоретический вес (указывается при заказе в метрах).
- Нынешний вес.
- Итого фильм.
- Код получателя.
Трубы среднего диаметра
Продукция с толщиной стенки более 3,5 мм и диаметром сечения более 159 мм маркируется индивидуально. Гнутые трубы диаметром более 159 мм и менее 450 мм маркируются на трех единицах всей упаковки и дополнительно сопровождаются специальной этикеткой.

Можно ли зашить стояк канализации?
Зашивка стояка канализации не рекомендуется, так как это может привести к серьезным проблемам в системе канализации. Стояк канализации — это основная вертикальная труба, которая отводит отходы от всех сантехнических приборов, подключенных к системе канализации в здании. Если стояк канализации будет засыпан или зашит, это может привести к засорению и нарушению естественного потока воды и отходов, что может привести к застою сточных вод и запахам, а также к повреждению труб и системы канализации.
Если же всё же необходимо скрыть стояк канализации, то можно использовать специальные короба из гипсокартона или других материалов, которые позволяют обеспечить доступ к трубам для проведения необходимых работ и обслуживания системы канализации
Важно также учитывать, что короба должны быть выполнены из материалов, устойчивых к влаге и совместимых с системой канализации
Условные знаки на чертежах для водопроводов
Перед разработкой проекта водоснабжения какого-либо здания и, в частности, загородного дома выявляется вся группа факторов, которая может повлиять на функционирование водопроводной системы.
Процесс создания проекта проходит несколько этапов:
- Исходя из общего количества водопотребляющих точек в доме и на участке рассчитывается максимальная нагрузка на систему подачи воды.
- Разрабатываются методы компенсации водоснабжения при понижении давления в центральной или локальной сети.
- Составляется чертёж.
- Производится подбор оборудования по выбранной схеме.
Чтобы правильно разместить условные обозначения водопровода на чертежах проектируемого объекта проектировщику нужно представить, из каких элементов состоит система водоснабжения. Число водопроводных элементов и материал, из которых изготовлена сантехническая арматура, может быть различным по стоимости и качеству, но принципиально это ничего не меняет.
Условные обозначения схем трубопроводов и соответствующая им комплектация водопроводной системы во всех случаях остаются по составу примерно следующими:
- скважина (или иной источник);
- насос;
- накопительный резервуар с тройником;
- две отводные трубы: одна — для домашнего водоснабжения, другая — для технического (сад, огород);
- система фильтрации воды для дома с тройником;
- две отводные трубы: одна — для холодной воды, другая — для горячей.
Условные графические обозначения трубопроводов направлены на то, чтобы показать систему разводки труб горячей и холодной воды.
Холодная вода от тройника системы фильтрации поступает в коллектор, установленный в доме. Оттуда распределяется по трубам на имеющиеся сантехнические точки.
Горячая вода подводится к нагревателю и затем точно также разводится по точкам. Наглядно это демонстрирует данная схема:

Виды швов по ГОСТам (квадраты 2 и 3 примера)
Возможные способы соединения двух элементов вплотную рассматриваются в ГОСТах 14771-76 и 5264-80. Есть такие виды сварочных соединений:
- С – стыковой шов. Два соединяемые элемента находятся в одной плоскости и на одном и том же уровне. Они состыкуются между собой смежными торцами. Это один из наиболее востребованных вариантов соединения. Его особенность заключается в том, что механические характеристики сварного шва очень высоки, а внешний вид готовой конструкции эстетичен. Наряду с положительными сторонами есть и отрицательные. Такой вид соединения остается сложным в техническом плане. Качественно он может быть исполнен только опытными специалистами.
- Т – тавровый шов. Подразумевается соединение двух элементов, расположенных один относительно другого под углом 90 градусов, а место соединения имеет Т-образную конфигурацию. Это наиболее жесткий вариант соединения из всех рассматриваемых. Поэтому его не применяют в случаях, когда для готовой конструкции важна некоторая эластичность.
- Н – нахлесточный шов. Две заготовки располагаются параллельно, но не в одной плоскости. Они соприкасаются с некоторым перекрыванием плоскости. Достаточно прочный и надежный способ соединения, но по жесткости уступает тавровому варианту.
- У – угловой шов. Две заготовки торцами располагаются под углом 90 градусов. Плавятся торцы, в результате чего образуется достаточно прочное и жесткое соединение.
- О – особые типы. Так обозначаются все другие варианты сваривания заготовок, которые не описаны в стандарте.
Оба упомянутые в начале раздела ГОСТа имеют общие черты и перекликаются между собой. Для ручного дугового соединения по ГОСТу 5264-80:
- С1 – С40 стыковые;
- У1 – У10 угловые;
- Н1 – Н2 нахлесточные;
- Т1 – Т9 тавровые.
Выполнение сварочных работ в инертной среде по ГОСТу 14771-76:
- У1 – У10 угловые;
- С1 – С27 стыковые;
- Н1 – Н4 нахлесточные;
- Т1 – Т10 тавровые.
В приведенном примере есть рассмотренные только что цифры. Во втором квадрате размещена информация по использованному стандарту – 14771-76. В третьем квадрате изложен способ соединения – тавровый двусторонний без скоса кромок.
Канализация к1 к2 к3 что это?
На всех чертежах можно встретить отметки с буквой «К» и цифрами
возле неё. Канализация к1
к2 к3 что это? Когда проект подразумевает бытовую систему отведения
стоков, то маркировка будет «К1». Если необходимо провести сток дождевой воды,
тогда используется индекс «К2». Канализация к3 применяется для проведения системы промышленного
водоотведения.
Важно помнить, что К1, К2, К3 обозначение канализации должны использоваться только
по назначению. Категорически запрещается маркировать на проекте детали
канализации символами, которые не прописаны в действующих правилах СНиП и
ГОСТах
Делается это для того, чтобы монтажники сумели безошибочно определить
используемое обозначение и выполнить работу в соответствии с проектом.
Применение регламентированных символов и обозначений позволит добиться исправной работы канализационной системы на протяжении долгого времени службы, и избавит владельца квартиры или дома от ремонтных работ инженерной сети.
Всё полезное о канализации — gidkanal.ru
2 Нормативные ссылки
В настоящем стандарте использованы ссылки на следующие
стандарты:
ГОСТ
2.317-2011 Единая система конструкторской документации. Аксонометрические
проекции
ГОСТ
21.101-97* Система проектной документации для строительства. Основные
требования к проектной и рабочей документации
* На территории Российской Федерации действует ГОСТ
Р 21.1101-2009.
ГОСТ
21.110-95 Система проектной документации для строительства. Правила
выполнения спецификации оборудования, изделий и материалов
ГОСТ
21.114-95 Система проектной документации для строительства. Правила
выполнения эскизных чертежей общих видов нетиповых изделий
ГОСТ
21.205-93 Система проектной документации для строительства. Условные
обозначения элементов санитарно-технических систем
ГОСТ
21.206-93 Система проектной документации для строительства. Условные
обозначения трубопроводов
ГОСТ
21.302-96 Система проектной документации для строительства. Условные
графические обозначения в документации по инженерно-геологическим изысканиям
ГОСТ 10704-91
Трубы стальные электросварные. Сортамент
Примечание – При
пользовании настоящим стандартом целесообразно проверить действие ссылочных стандартов
на территории государства по соответствующему указателю стандартов,
составленному по состоянию на 1 января текущего года, и по соответствующим
информационным указателям, опубликованным в текущем году. Если ссылочный
стандарт заменен (изменен), то при пользовании настоящим стандартом следует
руководствоваться заменяющим (измененным) стандартом. Если ссылочный стандарт
отменен без замены, то положение, в котором дана ссылка на него, применяется в
части, не затрагивающей эту ссылку.
Маркировка коммуникаций различными приспособлениями
В том случае, когда содержимое коммуникаций носит особенно агрессивный характер, на них наносят предупредительные кольца одним из трех цветов: красный цвет соответствует легковоспламеняемости, огнеопасности и взрывоопасности; желтый цвет — опасности и вредности (ядовитость, радиоактивность, способность вызвать различного вида ожоги и др.); зеленый цвет с белой каймой соответствует безопасности внутреннего содержимого. Ширина колец, расстояние между ними, способы нанесения стандартизируются ГОСТ 14202-69.
Разметка сетей возможна с помощью наклеек. В том случае, когда наклейка содержит текст, он выполняется четко различимым шрифтом, без лишней символики, слов, аббревиатуры, максимально доступным слогом. Шрифты соответствуют ГОСТ 10807-78.
Наклейки выполняются также в виде стрелок, показывающих направление потока субстанции внутри трубы. Стрелки также стандартизированы относительно размеров
Обозначение на стрелках носит дифференцированный характер: «легковоспламеняющиеся вещества», «взрыво- и пожароопасно», «ядовитые вещества», «коррозийные вещества», «радиоактивные вещества», «внимание — опасность!», «пожароопасно — окислитель», «аллергические вещества». Цвет стрелок, как и надписей, наносят черным или белым цветом, для достижения наибольшего контраста по отношению к основному покрытию трубы
При особо опасном компоненте коммуникаций наклейки выполняются в виде предупреждающих знаков (дополнительно к цветовым кольцам). Знаки имеют треугольную форму с черным изображением на желтом фоне.
Важно! В водопроводных сетях с горячей водой и в случае транспортировки этилированного бензина надписи должны быть белыми. Если содержимое трубопровода может повредить цветовое обозначение, изменить его оттенок, в качестве дополнительной маркировки применяют специальные щитки, носящие информативный характер цифрового и буквенного характера
Требования, предъявляемые к графике щитков, идентичны требованиям наклеек. Размерные характеристики щитков соответствуют характеристикам стрелок. Маркировочные щитки должны располагаться в хорошо видимых местах, при необходимости подсвечиваются искусственным освещением без помех для рассмотрения обслуживающим персоналом
Если содержимое трубопровода может повредить цветовое обозначение, изменить его оттенок, в качестве дополнительной маркировки применяют специальные щитки, носящие информативный характер цифрового и буквенного характера. Требования, предъявляемые к графике щитков, идентичны требованиям наклеек. Размерные характеристики щитков соответствуют характеристикам стрелок. Маркировочные щитки должны располагаться в хорошо видимых местах, при необходимости подсвечиваются искусственным освещением без помех для рассмотрения обслуживающим персоналом.
Маркировка коммуникаций различными приспособлениями
В случае, если содержание сообщений носит особо агрессивный характер, к ним наносятся предупреждающие кольца одного из трех цветов: красный цвет соответствует воспламеняемости, воспламеняемости и опасности взрыва; желтый цвет — опасность и вред (токсичность, радиоактивность, способность вызывать различные виды ожогов и т д.); зеленый с белой каймой гармонирует с сохранностью внутреннего содержания. Ширина колец, расстояние между ними, способы нанесения стандартизированы ГОСТ 14202-69.
Возможна маркировка сеток с помощью клея. В том случае, если наклейка содержит текст, она выполняется четко различимым шрифтом, без символов, слов, лишних сокращений, в максимально доступном слоге. Символы соответствуют ГОСТ 10807-78.
Наклейки также выполнены в виде стрелок, показывающих направление потока вещества внутри трубки. Стрелки также стандартизированы по размеру
Обозначения на стрелках дифференцированы: «легковоспламеняющиеся вещества», «взрывоопасные и опасные для пожара», «токсичные вещества», «коррозионные вещества», «радиоактивные вещества», «внимание — опасность!», «Пожарная опасность — окислитель», «аллергические вещества». Цвет стрелок, как и надписи, нанесен белым или черным, чтобы получить максимальный контраст по отношению к основному покрытию трубы. В случае особо опасного компонента коммуникаций наклейки выполняются в виде предупреждающих знаков (помимо цветных колец)
Знаки имеют треугольную форму с черным изображением на желтом фоне
В случае особо опасного компонента коммуникаций наклейки выполняются в виде предупреждающих знаков (помимо цветных колец). Знаки имеют треугольную форму с черным изображением на желтом фоне.
Важно! В водопроводах с горячей водой и при транспортировке этилированного бензина надписи должны быть белого цвета. Если содержимое конвейера может повредить цветовое обозначение, изменить его оттенок, в качестве дополнительной маркировки используются специальные экраны информативного характера цифрового и буквенного характера. Требования к графическому изображению щита идентичны требованиям к наклейкам
Размерные характеристики щитов соответствуют характеристикам стрел. Таблички должны быть размещены обслуживающим персоналом на хорошо видных местах, при необходимости освещенных искусственным освещением без помех
Требования к графическому изображению щита идентичны требованиям к наклейкам. Размерные характеристики щитов соответствуют характеристикам стрел. Таблички должны быть размещены обслуживающим персоналом на хорошо видных местах, при необходимости освещенных искусственным освещением без помех









Если содержимое конвейера может повредить цветовое обозначение, изменить его оттенок, в качестве дополнительных маркеров используются специальные экраны, которые носят информационный характер цифрового и буквенного характера. Требования к графическому изображению щита идентичны требованиям к наклейкам. Размерные характеристики щитов соответствуют характеристикам стрел. Таблички должны быть размещены на хорошо видных местах, при необходимости освещенных искусственным светом без вмешательства обслуживающего персонала.
Что содержит схема водопровода и канализации?
При составлении проекта нужно учитывать множество разных моментов
Здесь, как правило, указываются не только схемы различных узлов, труб, клапанов и коллекторов, но и немалый объем другой важной для художников информации. Это необходимо, чтобы мастерам было проще и удобнее читать чертежи
Здесь используются условные обозначения, но в основном в буквенно-цифровой форме.
Проектная документация должна содержать план разводки коммуникаций, особенно системы подачи горячей, холодной воды и канализации. Указаны данные таблицы конструкций, спецификация проекта и много другой информации, которая может оказаться полезной при выполнении запланированных работ. Только при правильном оформлении всех документов вы можете быть уверены, что система будет работать корректно и не доставит неудобств людям, которые будут проживать в проектируемом доме. Без определенных знаний и опыта справиться с этой задачей будет невозможно, поэтому, если вы сомневаетесь в своих силах, стоит доверить эту работу профессионалам.
Информация об обозначении системы канализации и водоснабжения в проектной документации принято вводить буквенно-цифровыми символами. Они являются общими для всех схем и чертежей сантехнических трубопроводов.
Общее обозначение водопровода обозначено как B0, трубы для хозяйственно-питьевой воды обозначены как B1. Если на схеме изображен водопровод для системы пожаротушения, указывается В2, а вода на производственные нужды подается по трубе В4.
Поэтому все, что обозначено буквой «B», относится к системе водоснабжения. Знак канализации обозначается буквой «К». Если необходимо обозначить на схеме водоотвод дома, будет указано К1. Обозначение K2 используется для отвода дождевой воды. Для создания дренажной системы в производственном здании будет использована марка К3.

Все цифровые, буквенные и графические символы должны использоваться правильно. Не допускается использование в чертежах водопровода и канализации те элементы, которые не регламентированы ГОСТом и СНиП. Следует помнить, что с помощью соответствующих знаков создается формула, по которой художники работают дальше. Если вы напишете схему и неправильно составите чертеж, это может привести к чрезмерно быстрому износу сети, частым поломкам или даже сделать здание непригодным для жизни человека. Правильные символы и условные обозначения гарантируют, что исполнитель прочитает документ так, как задумано, и от этого во многом зависит качество строительно-монтажных работ. При соблюдении всех требований ГОСТ можно разработать эффективную систему канализации и водоснабжения, которая обеспечит их долгую и бесперебойную работу.




































