Внешняя и внутренняя отделка
Возведенная баня из доски 50х150 на ребро своими руками нуждается в отделке. Внутри стены обшивают вагонкой, декоративными панелями или гипсокартоном. Душевую отделывают керамической плиткой, парилку — вагонкой из липы. Наружный каркас заделывают сайдингом или блок-хаусом. Они придают жесткость.
Типовые варианты саун часто подразумевают в качестве облицовки чернового потолка использование досок или ОСП. Также используется хвойная обивка, защищающая от воздействия больших температур.
В качестве напольного покрытия отлично подойдут половицы из лиственницы, кафель, и плитка из керамогранита. Чтобы поверхность не скользила и было комфортно принимать процедуры, на плитку сверху укладывают ходовые дорожки.
Как сделать парную или душевую максимально удобными? Покупайте только качественные отделочные материалы
Важно, чтобы внутренняя облицовка не нуждалась в обработке лакокрасочными изделиями. Под воздействием пара, они выделяют токсичные вещества опасные для здоровья
Внутренняя и наружная отделка
Для облицовки помещений с высокой температурой не рекомендуют применять хвойные породы, т. к. они выделяют смолистые вещества, вредные для дыхания. Для стен, пола, потолка, лавок используют лиственницу, березу, пихту, осину, кедр.
Наружную облицовку чаще сочетают с утеплением, поэтому предусматривают устройство каркаса по типу навесного фасада, чтобы заложить слой изолятора. Используют теплую штукатурку, когда на поверхность стены наклеивают пенопласт или пенополистирольные плиты. По утеплителю монтируют штукатурную пластиковую сетку, затем выполняют слой шпаклевки с гладкой или фактурной поверхностью под окраску.
Планировка бани
Чтобы проект был полным и позволил с первого раза получить разрешение в административных органах, необходимо хорошо знать устройство бани. Это поможет составить правильные чертежи.
Бани состоят из 4 частей:
- Предбанник.
- Душевая.
- Парная.
- Тамбур.
 
 Типовая планировка бани с тамбуромИсточник mir-ban.ru
Тамбур
После входа человек попадает в тамбур. Тамбур одновременно является прихожей и защитой предбанника от попадания холодного воздуха. Его иногда используют как раздевалку. Размер выбирает будущий владелец.
Предбанник
За тамбуром идёт предбанник. Это комната, где люди отдыхают. Из-за этого её следует делать комфортной, удобной, а самое главное – просторной. Данное помещение также используют как место для охлаждения, поэтому наличие окна необходимо.

 Комната отдыха в бане из брусаИсточник hr.aviarydecor.com
Минимальная рекомендованная площадь – 6 м. Для дополнительного удобства желательно поставить стол, телевизор и скамью для отдыха.
Душевая
Далее следует душевая. Помимо моечного оборудования, при желании можно поставить унитаз. При наличии достаточного пространства будет отличным решением разместить бассейн. 3 метра под него будет достаточно.

 Душевая в бане из брусаИсточник rusles-perm.ru
Парная
В самом конце бани находится парилка. Главное, что нужно учитывать, – двери должны выходить не на тамбур! Это ошибка будет постоянно снижать температуру в парной, что снизит её эффективность.

 Парная в бане из брусаИсточник hometi.ru
Баня на даче 6 на 6: как правильно построить печь?
Баня на даче, особенно размером 6 на 6, может стать отличным местом для отдыха и расслабления. Однако для обеспечения оптимального пара ключевым элементом бани является печь. Построить её правильно — значит обеспечить уют, безопасность и эффективность бани.

Выбор типа печи
Печь для бани может быть разного типа: классической кирпичной, металлической или комбинированной. Выбор зависит от ваших предпочтений, бюджета и доступного пространства в бане.
| Тип печи | Преимущества | Недостатки | 
|---|---|---|
| Кирпичная | Долговечность, равномерное распределение тепла, возможность создания индивидуального дизайна. | Требует большого пространства, высокая стоимость материалов и работ, длительное время прогрева. | 
| Металлическая | Быстрый прогрев, относительно невысокая стоимость, компактность. | Короткий срок службы по сравнению с кирпичной, меньшее время удержания тепла, могут нагреваться до высоких температур и представлять опасность. | 
| Комбинированная (металл + кирпич) | Сочетает преимущества кирпичных и металлических печей: быстрый прогрев и долговременное сохранение тепла. | Стоимость выше, чем у металлических печей, требует больше места, чем металлическая. | 
Размещение печи
Правильное размещение печи обеспечивает равномерное распределение тепла и безопасность. Печь обычно устанавливают в углу или посередине помещения, соблюдая необходимые расстояния до стен и других элементов бани.

Материалы для печи
Для печи потребуются такие материалы, как кирпичи, глина, металл, огнеупорные плиты и др. Выбор материалов зависит от типа печи и требований к безопасности.
Строительство печи начинается с подготовки основания или фундамента, который должен быть прочным и стабильным.

Строительство корпуса печи
Корпус печи — это основная часть, которая накапливает тепло и отдает его в баню. Он должен быть построен правильно, чтобы обеспечивать равномерное нагревание и долгую службу печи.
Установка дымохода
Дымоход является важным элементом печи, который обеспечивает устранение дыма и продуктов сгорания. Его установка и расположение должны соответствовать правилам пожарной безопасности.

Финишные работы
После завершения строительства печи необходимо провести проверку всех её функций и, при необходимости, провести дополнительную обработку поверхности для улучшения внешнего вида или увеличения эффективности.
Процесс прогрева печи
Прогрев печи должен быть проведен с учетом всех нюансов, чтобы обеспечить равномерный нагрев и продолжительность сохранения тепла. Обычно печь прогревают за несколько часов до начала парения.



Особенности строительства бани из бруса и пеноблоков
Строительство бани из бруса имеет ряд характерных особенностей:
- Не потребуется дополнительной отделки при использовании клееной разновидности бруса. Она может быть проведена только по собственному желанию.
- Брус относится к числу удобных материалов для строительства, ведь перед этим не потребуется проводить дополнительные подготовительные работы.
- При использовании бруса не возникает необходимости дополнительно утеплять постройку.
- Это прочный, привлекательный и экологически безопасный материал.
Постройка бани из пеноблоков – еще один вариант. Он, безусловно, имеет отличительные особенности. Это:
- Вес готового строения небольшой, следовательно, уровень оказываемой нагрузки на фундамент низкий. 
- Благодаря использованию пеноблоков в строительстве защита бани от морозов и ветра более надежна. 
- Из-за пористой структуры материала можно за короткий срок времени возвести баню. 
- С ним можно работать без использования дополнительных специальных инструментов. 

Особенности эксплуатации
Только парная обеспечивает самое здоровое и единственно правильное соотношение влажности и жара. Но и там существуют свои экстремальные значения. Это подтверждается и научно. Наилучшее самочувствие при определённом сочетании влажности и температуры графически выражено хомотермальной кривой. Ниже первой из кривых — оптимальное сочетание температуры до 90° и влажности до 80%, которое и обеспечивает русская парная баня.
Хомотермальные кривые можно считать индикатором самочувствия в бане
Во время нахождения в парной тело окатывает горячий влажный воздух, особенно при воздействии на него веником, благодаря чему всё прогревается. При этом происходит постоянный приток кислорода к тканям.
Циркуляция воздуха в парной и обеспечивает оздоравливающий эффект
После нахождения в парилке надо окунуться в ледяную купель.
Купели в моечной русской бани должны быть наполнены прохладной водой
Установка печи и трубы для бани
Установка печи и трубы является одним из наиболее важных этапов при строительстве бани. Правильно установленная печь и труба не только обеспечат эффективность нагрева, но и гарантируют безопасность эксплуатации. В этой статье мы рассмотрим основные этапы установки печи и трубы для бани.

Подготовительные работы
Перед установкой печи и трубы необходимо выполнить подготовительные работы. В первую очередь необходимо определить место, где будет располагаться печь, и прокладку трубы. Необходимо также подготовить место для установки фундамента под печь.

Установка фундамента и печи
После того, как место для печи было определено, необходимо установить фундамент под нее. Фундамент должен быть прочным и устойчивым к воздействию высоких температур. Затем необходимо установить саму печь на фундамент. При установке печи необходимо убедиться в ее герметичности и правильности установки.

Установка трубы
После установки печи необходимо прокладывать трубу. Труба должна быть установлена вертикально и обеспечивать свободный выход дымовых газов. Перед установкой трубы необходимо убедиться в ее герметичности и правильности установки. Для установки трубы можно использовать специальные крепления и фитинги.


Планировка бани своими руками: рекомендации
В самом начале сделайте чертежи бани, в которой будет расположена идеальная площадь бани своими руками созданная.
Идеальная площадь на человека примерно 5 кв.м. Примерно будут посещать баню 4 человека, то общая площадь должна быть не менее 20 кв.м.
Минимальная количество комнат для бани своими руками рекомендуется: парилка, моечная, комната отдыха и предбанник. Определите для себя расположение всех помещений и как они будут удобны.
Выполните несколько схем и чертежей:
- Общий план постройки.
- Схема фундамента.
- Чертеж каждого комнаты.
- Схема кровли.
- План устройства пола и потолка бани.
- План крепления и выкладка бруса.
- Схема установки печи с учетом ее конструкционным особенностей.
Все чертежи которые вам могут понадобиться вы можете создать сами, но также вы можете найти и готовые чертежи которые предоставлены ниже или найти в открытом доступе, выбрать тот который вам пойдет под ваши запросы. Вы также можете заплатить архитектору или строителю и заказать у них уникальный проект.
Из какого материала построить баню дома самому
Сейчас выбрать материала для постройки бани очень большой, следовательно каждый может выбрать себе ту баню которая будет ему по душе. Часто строят баню из дерева, кирпича и газобетона.
Баня из Дерева.
Деревянная баня — старая классика, именно ее строили наши предки. Дерево это экологически чисто, низкий уровень теплопроводности, великолепный внешний вид, запах дерева, она не нуждается в нутряной отделки.
Постройка бани своими рука из дерева разделяется на несколько видов из-за разновидности материала.
Баня из бруса — распространяемый вариант. У него маленькая теплопроводность, у нее маленькая усадка, ее достаточно просто строить, из-за маленького веса, нет нужды делать сложный фундамент.
Баня из бревна — тоже пользуется спросом, построить ее сложнее чем из бруса, вы должны тщательно выбирать материал, должен быть прямым, без всяких изгибов.
При осмотре материала вы увидите признаки гниения дерева, синие пятна это повод сигнал вам, чтобы вы отказались от этого материала.
Внешний вид оцилиндрованной бани преимущественно лучше чем из бруса. Но из бруса по строительству дешевле, выше уровень теплоизоляции, не надо конопатить щели.
Если у вас сильное желание построить надежную баню из дерева и опасаетесь деформации, которая возможно проявится при сушке дерева, то советую вам рассмотреть материал Лафет.
У нее все преимущества постройки:
- Экологичность
- Эстетичность
- экономия на внутренней отделки и внешней отделки
Недостаток ее в основном это в замковом соединении который повышает прочность бани.
Самый простой и дешевый вариант это каркасная баня. Построить ее может каждый, даже не имея опыта в строительстве. Построить ее будет дешевле, внутреннюю отделку можете делать сразу. Каркас имеет очень плохой уровень пароизоляции, поэтому сделайте все работы по защите стен от попадание влаги.
Баня из газобетона
Газобетон — очень крепкий и надежный.
Плюсы:
- Пожароустойчивость.
- Влагоустойчивость.
- Низкая теплопроводность.
- Дешевле чем дерево.
Из минусов это конечно же внешний вид постройки, заставляет потратиться на облицовку, что влечёт за собой дополнительные затраты.
Баня из пеноблока
Пеноблок по структуре похож на газоблок, но преимущество в пеноблоке это меньшее гигроскопичность, по этому построить баню становится еще проще. Он дешевле примерно на 20%, но уступает по прочности. При строительстве совмещают 2 материала несущие стены из газоблока а обыкновенные перегородки из пеноблока.
Баня из Шлакоблока
Самый главный плюс шлакоблока это его цена чем другие материалы. Этот материал делают из отходов, вы должны понимать что данный материал не экологически чисты.
Баня из шлакоблока — это дешево, но есть потери шумоизоляции и теплопроводности. Его показатели по прочности ближе к кирпичу.
Самый главный минус шлакоблока это его внешний вид. И придется вам потратиться на дополнительные материалы для отделки внешнего вида. В основном кто выбирает постройку бани из блоков уже знают чем и как буду облагораживать внешний вид, покроют его сайдингом или другими материаломи.
Баня из кирпича
Сама кирпичная конструкция считается надежной и крепкой и самый важный фактор постройка из кирпича не воспламеняется. Сам процесс постройки бани из кирпича является самым сложным, нежели из других материалов. Если у вас нет опыта с этим материалом, рекомендую рассмотреть другие материалы которые просты в постройке это Брус, Газоблоки.
Ленточный фундамент
Такое основание обустраивают, когда на приусадебном участке пучинистая почва.
Работу по его строительству выполняют пошагово:
- На участке производят разметку и выкапывают траншею, у которой ширина равна 40 сантиметрам, а глубина составляет примерно 50 сантиметров.
- Яму заполняют песком послойно до достижения уровня земли, каждый раз утрамбовывая и поливая водой для плотной усадки.
- Сооружают опалубку высотой 50 и шириной 30 сантиметров. Для большей прочности делают ее армирование, используя прутки и металлические трубы.
- Заливают бетонный раствор за несколько подходов (не давая высохнуть предыдущему слою) или за один раз.
- Поверх бетона с целью гидроизоляции каркасных стенок настилают рубероид.
Разновидности эконом бань
Экономичная баня на даче – это отличное решение для малогабаритных садовых участков, площадь которых не превышает 10 соток. А значит, и само строение должно быть эргономичным: до 6 метров в длину и 4 метров в ширину.
Рассмотрим основные варианты конструкций, которые можно выгодно обустроить на небольшом частном участке.
Каркасная
Самая простая каркасная баня возводится на облегченном основании, имеет износостойкий деревянный каркас, обшитый качественными материалами.
Чтобы маленькой каркасной бане обеспечить дополнительную защиту от негативного воздействия влаги и перепадов температур, конструкцию утепляют и гидроизолируют.
Для возведения бани подходят сухие бревна сечением до 112 мм. Чтобы сделать компактную баню площадью до 13 кв. м, необходимо подготовить 80 единиц пиломатериала. Для утепления можно использовать минеральную вату, жгутовое волокно и паклю.
Каркасные конструкции не нуждаются в дополнительной внешней отделке. При желании ее можно выполнить, но это в разы увеличит затраты на реализацию проекта.
Монолитная
Еще один экономный вариант конструкции для возведения на дачном участке. Она предусматривает использование дешевого материала – арболита, который готовится из песка, цемента, химических добавок и заполнителя. В качестве заполнителя используются древесные опилки хвойных и лиственных деревьев, конопляные и льняные костры, стебли соломы из риса и хлопчатника.
Существует две технологии возведения бани: из опилкоблоков кирпичной кладкой или монолитным литьем. Монолитная технология предусматривает предварительную установку опалубки съемного типа с последующей заливкой стен готовой смесью.
Мобильная
На современном рынке представлены готовые эргономичные конструкции бань с различными техническими и эксплуатационными параметрами. Одной из них является маленькая баня, представляющая собой тентовую палатку на стальной основе, оснащенную мобильной каменкой и рюкзаком для транспортировки.
Существуют более доступные и облегченные конструкции, которые оснащаются малогабаритной паровой установкой.
Несомненным преимуществом мини-бани для использования на даче является простота сборки и монтажа в любом доступном месте. В зависимости от конструктивных особенностей, габаритов и типа бани, в ней может находиться от 2 до 5 человек.
Эргономичная
Бюджетная баня-бочка является самым популярным и востребованным вариантом конструкции, которая обладает практически всеми преимуществами стационарной постройки.
Подобное строение представляет собой габаритную бочку, изготовленную из древесины. Она разделена специальной перегородкой на две функциональные зоны: парную и душевую – для проведения оздоровительных и водных процедур, предбанник – для монтажа отопительного оборудования. Мобильная бочкообразная баня способна вместить от 2 до 4 человек за один сеанс.
Для возведения стен используется обрезная доска из лиственных пород деревьев толщиной до 6 см. Мобильная экономбаня не требует обустройства фундамента, но для повышения устойчивости конструкции рекомендуется использовать дополнительную деревянную основу из досок толщиной до 5 см.
Если предусмотрена эксплуатация бани не только в летний период, но и с наступлением холодов, то обязательным условием является утепление конструкции. Для теплоизоляции используются морозостойкие и долговечные материалы, инертные к гниению и негативному воздействию внешних факторов.
Выбор места для строительства и планировки бани
Русская баня всегда строится из дерева, обязательный атрибут — каменная печь
Чаще постройку располагают в глубине дачного участка или двора частного дома. Оптимальным считается строительство рядом с природным водоемом, но такой вариант достаточно редкий. Неподалеку от бани можно оборудовать искусственный бассейн, чтобы окунаться после жары.
Выбирают возвышенность или пологий склон для строительства, чтобы иметь возможность сделать дренаж, организованный отвод воды самотеком к отстойнику. На территории не оставляют корней кустов и деревьев, т. к. в условиях влажностно-температурного режима они начнут прорастать, разрушать почву в основании и фундамент бани.
Разработаны специальные санитарные нормативы, регламентирующие расположение бани во дворах города или деревни.
Основные требования:
- здания, отапливаемые методом «по-черному» без трубы, ставят до дома не ближе 12 м;
- сооружения с устройством дымохода располагают не ближе 6 м;
- до источника питьевой воды — не ближе 8 м, а канализационную сеть выводят в противоположную от него сторону;
- до забора — 1 м, дороги на улице — 5 м;
- до сараев, хозблоков — 6 – 12 м (расстояние определяют по материалу стен).
Монтаж и утепление напольного покрытия
К нижней части лаг в основных помещениях банной постройки прибивают бруски, имеющие сечение 5х5 сантиметров. Поверх них монтируют доски чернового покрытия, затем рубероид (для гидроизоляции), следом – плиты минваты высотой 10 сантиметров или пенополистирол. Перед укладкой финального отделочного материала для пола настилают пергамин (для обеспечения пароизоляции).
 
В моечном отделении полы можно обустроить иначе:
- Чтобы напольная поверхность была теплой в любую погоду и высыхала быстро, по периметру помещения следует создать отдельный фундамент.
- Снимают почву на глубину 50 сантиметров и в образовавшуюся траншею насыпают гравий с песком 10-сантиметровым слоем. При попадании в такую дренажную яму вода станет уходить в грунт и не потребуется устройство приямка.
- Для этого пола желательно задействовать асбестоцементные трубы, имеющие диаметр 10 сантиметров. Их укладывают непосредственно на фундамент и заливают бетонным раствором, чтобы те не смещались.
- Потом на трубы настилают обрезную округлую доску 4-5-сантиметровой толщины, соблюдая зазор величиной 6-7 миллиметров и используя резиновые прокладки, которые фиксируют гвоздями.
- Затем материал пола прижимают плинтусами.
Можно ли делать баню в доме. По совместительству
Если речь идет о сауне, под нее можно возвести отдельное сооружение, или обустроить финскую парную с электропечкой внутри дома. Она более пожаробезопасна (по сравнению с дровяной) и не требует дымохода. В случае сносить дрова и разводить огонь не придется. Современное оборудование удобно и функционально: достаточно включить его и установить нужную температуру, при этом работу многих электрических печей можно контролировать дистанционно. Так что при грамотном подходе к строительству сауны внутри дома особых трудностей не возникнет.
Сторонники бани в коттедже отмечают массу плюсов такой концепции.

Минимальные расстояния между сооружениями на участке по санитарно-бытовым условиям Встроенная баня сэкономит место на участке. Как водится у нашего застройщика, помимо главного коттеджа и зоны отдыха с баней хочется возвести еще хозблок, гараж, беседку и пр. Вместить все в стандартные десять соток довольно проблематично. Не стоит забывать про плотность застройки. В СНиП 30-02-97 есть соответствующие правила: при стандартных размерах (6-12 соток) на участке должно быть не более 25-30 % застроенной территории. Следует учитывать и минимальные расстояния между сооружениями по санитарно-бытовым условиям.
 Традиционная, отдельно стоящая постройка предполагает, как минимум, четыре зоны: прихожую или тамбур, раздевалку, помывочную и парную. Если баня встроена в дом, вполне можно обойтись только последними двумя помещениями, что определенно сэкономит площадь на участке.
 Дом с баней под одной крышей построить дешевле (примерно в 1,5 раза), чем два отдельно стоящих здания. Сэкономить можно не только на материалах, но и на монтаже инженерных систем.
 В случае, когда парная встраивается в дом, площадь общего фасада будет меньше, чем у двух отдельных построек. Значит и затраты на отопление будут ниже.
 Зимой домашнюю парную протопить быстрее и проще, чем отдельно расположенную баню.
 Баня, обустроенная в доме либо в пристройке, создает дополнительные удобства отдыхающим: в непогоду после парной не придется переходить в дом по улице.
Баня: планировка и разделение общей площади на функциональные зоны
Если раньше бани состояли всего из одного помещения, то современные варианты этих сооружений включают несколько комнат. В их числе может быть моечная, предбанник, зона отдыха, бассейн, бильярдная и т. п. Чтобы в будущем владельцу не приходилось прибегать к перестройке и корректировке здания, еще на этапе проектирования необходимо внести в чертежи бани все важные пометки. Особого внимания заслуживают следующие моменты:
 
Для удобства современные бани включают в себя несколько функциональных зон
- планировка внутренних помещений;
- система водоснабжения;
- разводка электросети;
- канализация и система стоков.
Разработка плана бани с учетом условий дачного участка
Чтобы создать идеальные условия для отдыха в бане, нужно учитывать некоторые нюансы, которые позволят избежать неприятностей в процессе эксплуатации помещения. Желательно, чтобы зона строительства располагалась на почвах с низким уровнем пролегания грунтовых вод. Перед тем как приступить к разработке проекта, нужно сразу же исключить все участки, которые не соответствуют этому условию.
 
Проект бани размером 5 на 7 метров с открытой террасой
Если на территории имеется колодец, то расстояние между ним и баней не должно быть менее 5 м. Минимальный разрыв между парилкой и жилым зданием составляет 8 м. Чем дальше от бани будет размещаться компостная яма и туалет, тем лучше. Специалисты советуют делать вход с южной стороны. В зимнее время здесь образуется меньше сугробов, поэтому исключается вероятность блокировки доступа к двери. Лучше, если окна будут смотреть на запад, что будет способствовать проникновению в помещение достаточного количества солнечного света.
Если на дачном участке имеется водоем, построив баню в 15-20 м от него, можно использовать его вместо бассейна. Кроме этого, наличие реки или озера поблизости от сооружения позволит обеспечить систему подачи воды.
 
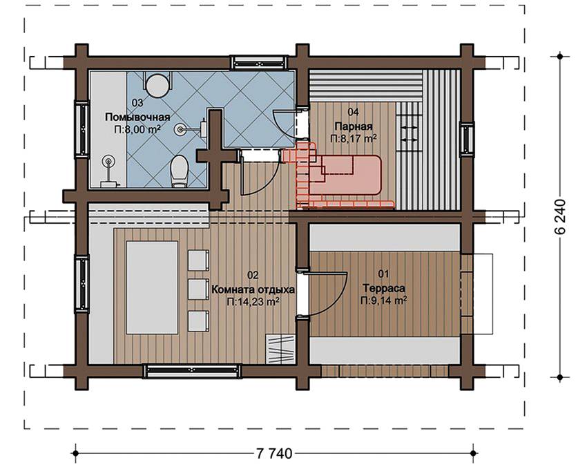
Проект бани размером 7,74 на 6,24 метра
Для небольших участков (3-6 соток) подойдут проекты бань 3 на 3, фото таких построек в изобилии присутствуют на сайтах строительных компаний. Даже в таких компактных строениях основным помещением остается парная. Под организацию этой комнаты следует отвести максимально возможное количество площади – около 8 м². Этого достаточно для того, чтобы установить 2-3 лежака (полки) и поставить печь-каменку.
Другие помещения могут быть включены в планировку бани 3х4 м и более (по желанию). Сооружение может использоваться по назначению даже при отсутствии бильярдной или санузла. Баня же без парилки существовать не может. По этой причине разделение внутреннего пространства на функциональные зоны в первую очередь зависит от размеров проекта.
 
Строить бани рекомендуется на расстоянии минимум 8 м от жилого сооружения
Если же хочется дополнительных удобств, в проект бани 3 на 4 м можно включить небольшую душевую комнату или помывочную. После парилки здесь можно будет смыть с себя грязь и освежиться. Для типовых проектов характерно наличие комнаты отдыха, которая будет эксплуатироваться в перерывах между сеансами пара. Для ее организации потребуется 4,5 м².
Нелишними будут и другие помещения, например, раздевалка или тамбур. Они достаточно компактны, чтобы поместиться в проекте бани 5 на 5 из бруса наряду с основными комнатами.
 
Проект бани размером 6х6 м со вторым мансардным этажом
Как построить печь для бани
После того как баня готова, самое время подумать об обустройстве печи. Вы можете приобрести готовые решения, однако сделать печь для бани своими руками будет намного дешевле. Наилучшим вариантом будет печь, выложенная из кирпича. Она обеспечит низкую теплопроводность (длительное остывание), а также приемлемую пожарную безопасность.
Первым делом выберите место для будущей печи, она должна быть расположена на расстоянии не менее 40см от деревянных стен. При желании это расстояние можно сократить, однако на стены придется наклеить покрытый фольгой асбокартон. В качестве строительного материала используется обожженный кирпич, который не должен иметь трещин, сколов и других дефектов. Кладка производится с использованием глинопесчаного раствора, при этом оптимальная толщина швов составляет пол сантиметра. Раствор наносится ровным слоем на предполагаемое место укладки. Каждый кирпич на 15 минут опускается в воду, после чего укладывается и осаживается, излишки раствора убираются. Обязательно проконсультируйтесь со специалистами относительно пожарной безопасности и правильного вывода из помещения продуктов горения!
Таким же способом укладываются все последующие ряды. Дверцы топки, а также другие элементы печи устанавливаются непосредственно в процессе ее сооружения.
Готовая печь должна сохнуть в течение 3-4 дней, после чего ее нужно растопить сухими поленьями для того, чтобы избавится от влаги, которая могла остаться в кирпичах. Для того чтобы избежать растрескивания кирпича, в первое время не следует слишком сильно растапливать печь.
Процесс изготовления бани несложен, особенно если у вас имеются базовые строительные навыки. Перед началом работ хорошо продумайте каждый этап сооружения, заранее приобретите все необходимые материалы, а также запаситесь терпением. Построенная своими руками баня доставит массу удовольствия вам, а также всем членам вашей семьи.



































