Стандартные размеры
Стандартные размеры
Разберемся в стандартных размерах инсталляций для унитаза. Это модели предназначены для монтажа в помещении, где нет существенных пространственных ограничений.
Их ставят в просторных туалетных комнатах и в небольших санузлах. Большинство каркасов относится к этой группе. Кроме них существуют еще угловые вариации, которые ставят в пустых углах небольших помещений. Особенно хороши они для совмещенных санузлов.
Выпускаются компактные модели, отличающиеся небольшой высотой. Их монтируют под окнами, около невысоких перегородок, т.п. Линейные модули разработаны для подвесного оборудования, расположенного в ряд.
Например, около унитаза находится биде или писсуар. Есть еще двусторонние модели, которые предназначены для закрепления сантехники с двух сторон. Размеры вариаций отличаются от стандарта.
Ширина конструкции
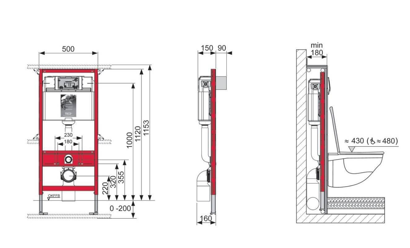
Ширина инсталляции для унитаза не зависит от ее типа. Рамные и блочные стандартные системы имеют одинаковые параметры 500-600 мм. Этого расстояния вполне достаточно для того, чтобы поместить внутрь каркаса смывной бачок.
Его габариты могут быть разными, но ширина не бывает больше 500 мм. Большая часть модулей, особенно блочных, выпускается с шириной 500 мм. Она подходит для сантехники любых габаритов.
Глубина

Глубина считается одной из самых важных и зависит от типа рамы. Так, блочные разновидности самые компактные. Их глубина колеблется от 100 до 150 мм. У рамных моделей это значение располагается в промежутке от 150 до 300 мм.
Таким образом, меньше места занимают навесные модули. Если в санузле несущая стена, выбирают блочную консоль. Так удастся выиграть порядка 15 см свободного пространства.
Глубина консоли определяет габариты и объем сливного бака, который располагается внутри рамы. В отличие от напольного аналога, у подвесной сантехники бачок плоский.
Его толщина — 90 мм, ширина — 500 м, высота — 550-600 мм. Такие габариты позволяют получить объем от 3 до 6 литров. Это немного меньше, чем стандартные характеристики от 6 до 9 литров.
При выборе надо понимать, что размеры инсталляционной системы влияют на объем бачка. Чтобы чаша оставалась чистой желательно, чтобы он был большим.
Высота
Еще одна важная характеристика — высота инсталляции для унитаза от пола. Рамные модели выше: от 1 020 до 1 400 мм. Навесные от 800 до 1 000 мм. Крепежи под шпильки, на которые крепится чаша, обычно располагаются на уровне 320 мм.
Это универсальная высота, удобная большинству людей. Но если нужно, ее изменяют при помощи регулируемых ножек. Канализационный патрубок крепится к чаше на уровне 220 мм от пола.
Расстояние между шпильками или, как его еще называют, межосевое, бывает 180 или 230 мм. Это стандартные величины, на которые рассчитаны большинство моделей подвесной сантехники.
Стандартные каркасы предназначены для закрепления трех типов чаш разных габаритов:
- Мини — до 540 мм длиной.
- Стандарт — 550-600 мм.
- Максимум — 700 мм.
Ширина всех разновидностей 300-400 мм, высота — 300-400 мм.
Какие выделяются стандартные размеры инсталляций под унитаз
Стандартными размерами встроенного унитаза считаются следующие:
- глубина – 50-60 см;
- ширина – 30-40 см;
- высота – 35-45см.
Перечисленные параметры, хоть и считаются стандартными, но все равно, в зависимости от модели, они могут меняться, потому как сейчас производят отдельно небольшие унитазы для детей и чаши увеличенных размеров, рассчитанные на людей, имеющих инвалидность, крупное телосложение или большой вес. Отдельно следует сказать и о дизайнерских моделях, выполненных под заказ, которые могут иметь совершенно другие параметры.
Свободное пространство между передним краем унитаза и стеной должно составлять 50–60 см
Сливные бачки для инсталляций отличаются от стандартных моделей не только материалом изготовления, но и размером. Обычно толщина подвесного пластикового бачка находится в пределах 9 см, ширина – 50 см, а по высоте встроенный бачок чаще всего немного больше стандартного керамического варианта и в этом случае составляет 55-60 см.
Стандартным размером бачка считается объем 6-9 л, но из-за уменьшенных габаритов подвесных конструкций объем варьируется от 3 до 5 л
При установке очень важно учитывать размер короба под инсталляцию унитаза, поэтому перед покупкой нужно тщательно изучить все чертежи, а также качественно провести замеры. В случае приобретения инсталляции, которая не будет соответствовать необходимым параметрам, придётся корректировать размеры подготовленной ниши
Размеры инсталляции для установки зависят от выбранного типа. Например, рамная конструкция характеризуется глубиной 15-30 см (чаще это 15 см), высота изменяется от 85 до 140 см, максимальная ширина – до 60 см. Следует отметить и другие параметры:
- Расстояние от напольного покрытия до центральной точки канализационной трубы составляет 220 мм.
- Отверстия для крепежа отдалены друг от друга на 18-23 см.
Сливные бачки для подвесных унитазов изготавливают из пластика при толщине 85-95 мм, ширине до 500 мм
Минимальные размеры инсталляции для унитаза блочного типа обычно не сильно отличаются от рамных конструкций: глубина в этом случае составляет 10-15 см, высота – 1 м
При этом важно отметить, что в некоторых ситуациях осуществляется раздельный монтаж скрытого бачка и унитаза, который можно повесить напрямую к стене
Статья по теме:
Если покупать полный комплект инсталляции, то все крепежи и инструкции будут прилагаться к товару. Как правило, к навесной конструкции, требующей крепления к капитальной стене, в комплекте идёт несколько анкерных болтов, каждый из которых рассчитан на нагрузку до 400 кг, поэтому нет смысла сомневаться в прочности установки. Однако специалисты рекомендуют покупать комплектующие детали и все элементы для крепления в одном месте. В этом случае можно будет сразу удостовериться, что все размеры соответствуют друг другу. Это позволит избежать неприятных сюрпризов в процессе монтажа.
При установке унитазов параметры ниш в ванной комнате должны подходить под их габариты по чертежу
Какой вариант подвесного унитаза с инсталляцией лучше выбрать: рекомендации по правильному выбору
Теперь определимся, как выбрать инсталляцию для подвесного унитаза
При этом важно учесть такие моменты:
- где будет установлена конструкция;
- заранее делается углубление в стене, также готовую конструкцию можно зашить гипсокартоном;
- нужен ли подвесной механизм или просто необходимо замаскировать бачок;
- подбор дополнительного материала для подвода коммуникаций;
- материал для клавиш.
Решая, какая инсталляция для унитаза лучше нужно учитывать, что кроме рамного и блочного вида есть и другие разновидности. Например, конструкции отличаются по методу крепления:
- настенная применяется чаще всего. При этом монтаж производится к стенке с помощью болтов и шпилек. Давление оказывается на перестенок;
- напольная применяется, когда перегородка сделана из гипсокартона. В этом случае опора направлена на пол, а нижняя часть конструкции усилена.
Конструкция для душевой
При выборе унитаза для инсталляции имеет значение и место монтажа. Угловой вариант имеет раму треугольной формы, что позволяет замаскировать все детали. Подходит для узких помещений. Двухсторонний вариант характеризуется расположением санузла с одной стороны, а раковины с другой. Существует и изделие в линию, когда на одной стенке располагается несколько устройств. В этом случае могут использоваться разные виды сантехники. Можно применить и низкий вариант с ограничением по высоте. В этом случае отдельные элементы размещаются под окном.
Эргономичный вариант для небольшого помещения
Важно подобрать правильную систему слива. Принудительная остановка выполняется, когда кнопка нажимается повторно
Двойная клавиша позволяет обеспечить разные варианты напора воды. Также при выборе подвесного унитаза можно остановиться на сенсорных моделях. Они срабатывают на движение руки.
Приобретая даже лучшие подвесные унитазы, обратите внимание на полную комплектацию гарнитура еще в магазине. Инсталляции могут продаваться, как в комплекте с чашей, так и отдельно
Лучше приобретать полный набор, так как при этом все размеры будут совпадать. Вместе с рамой должны присутствовать крепежи для подвески и арматура для монтажа труб. В некоторых наборах в базовой комплектации есть кнопка и бачок для слива. Экономный вариант предполагает два режима. При большой подаче поступает 7-9 литров, а при малой – 4 литра.
Удобные кнопки для подвесных моделей
Если чаша есть в наличии, то нужно проверить габариты рамной конструкции, а также промежутки между деталями крепежа
Важно, чтобы чашу можно было регулировать по высоте
Также стоит уделить внимание типу покраски. Замечательным решением является порошковая окраска, позволяющая создать жесткую пленку
Рамное устройство производится из металла большой толщины. Делая выбор лучших инсталляций для унитаза, уделите внимание прочности сварных швов и покраске.
Вариант установки конструкции можно посмотреть на видео:
Watch this video on YouTube
Как подобрать унитаз
Блочная инсталляция
На инсталляцию можно закрепить не только подвесной, но и напольный унитаз. Бачок будет скрыт в стене. Основные требования, предъявляемые к сантехническому прибору:
- прочность;
- комфортабельность;
- гигиеничность (легкость очищения, аккуратный смыв без брызг);
- сочетаемость с интерьером ванной комнаты по размеру и внешнему виду.
Различают два вида инсталляций:
- Блочные – представляют собой блок, который крепится к стене. Его нужно устанавливать в нишу. Он фиксируется анкерами и именно на эти крепления приходится основная нагрузка. Этот вариант оптимально подходит для монтажа напольного унитаза.
- Рамные – крепятся к полу и стене, имеют ножки. Основная нагрузка приходится на нижнюю часть конструкции. Ножки регулируются по длине, благодаря чему можно установить унитаз на нужную высоту.
Первый вариант инсталляций будет стоить дешевле, но он подходит только для капитальных стен. Второй тип конструкций прикрепляют не только к кирпичным и блочным стенам, но и встраивают в гипсокартонные перегородки. Для деревянных стен подходят низкие и широкие рамные инсталляции.
Виды инсталляционных систем
Существует несколько видов инсталляций, они различаются по конструкции и по размеру (в частности, глубиной и высотой). Чтобы правильно выбрать подходящую систему, рекомендуется изучить основные особенности разновидностей. Система инсталляции для подвесных унитазов бывает 3 видов:
- блочной;
- рамной;
- угловой.
Иногда инсталляция классифицируется по предназначению: бывают модели, подходящие конкретному виду сантехники, а также универсальные варианты. Также отдельно выделяют угловую инсталляцию для унитаза. Она используется не очень часто, однако незаменима, если в совмещенной ванной комнате минимум свободного пространства.
Блочные
Конструкция в подобных моделях состоит из 2 элементов: непосредственно унитаза и встроенного модуля. Унитазная чаша подвешивается при помощи специальных креплений либо монтируется на пол, а встроенный модуль устанавливается за фальшстену. Сливной бачок может быть подвешен, замурован за кирпичами и цементом либо скрыт за гипсокартонной или пластиковой перегородкой. Блочная инсталляция характеризуется такими особенностями:
- плоский сливной бачок, дополнительно укрепленный, имеющий малую толщину, но большую ширину и высоту;
- своеобразные элементы для крепления.
Блочная инсталляция отличается небольшой глубиной и обладает низкой стоимостью, по сравнению с рамной системой. Монтаж производится на капитальную стену. При выборе стандартной (не подвесной) модели сантехники единственное отличие от обыкновенной системы будет состоять только в скрытии сливного бачка.
Из-за того, что инсталляцию практически полностью встраивают в стену, лучше всего, если в ней будет предварительно обустроена небольшая ниша. Подобную разновидность выбирают при ограниченном бюджете либо в случае, когда требуется обеспечить свободный доступ к системе.
Главный недостаток – монтаж инсталляции унитаза может осуществляться только при наличии капитальной стены
Если она отсутствует, лучше обратить внимание на другой вид системы, т.к. под весом сидящего человека тонкая перегородка сломается
Рамные
Основанием системы является прочная рама, изготовленная из стали, которая покрыта антикоррозийным раствором. Для обеспечения повышенной прочности инсталляции в некоторых случаях компоненты соединяются методом сварки. Именно стальная рама принимает на себя всю нагрузку: вес элементов, массу тела сидящего человека и воды.
Главным преимуществом инсталляции для унитаза этого вида является возможность монтажа в любом месте санузла, куда можно подвести канализационный трубопровод и трубу водоснабжения. Рамные системы различаются между собой по предназначению. Есть варианты, подходящие только для биде либо унитаза, а также есть модели, которые устанавливаются с разными типами сантехнических приборов.
Инсталляции подобного типа являются свободно стоящими, они не закрепляются на стену, а весь вес передается на прочные укрепленные ножки. Поэтому, в отличие от блочной, такую систему можно устанавливать даже на не слишком толстую перегородку, сделанную из гипсокартона.
Различают несколько видов креплений:
- крепеж к стене на 4 точках;
- крепеж к полу, такая конструкция имеет дополнительные опоры;
- крепеж на 2 точках к полу и на 2 точках к стене.
Угловые
Угловые инсталляционные системы для унитаза устанавливаются в ситуациях, когда свободное пространство туалета ограничено, зато есть возможность установки сантехники в угол. Как правило, подобные модели фиксируются на стенах. Они также позволяют создать единый дизайн интерьера санузла и сделать помещение больше, однако их монтаж будет стоить несколько дороже.
Главные преимущества:
- компактный размер, позволяющий устанавливать модели даже в самые маленькие комнаты;
- визуальное увеличение пространства за счет того, что центр туалета не загроможден сантехникой;
- можно поместить унитаз в комплекте с раковиной либо биде;
- существует 40 мм пространства, в пределах которого можно регулировать высоту изделия;
- унитазные чаши, как правило, обладают повышенной прочностью и износостойкостью, даже при больших нагрузках не появляются трещины и прочие повреждения. Несмотря на их внешнюю хрупкость, инсталляция способна выдерживать до 500 кг массы.
Смотреть видео
К особенностям угловой разновидности можно отнести необходимость произведения монтажа только в совмещенных санузлах. При установке в стандартные комнаты с большим количеством свободного пространства подобная модель будет визуально уменьшать помещение.
Выбор сантехники с учетом высоты унитаза: 4 особенности
Параметры выбора: высота и ширина инсталляции для унитаза
Большинство людей основывают свой выбор сантехники на качестве и долговечности оборудования. Размеры для них не важны. Но если размеры не подходят, туалет становится неудобным или даже опасным.
Характеристики выбора по размеру :
- От входной двери и стен комнаты должно быть небольшое расстояние, чтобы не возникало проблем с передвижением.
- Для комфортности перед сантехническим прибором должен быть интервал в 60 см. Это поможет удобно расположиться.
- Высота унитаза должна подходить для каждого члена семьи. Это актуально для семьи с детками. Ноги должны стойко касаться пола. При этом чувства неудобства не должно появляться.
- Ширина оборудования не должна также вызывать дискомфорт. Узкое сидение будет врезаться в бедра, от чего появятся болезненные ощущения и неэстетические красные полосы. Слишком широкое сидение вызовет онемение нижних конечностей.
Поэтому важно ознакомиться со всеми нормами и правилами, чтобы потом не возникло никаких неудобств. Люди ходят в туалет каждый день, это естественный процесс
Каждый человек несет ответственность за то, чтобы обеспечить себе комфортные и адекватные санитарные условия.
Ширина оголовья индивидуальна для каждого человека. Например, более широкое сиденье подходит для высоких людей, а стройным людям лучше выбирать модели с меньшим подголовником.
В небольших туалетах или ванных комнатах лучше всего использовать компактную модель любого типа. Если места достаточно, можно выбрать полный комплект, состоящий из самого унитаза и биде. В то же время эксперты советуют при выборе сантехнического оборудования ориентироваться на рост самого высокого члена семьи.
Виды инсталляции для унитаза: стандартные размеры разных типов
Туалетные чаши имеют свою собственную классификацию. Она может определяться типом установки сантехнического оборудования или его назначением. Установка различных типов немного отличается друг от друга. Стандартные унитазы должны соответствовать определенным размерам.
Подвесные модели с каждым годом становятся все более популярными. Они экономят пространство, прикрепляя резервуар к стене. Устройство может быть установлено на раме или на блоке. В первом случае он монтируется на гипсокартонную стену. Блочная версия устанавливается на кирпичной стене.
Особенно хороши подвесные унитазы от немецких производителей. Им оказалась компания Grohe.
По своим размерам конструкция аналогична подвесному напольному унитазу. Вес сантехнического оборудования составляет 25-27 кг и зависит от материала конструкции.
- Длина – 50-60 см, в исключительных случаях 70 см;
- Ширина – 30-40 см;
- Высота от пола до чаши – 50-60 см.
Напольный туалет состоит из устойчивой основы, которая крепится к полу, умывальника и смыва. Резервуар крепится к стене или на специальной полке. Установить такую модель несложно. Но уход за таким унитазом требует большего внимания. Вес сантехнического оборудования также зависит от материала. В среднем вес составляет 30 кг.
Размеры конструкции пола :
- Ширина – не больше 38 см;
- Длина – 67.5 см;
- Высота от пола включительно с бачком – 80 см;
- Высота от пола до чаши – 40 см.
ZFS или Btrfs?
Тенденции последних лет ведут к тому, что операционная система сама создает дисковый массив на уровне файловой системы. Лучший тому пример — ZFS, файловая система, имеющая функции дедупликации и сжатия данных на лету. Для её работы крайне желательно, чтобы ядро операционки имело прямой доступ к каждому диску для контроля состояния сбойных блоков, мониторинга S.M.A.R.T. и реализации всех своих функций масштабирования и отказоустойчивости
Фактически, в таком режиме контроллер работает просто как интерфейс SAS/SATA, поэтому не важно какие функции на нем есть, есть ли на нем кэш или какие-либо другие «фишки» — все что надо, сделает операционная система
В то же время, ZFS не является 100%-отказоустойчивым решением, и целая армия поклонников аппаратного RAID считают, что лучше использовать более простые нересурсоемкие файловые системы, такие как Btrfs или EXT4, а работу с дисками доверить полноценному RAID-контроллеру. Такое решение имеет один существенный минус — не каждая операционная система позволит мониторить параметры дисков в RAID массиве и уж тем более предупреждать о сбойном жестком диске.
Файловая система ZFS по умолчанию используется в операционной системе FreeNAS, а так же в гипервизоре Proxmox, и для этих случаев нужен HBA-контроллер с режимом прямого доступа к дискам. Аппаратный же RAID можно использовать для NAS-оболочки Openmediavault или для гипервизора VMware ESXi.
Итого: выбираем RAID контроллер для OpenMediaVault или HBA для FreeNAS.
Разновидности конструкций
Сантехнические инсталляции имеют различные особенности, подходящие для условий монтажа или делающие оборудование неприменимым.
По типу оборудования
Конструкции имеют отличия по месту и типу монтажа:
- Стандартная — не ограничена габаритами помещения. Устанавливается у центральной или боковой стены любой площади. Размер инсталляции: 1,1 м в высоту, 10-15 см в глубину и 50 см в ширину.
- Линейный монтаж применяется для размещения нескольких видов оборудования санузла: унитаза, раковины и биде. Часто устанавливается в туалетах общественного пользования.
- Низкая конструкция с ограничением по высоте до 80-100 см применяется, если сантехника размещается в нише или под окном.
- Двусторонняя — предполагает установку в фальшивой перегородке, вода подводится с двух сторон.
- Угловая конструкция — подходящий вариант экономии пространства. Рама устанавливается с помощью модулей крепления.
Правила установки
При выполнении качественной установки инсталляции на стену либо напольное покрытие придется подчиниться требованиям.
К ним относятся определение области производства монтажа, а также места укрепления напольных рамок.
- После этого необходимо закрепить устройство.
- Затем производят фиксацию на стене.
- Следующая операция – монтаж самого унитаза.
- Затем выполняют проверку по уровню установки.
- Последней операцией будет закрепление крышки стульчака.
Возможна ситуация, что не совсем ясно предназначение крепежных деталей
На это нужно обращать особое внимание. При установке следите за расположением монтажных крепежных лапок
При монтаже на внутреннем простенке это существенно. При неверном размещении лапок нагрузка распределяется неравномерно.
Это послужит в дальнейшем причиной деформации простенка, на который был смонтирован унитаз. Регулировать раму необходимо, пока нужную высоту не удастся зафиксировать. Отделку надо начинать только после завершения монтажа. Чашу унитаза крепят к готовой стене.
Плюсы и минусы напольных унитазов с бачком
|
|
Выгодные предложения на напольные унитазы:
При выборе унитаз или инсталляция для санузла, первому варианту отдает предпочтение 75% пользователей. Основными преимуществами сантехнических приборов «компакт», опирающихся на пол, являются:
- бачок идет в комплекте с унитазом, на бортике чаши имеется специальное посадочное место для него;
- смывной бак установлен открытым способом, на любом этапе эксплуатации обеспечивается доступ к арматуре внутри бачка;
- монтаж сантехнического прибора предельно простой, производители выпускают гофрированную трубу разной длины, отводы 90° и 120° диаметром 110 мм;
- сохраняется возможность регулировки в широком диапазоне, сантехнику можно смещать на 2 – 15 см к любой боковой стене во время монтажа;
- обеспечивается доступ к инженерным системам позади унитаза (стояки, запорная арматура, трубы, счетчики воды, «гребенка» теплого пола» без демонтажа этого сантехнического прибора;
- во время косметического, капитального ремонта унитаз можно не снимать, он не мешает изготовлению фальшпанелей, коробов, облицовке стен, пола.
Подвесные модели чаще всего имеют горизонтальный выпуск, у напольных унитазов добавляется косой и вертикальный выпуск для гарантированного лучшего смыва меньшим количеством воды.
За счет более крупного размера чаши сантехники гидрозатвор напольных моделей более качественный, чем в подвесных вариантах исполнения.
Для монтажа сантехники в угол выбирать напольный вариант исполнения сантехнического изделия значительно проще, так как ассортимент гораздо шире.
Помимо плюсов обычный напольный сантехнический прибор имеет и недостатки:
- увеличенные размеры – 60 – 68 см в длину вместо 35 – 46 см у подвесных унитазов, так как здесь необходима полка для размещения смывного бачка, длина угловых модификаций достигает 72 – 79 см;
- высокое качество опорной поверхности – в месте установки сантехники стяжка или напольное покрытие должно быть идеально ровным и прочным, иначе сантехника может лопнуть;
- наличие «мертвой зоны» – между опорной частью сантехники (пьедестал) и стеной имеется пространство, в котором скапливается грязь;
- низкая декоративная ценность – выходной патрубок смыва подключен открытым способом.
В сравнении с пластиковыми моделями инсталляций керамический бачок всегда имеет более крупные размеры.
Немного личных впечатлений
У нас нет самого главного – нет жестких дисков, чтобы произвести полноценное сравнение аппаратного RAID и программного ZFS. Но удержаться от первых тестов невозможно, и в систему был установлен древний WD Velociraptor на 150 Гб, который был протестирован в сборке с HP P410 / Openmediavault / EXT4 и LSI 9240-8i / FreeNAS / ZFS, а заодно я сравнил его с домашней хранилкой Synology DS1511+, где установлено 5 HDD на 7200 RPM 1 Tb.
Вообще, простое копирование 50-гигабайтной директории с играми с HDD на NAS в случае с сетапом OMV дает постоянные 112 Мб/с, на Synology прыгает от 110 до 80 Мб/с, на сетапе FreeNAS прыгает от 90 до 2 Мб/с. Но полноценное тестирование можно будет провести когда в NAS будут установлены нормальные жесткие диски.




































