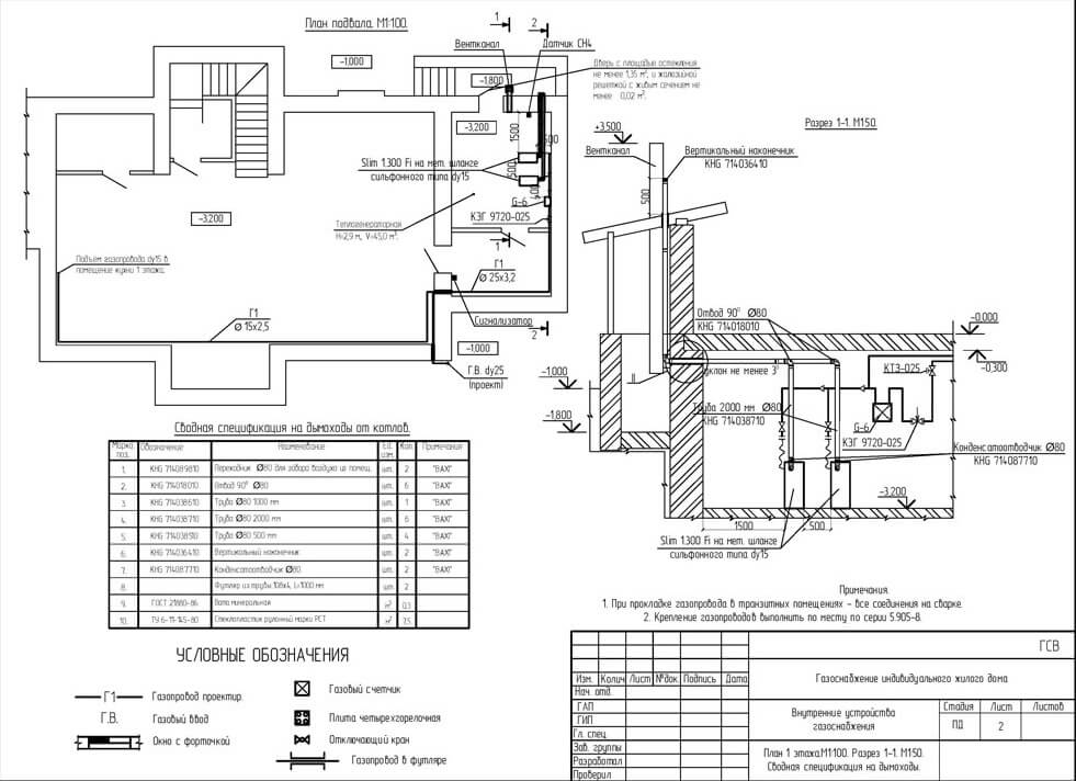
Вентиляция
По проекту нам требовалось два вентиляционных канала — в кухню и в котельную. Чтобы правильно их обустроить, нужно было опять обращаться к специалистам. Стоимость работ — 8000 Р за каждый вентиляционный канал.
Но здесь мы твердо решили сэкономить: заплатили инженеру, который подключал нам котел, 300 Р за консультацию. Он подробно объяснил, как сделать каналы самостоятельно. Мы потратили 2000 Р на пластиковые трубы и фурнитуру к ним и сделали сами две вентиляционных трубы.
Теперь требовалось получить акты, что вентиляция и котел исправны и установлены правильно. Эти акты нам выдал тот же самый инженер, который вешал котел и консультировал по вентиляции — у него была для этого соответствующая лицензия. Каждый акт стоил 1000 Р.
Всего на это потратили 4300 Р.
В кухне мы запланировали принудительную вытяжку, а для нее нужен отдельный второй вентиляционный канал. А то бы мы обошлись и одним
Вот такие акты выдает инженер с образованием пожарного — в них написано, что у нас правильно работает дымоход и вентиляция
Что нужно для газификации дома
Для газификации нужно собрать пакет документов и подать в газовую компанию для заключения договора.
Документы на собственность и землю. Для подключения к газу частный дом и участок, на котором он расположен, должны быть зарегистрированы в Росреестре. Если недвижимость находится в ипотеке, может потребоваться согласие банка-залогодержателя.
Кроме документов на собственность к заявлению нужно приложить:
- Ситуационный план — схему участка с домом и прилегающей территорией. Ситуационный план можно нарисовать самостоятельно или просто сделать скриншот своего участка на публичной кадастровой карте. Также ГРО часто принимают скриншоты Яндекс- или Гугл-карт.
- Если дом находится в долевой или совместной собственности, потребуется письменное согласие всех собственников на газификацию. Например, если домом совместно владеют муж и жена, а заявку в ГРО подает муж, то он должен предоставить согласие супруги на подведение газа. Согласие пишут в свободной форме на имя руководителя ГРО, которая будет проводить газ.
- Топографическую карту участка, если вы ее уже сделали.
- Проект и расчет МЧРГ (если планируемый расход более 5 м³/час).
Топографическую карту можно заказать заранее. Тогда при подаче заявки на подключение ее можно приложить сразу и сэкономить на этом деньги. Контакты фирмы, которая мне сделала топографическую съемку, я взял у соседа. Съемка стоила 8000 Р.
Полный перечень документов, чтобы получить технические условия и заключить договор,
Мой ситуационный план. Рисовать лучше на компьютере. Красная линия — границы участка, зеленая — капитальные строения, например дом, баня или гараж, оранжевая — существующие и проектируемые коммуникации, желтая — газопровод под землей, а синяя — по цоколю дома
Технические условия — основной документ для газификации. Технические условия всегда выдает газораспределительная организация, даже если для подключения обращаетесь в частную компанию. Их прикладывают к договору на подключение.
Можно подать заявку, чтобы получить технические условия, но не подключать газ сразу. Обычно так проверяют возможности газификации. Это сложный вариант, проще позвонить на горячую линию или посетить офис и по кадастровому номеру участка или адресу дома проверить возможность газификации. Если цель — подключить дом к газу, подавайте заявку на подключение.
Все технические условия — установка газового оборудования с соблюдением норм безопасности — обязательны к выполнению. Когда технические условия получены, нужно заключить договор о подключении и выполнить технические условия: установить все необходимое оборудование в соответствии с проектом.
Такие технические условия я получил при заключении договора подключения
Оборудование обычно устанавливают в специальном помещении дома — котельной. Лучше заранее купить оборудование и подключить его к системе отопления дома — так газификация пройдет быстрее. Потребуется котел, счетчик, датчики газа и обустройство вентиляции в котельной. Точный перечень оборудования и требования к установке будут указаны в проекте.
Газораспределительные организации продают газовое оборудование и могут все установить и смонтировать на месте. Установить оборудование могут частные компании или даже фрилансеры с «Авито», но принимать работу перед пуском газа будут сотрудники газораспределительной организации. Если у вас нет знакомых монтажников, которым доверяете, или не хотите их искать, можно заказать все под ключ в ГРО.
Так выглядела моя котельная в момент установки газового котла и датчиков загазованности
Порядок получения разрешения на газ
Получить ТУ можно у местных представителей газораспределяющих организаций – в облгазе, горгазе. Для этого владелец здания должен предоставить заявку о подключении конкретного строения, которая, в свою очередь, в течение двух недель должна быть рассмотрена руководством предприятия, занимающегося поставками газа. В течение этого срока будет или выдан аргументированный отказ о невозможности выдачи техусловий, или оформлен необходимый пакет документов, обеспечивающих технические условия на осуществление газификации.
Как рассчитать потребность в природном газе
Если речь идёт о подключении частного дома к сети газоснабжения, к тому же относительно небольшого размера, то прилагать расчёт необходимости нет, так как очень маловероятно, что владельцы превысят максимальный часовой расход в 5 м3.
При ориентировочных количествах затрат более этого значения для жилого дома обращаются за помощью в расчёте к сертифицированным организациям, предоставляющим услуги по снабжению населения газом.
Они, пользуясь технической информацией об объекте капитального строительства, знанием климатических условий, о количестве проживающих и использующейся потребляющей техники, составят подтверждённый проект расхода газа. Для юридических лиц подобную работу могут выполнить собственные работники отдела ПТО.
Проектирование системы газоснабжения
После того, как получены технические условия, наступает время подготовки проекта газификации и присоединения к сетям газораспределения, в соответствии с которым и будет производиться монтаж труб с присоединением их к потребителю. Выполняется он специалистами, работающими в местных отделениях горгаза или облгаза. Можно найти и сторонних, но нужно обязательно уточнить у них наличие лицензии на подобные виды работ.

Документы для получения ТУ на газ
К подаваемой заявке на получение техусловий на подключение газа нужно приложить:
- Список всего будущего используемого газового оборудования, с приложением технических паспортов от него с копиями.
- Информацию об объеме воздушной среды строения и общих размерах здания.
- Расчёт максимальной потребности поставляемого газа. Если суммарное потребление не превышает 5 м3/ч, как например, для частных домовладений – предоставление этой информации зачастую не обязательно.
- Паспорт владельца собственности с его ксерокопией.
- ИНН с ксерокопией.
- Документы, подтверждающие право владения. К ним относятся — сертификат на право собственности, паспорт БТИ, прочие, подтверждающие факт владения земельным участком и домом, документы.
- Акты, подписанные инспекторами пожарной, ЖКХ или МЧС службы о соответствии дымоходов для подключения газа.
- Местонахождение потребляющего объекта с указанием его на карте и по адресу. Эту информацию можно получить в органах БТИ или администрации населённого пункта. Если заявку на подключение оформляет юридическое лицо, то дополнительно к вышеназванным документам прилагается, для получения технических условий на газоснабжение:
- свидетельство о регистрации фирмы в органах налогового учёта;
- устав предприятия, вместе со всеми необходимыми копиями документов о назначении руководителя, имеющего право подписи;
- доверенность на лицо, которое будет представлять интересы организации;
- при отсутствии магистральной сети рядом с объектом капитального строительства – подписанный специалистом администрации населённого пункта план местности. Делается это для проектирования постройки нового трубопровода работниками газовой службы;
- расчёт потребления, выполненный работниками проектного отдела.

Если объект ещё находится в процессе строительства:
- Смету с расчётами теплотехники здания.
- Разрешение органов местной администрации на его ведение.
Сроки получения техусловий на газ и подключения
Заявление, после его подачи, согласно постановлению Правительства РФ, введённому в действие с 29 ноября, должно быть рассмотрено в течение 14 рабочих дней со дня его поступления руководством местных газораспределительных филиалов.
В течение этого срока должно быть принято решение о возможности или невозможности получения техусловий на газ. В случае отказа должен быть составлен аргументированный официальный ответ с перечнем причин, не допускающих выдачу техусловий для подключения конкретного объекта к сетям снабжения газом.
Дополнительные расходы
Последний этап, который мне предстоял в июле 2019 года, — пустить газ в дом. Это делается после того, как владелец оплатит все квитанции и заключит все договоры. Я оставила заявление на подключение в «Рыбинскгазвервисе». Через две недели мне позвонил мастер.
Все работы заняли не больше часа. Оказалось, что мастер только соединяет общую газовую трубу с нашей. Эти наружные работы входят в сумму, которую я уже заплатила этой организации. Внутренние работы — подключить котел и проверить работу оборудования с подключенным газом — проводит другой отдел и другой человек. Это тоже стоит денег — 4100 Р.
Заявку на подключение я оставила по телефону сразу после того, как газ подключили снаружи. В течение недели газ подключили и внутри.
Наконец, спустя год, в августе 2019 года в нашем доме появился газ, и я смогла убрать надоевшую электроплитку. К тому же окончательно испортилась погода, и газовое отопление оказалось как нельзя кстати.
Но расходы еще не закончились.
Когда газ подключили, нужно позвонить в «Межрегионгаз» и вызвать сотрудника, чтобы он опломбировал счетчик. Если это не сделать — показания считаются недействительными и ежемесячную плату рассчитывают по общему нормативу.
Я забыла опломбировать счетчик и получила счет по нормативам на каждого прописанного — 4000 Р вместо 1000 Р. К счастью, когда пломбу установили, сумму обещали пересчитать по показаниям счетчика.
Газ в нашем доме подключен, но это не конец. Теперь нам предстоит потратить еще 20 000 Р, чтобы смонтировать и подключить оставшиеся радиаторы и окончательно подготовиться к зиме.
Спустя год я наконец-то смогла вскипятить чайник на газовой плите
Как ни удивительно, услуга опломбирования счетчика бесплатная. После всех расходов мне в это уже не верилось
Потратила на повторное подключение газа 181 600 Р
| Газовый котел с дымоходом | 37 000 Р |
| Внутренние работы по присоединению к газопроводу | 37 000 Р |
| Работы по проведению электричества | 20 000 Р |
| Подключение радиаторов (вместе со стоимостью материалов) | 19 000 Р |
| Техусловия | 13 700 Р |
| Наружное присоединение | 13 700 Р |
| Варочная панель и столешница | 12 000 Р |
| Проект | 6000 Р |
| Долг за газ | 4700 Р |
| Внутреннее подключение | 4100 Р |
| Установка котла | 3500 Р |
| Вентиляция и котел — акты | 2000 Р |
| Вентиляция: трубы и фурнитура | 2000 Р |
| Акты на заземление и исправность проводки | 2000 Р |
| Долг за техобслуживание | 1800 Р |
| Отключить газ | 1500 Р |
| Договор на обслуживание | 1300 Р |
| Консультация по вентиляции | 300 Р |
Газовый котел с дымоходом
37 000 Р
Внутренние работы по присоединению к газопроводу
37 000 Р
Работы по проведению электричества
20 000 Р
Подключение радиаторов (вместе со стоимостью материалов)
19 000 Р
Техусловия
13 700 Р
Наружное присоединение
13 700 Р
Варочная панель и столешница
12 000 Р
Проект
6000 Р
Долг за газ
4700 Р
Внутреннее подключение
4100 Р
Установка котла
3500 Р
Вентиляция и котел — акты
2000 Р
Вентиляция: трубы и фурнитура
2000 Р
Акты на заземление и исправность проводки
2000 Р
Долг за техобслуживание
1800 Р
Отключить газ
1500 Р
Договор на обслуживание
1300 Р
Консультация по вентиляции
300 Р
Как подать заявку
Заявку на подключение удобнее всего подать через сайт единого оператора газификации. Там же можно проверить, подходит ли ваш участок для программы. Заявку также можно подать через сайт «Госуслуги», но есть существенный минус — заявление примут на рассмотрение вне зависимости от того, подходит ваш участок для соцгазификации или нет.
Заявление рассматривают быстро — до одной-двух недель. Далее вас пригласят на заключение договора. К нему прилагается план-график работ, в котором будут указаны сроки подключения вашего дома. Как правило, он совпадает с общим планом-графиком по вашему населенному пункту, поэтому ознакомиться с ним можно на сайте единого оператора на интерактивной карте.
Если населенный пункт не включен в утвержденный план-график, срок подключения определяется в договоре на основании поданной заявки следующим образом:
- 30 дней, если не нужно строить газораспределительную сеть до границы земельного участка, на котором расположен дом;
- 100 дней, если для присоединения необходимо построить сеть протяженностью до 30 метров;
- 365 дней, если для присоединения необходимо построить сеть протяженностью от 30 метров.
Это идеальные сроки. На деле газовики не успевают по плану-графику, поэтому откладывают заявки на срок от 50 до 200 дней и пересматривают договоры.
Плита
Очередной сюрприз — внезапно выяснилось, что нам нужно заменить газовую плиту. Старая досталась нам от предыдущих хозяев, ей было не меньше 15 лет. По правилам газовая плита должна быть не старше 10 лет и обязательно иметь документы, где указан срок эксплуатации. У нас таких документов не было. Без них плиту нам бы не подключили.
Чтобы купить новую плиту, потребовался месяц. Сначала я заказала понравившуюся модель через интернет, но продавец ее не привез. Через три недели я оформила возврат и пошла покупать плиту в ближайший магазин.
Это решало еще одну проблему — газовики рекомендовали не использовать дачный вариант плиты, которая стоит на столе на ножках, — плита обязательно должна быть зафиксирована, это более безопасный вариант. Варочную панель можно встроить в столешницу или в любой кухонный шкаф, причем сделать это самостоятельно.
На варочную панель газовой плиты и столешницу я потратила 12 000 Р.
Мы самостоятельно установили столешницу за 3000 Р и смонтировали газовую панель — заказать те же работы у мастера стоило бы 5000 Р
Институт оператора газификации
Это новый институт в сфере газоснабжения. Единый оператор, им является “Газпром” вместе с дочерними компаниями, отвечает за техническую часть реализации программы. Он является собственником Единой системы газоснабжения.
Там, где “Газпром” не присутствует, определяют регионального оператора, который будет заниматься подведением газа в конкретном регионе. Это обычно самая крупная в регионе организация, не являющаяся единым оператором.
Что касается конкретных положений подведения газа, закон о бесплатной газификации населения их не содержит. Соответствующие нормативно-правовых документы еще предстоит разработать Правительству РФ. Однако уже можно определить общие принципы работы на основе действующих программ.
Когда проект газификации готов
Обязательным условием перехода от проектного этапа к строительно-монтажным работам является согласование проекта с техотделом газовой службы. Обычно эта процедура выполняется в течение 2 недель.
Выбор подрядчика и заключение договора
После согласования к проекту должны быть приложены:
- смета на выполнение работ, предусмотренных проектом;
- договор о техническом надзоре;
- акт об обследования каналов дымовой вентиляции, составленный и подписанный представителем службы ВДПО.
Когда весь перечень необходимых документов на руках, можно переходить к обустройству. Как правило, любая проектная организация располагает лицензией на строительно-монтажные работы. Если такая лицензия отсутствует, придется озаботиться поиском подрядчика.
Поскольку именно монтажная организация будет нести ответственность за строительство и сдачу газопровода желательно:
- проверить лицензию на проведение газификации;
- посмотреть прочие разрешительные документы;
- убедиться в наличии соответствующих допусков у сотрудников.
Перед заключением договора нужно согласовать и утвердить сроки монтажа, которые следует зафиксировать в договоре.
При выполнении монтажа под рукой должны быть средства пожаротушения, предназначенные для пожаров класса «С» (горение газов)
В соглашении на выполнение работ, кроме прочих обязательств, обязательно должны быть зафиксированы следующие условия:
- наличие у сотрудников организации, работающих на объекте, защитного экрана, оберегающего стены от нагрева, и всех необходимых средств пожаротушения;
- выдача заказчику на руки исполнительно технических документов сразу после выполнения расчетов по предусмотренным в проекте работам;
- обязательство исполнителя выполнить монтаж в оговоренные сроки, в соответствии с установленными нормами и необходимым уровнем качества;
- обязанность подрядчика своевременно составлять всю предусмотренную исполнительно-техническую документацию.
Исполнитель должен предоставить заказчику, указанные документы, после выполнения монтажных работ, до посещения комиссией по приему-сдаче объекта.
Сдача газопровода в эксплуатацию
Сдача готового газопровода осуществляется в присутствии комиссии, в которую входят представители подрядчика, газовой службы и сам заказчик. В процессе приемки необходимо проверить наличие всего оборудования, предусмотренного проектом, правильность его установки и подключения.
Комиссия принимает работы от 2 недель до месяца. Если недостатков не выявлено представитель газовой службы выдает квитанцию на оплату, которую заказчик оплачивает, а копию документа передает подрядчику.
После приемки готового газопровода счетчик системы обязательно пломбируется в присутствии заказчика
Исполнитель передает в газовую службу всю техническую документацию, где она хранится весь период эксплуатации. По результатам работы комиссии в течение 3 недель газовая служба должна опломбировать счетчик, после чего система считается готовой к подаче газа.
Соглашение с Горгазом регламентирует обслуживание системы, за которое будет отвечать эта служба. Оно и является основанием для подачи газа.
Помимо заключения договора, потребуется пройти инструктаж по технике безопасности. Он проводится в офисе компании либо по месту жительства специалистом с соответствующим допуском. В любом случае после инструктажа заказчик должен подтвердить пройденный инструктаж подписью в журнале учета.
Запуск и наладка системы
Врезку осуществляет соответствующая служба, процедура является платной, проводится в заранее оговоренные сроки, когда все оборудование прошло приемку и признано функциональным.
Врезка в главную трубу под давлением должна выполняться специалистами с использованием соответствующего оборудования
После этого проводится испытательный запуск, проверка приборного оборудования и счетчика на наличие утечек. Окончательную отладку оборудования и запуск проводит организация-поставщик оборудования, с которой имеется соглашение по обслуживанию:
- выполняется запуск системы;
- проводится ее настройка на оптимальный режим функционирования;
- представитель компании обязан пояснить все нюансы работы оборудования, правила его эксплуатации.
В случаях, когда замечены сбои в работе и другие неполадки, запуск приостанавливается до их устранения.
Если все в порядке и запуск прошел успешно, подписывается двусторонний акт, подтверждающий выполнение работы.
Этапы газификации жилого дома
Для начала процесса потребуется приложить усилия, первым делом уточняется информация о юрисдикции существующей магистрали. После чего оформляется технический план на дом, затем будущему потребителю нужно составить проект.
Последним этапом будут непосредственные строительные работы, прокладка системы снабжения производится специалистами, которые имеют лицензию на реализацию подготовленного топоплана участка.
Получение технических условий на газоснабжение
Подобные данные могут выдаваться отдельным документом, но в некоторых ситуациях он является приложением к договору. Разработкой занимается ГРО, после подачи необходимых документов учитываются такие факторы как:
- Нагрузка при расходе в час.
- Срок подключения.
- Срок действия ТУ, не более 70 дней.
Если по истечении отведенного времени не получилось оформить договор, то процедуру следует проделать заново.
Проект газификации частного дома под ключ
Документ создается еще до начала всех работ, без него приступать к реализации нельзя, это обусловлено потенциальной опасностью, которая предполагает соблюдение новых правил. Специалисты этой отрасли знают все тонкости манипуляций и неукоснительно их выполняют. Соответствие проекта с нормами потребует проверки, в некоторых случаях может производиться доработка.

Стоимость проекта газификации
В этом вопросе главную роль играет сложность работы и проведение по всем правилам системы снабжения. Специалисты могут индивидуально оценить конечную сумму, подобные моменты стоит уточнять при личной встрече. Зачастую плата за услугу в среднем обходится 1000 рублей за погонный метр, но это только приблизительные данные.
Покупка газового оборудования
Закупать приспособления необходимо предварительно, без их технических характеристик невозможно просчитать стоимость газификации и составить смету. Но прежде чем посетить магазин не будет лишним подумать над мощностью и производительностью каждого элемента, который будет устанавливаться в помещениях.
Расставлять агрегаты необходимо в соответствии с составленным проектом, этому нюансу нужно уделить особое внимание. Цены на продукцию такого плана отличаются, все зависит от комплектации и производителя
Монтаж газопровода
После подведения трубы от центральной магистрали хозяин может оплатить непосредственное подключение по земельному участку, на котором расположена постройка. Сотрудники ГРО сделают такую работу гораздо быстрее, для этого составляется определенный договор.

В большинстве ситуаций искать частные фирмы будет невыгодно, их в большинстве районов немного, а заказ может обрабатываться определение время. Просчет материалов и другие мелкие моменты ложатся на специалистов, работать с ними получится достаточно продуктивно, тарифы зачастую можно узнать заранее.
Приемка работ
Если сторонняя организация будет заниматься этим вопросом, пуск газа производят только профессионалы ГРО, именно поэтому люди отдают предпочтение работать напрямую с организацией. Контроль хозяина также не будет лишним, ведь за небольшие оплошности мастеров без должного опыта отвечать ему.
Заключение договора с межрегионгазом на подачу газа
Подобные документы касаются обеспечения бытовых нужд абонента по поставке голубого топлива, с целью урегулирования отношений сторон. Прежде чем договор вступит в силу, необходимо предоставить перечень документов с соблюдением всех рекомендаций.
Ознакомившись с условиями, каждый потребитель может задать интересующие вопросы, после чего начнется беспрерывная поставка газа в постройку.
Подобные мероприятия предполагают присутствие хозяина постройки или доверенного лица, прежде чем приедут специалисты потребуется получить разрешение на ввод системы в эксплуатацию. Письменное заявление можно подать в ГРО, но для этого потребуется собрать определенный пакет документов.





































