Материалы для строительства гаражей
Выбор материалов для возведения гаража достаточно велик. Каждый из материалов имеет свои физические характеристики и перед началом постройки рекомендуется коротко их изучить. Если вы уже знаете, какие функции должен выполнять гараж и каким требованиям соответствовать, то выбрать нужный материал не составит труда.
Сегодня для постройки можно использовать:
- Металл;
- Бетонные конструкции;
- Любые виды кирпича;
- Шлакоблоки;
- Пеноблоки;
- Древесину.
От выбора типа материала зависит и цена постройки. Далее мы разберём,какими характеристиками будет обладать помещение гаража при использовании каждого из перечисленных материалов.
Гараж из металла
Пример сборного металлического гаража
Металлический гараж можно назвать самым экономным и быстрым вариантом постройки, но, к сожалению, не долговечным.
Из преимуществ такой постройки можно отметить:
- Высокую скорость сборки;
- Нет надобности в обустройстве массивного фундамента, поскольку для такой лёгкой конструкции достаточно залить армированную стяжку с толщиной 20-25 см.
- Возможность приобрести уже готовый комплект, в котором имеется инструкция по сборке помещения из уже готовых деталей.
Выбирая из чего дешевле строить гараж, металл будет самым подходящим вариантом, однако, он имеет и свои существенные недостатки. Поскольку металл имеет высокую теплопроводность, в зимнее время помещение будет сильно промерзать, а в летнее время сильно нагреваться.
Для того, чтобы этого избежать, необходимо вкладывать дополнительные средства в утепление корпуса гаража (см. Гараж металлический: как утеплить и чем). Такие строения подвержены коррозии и зачастую имеют компактные размеры, не позволяющие обустроить дополнительное пространство для склада.
Порядок строительства
Обустройство фундамента представляет собой первый шаг в процессе строительства гаража из газобетона своими руками.
Для определения типа фундамента для гаража из газобетона, необходимо учесть следующие параметры:
- Уровень залегания грунтовых вод. Если он находится ниже двух метров, грунт отличается однородностью и плотностью, то в этом случае подойдет легкий ленточный фундамент с глубиной не более полуметра.
- Фундамент из монолитной плиты понадобится, если грунт пучинистый, поскольку газобетонные блоки не переносят нагрузок на изгиб и велика вероятность их растрескивания и разрушения.
- Заглубленный ленточный или совмещенный свайно-ленточный фундамент поможет решить проблему обустройства смотровой ямы и погреба, поскольку при использовании в качестве фундамента монолитной плиты их оборудование невозможно.
Порядок выполнения работ:
- Разметка на грунте места расположения будущего сооружения с помощью колышков.
- Рытье ямы под фундамент.
- Засыпка песка на дно выкопанной траншеи. Увлажнение песчаного слоя и его уплотнение.
- Укладка металлической арматуры (прут имеет толщину от 6 до 8 мм).
- Заливка бетоном. Раствор готовится из расчета 1 часть цемента, 2 части морского песка (применение речного песка снижает прочность), 6 частей щебня мелкой фракции. Сухие компоненты тщательно перемешиваются в бетономешалке, и только после этого производится добавление воды. Заливку раствором стоит осуществлять после постройки опалубки.
- Укладка арматурной сетки поверх бетонной заливки.
- Увлажнение бетонной заливки и защита ее от атмосферных осадков в течение полутора месяцев.
- Начало строительства стен.
Строительство гаража своими руками: пошаговая инструкция с фотопримерами
Многое зависит от того, насколько хорошо был продуман проект гаража
Что же касается важности каждого из этапов строительства, то не стоит их делить на более или менее приоритетные. Каждый из них требует внимательного и аккуратного подхода. Начинать, естественно, следует с подготовительных работ
Начинать, естественно, следует с подготовительных работ.
Как правильно сделать разметку под фундамент
После того, как место постройки гаража определено, необходимо разровнять площадку и оборудовать поблизости участок для складирования материала, который будет использован в работе. Далее, при помощи рулетки нужно разметить линии расположения фундамента согласно проекту и, забив колышки, протянуть между ними бечёвку. В качестве колышков лучше использовать обрезки арматуры, которые легко забиваются в землю.
Вот так размечается местность перед началом работ ФОТО: charpenteberleau.com
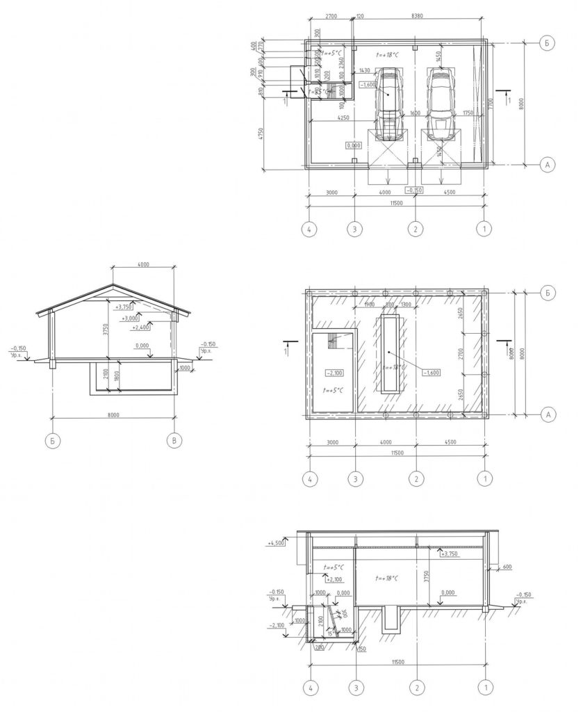
Смотровая яма для гаража: нюансы обустройства
После того, как разметка будущих стен выполнена, необходимо определиться со смотровой ямой. Она должна располагаться ровно по центру ворот, при условии, что в гараже вдоль одной из стен не будут расположены крупногабаритные стеллажи или полки, которые могут помешать въезду автомобиля
Именно о таких нюансах шла речь, когда говорилось о важности учёта в проекте каждой мелочи
Проекты
Что нужно учесть, составляя проект гаража из газобетона?
Минимальные размеры
Габариты современной бюджетной малолитражки — примерно 4,5х1,7 метра при высоте 1,5 — 1,6 метра.
Размеры одной из популярнейших малолитражек — Хендай Солярис
Однако автомобиль не должен входить в гараж, как рука в перчатку: есть несколько дополнительных факторов, ограничивающих минимальные размеры гаража.
- Минимальная высота потолка или крыши — 2,4 метра. Это значение, общее для всех жилых и технических помещений, прописанное во всех строительных правилах. При меньшей высоте, находиться в гараже будет откровенно некомфортно;
- Разумный минимум длины гаража — 6 метров. В этом случае, вы сможете обойти автомобиль при закрытых воротах и сзади, и спереди;
- Минимальная ширина — 4 метра. Она оставит в гараже место для маневра машины и для стеллажей с инструментами, маслами, антифризами и прочими полезными для автовладельца вещами;
Размеры гаража, обеспечивающие его комфортное использование
Ширина ворот не должна быть меньше 2,6 — 3 метров. Пространство для маневра, помните? Вы не всегда будете заезжать в ворота строго под прямым углом, и точно по их центру.
Отдельностоящий гараж
Вот несколько вариантов проектов, рассчитанных на разный бюджет строительства и, соответственно, обеспечивающих разный уровень комфорта владельцу.
Гараж в доме
Если вы только начинаете строительство на новом участке, то, возможно, вам покажется привлекательной идея сделать гараж частью дома. Выгоды решения очевидны:
- Отсутствие отдельных построек на участке, а значит — экономия свободного пространства;
- Закрытый от непогоды переход из гаража в жилые помещения;
- Рациональное использование площади цокольного или подвального этажа.
Если вас интересуют проекты коттеджей из газобетона с гаражом, мы предложим вашему вниманию еще несколько вариантов.
Газобетонные блоки

Газобетон – подвид ячеистого бетона, изготовленный из цемента, воды, кварцевого песка, извести и газообразователя (обычно это алюминиевая пудра). Компоненты смешиваются и подаются в автоклав, где происходит их вспенивание и затвердевание. Газобетонные блоки для строительства гаража хороши тем, что при невысоком объемном весе обладают достаточной прочностью, превосходной паропроницаемостью и низкой теплопроводностью.
{loadposition Adsense}
Данный материал легко поддается механической обработке: его можно резать, пилить, обтесывать, сверлить. Газобетонные блоки используются для возведения наружных/внутренних стен, утепления.
Пенобетонные блоки

Пенобетон получают посредством смешивания воды, цемента, образователя пены, различных наполнителей. Материал высокой плотности применяется для сооружения перекрытий между этажами, фундамента. Менее плотный пенобетон используется для обустройства перегородок, заполнения пустот, организации звуко- и теплоизоляции.
Пенобетонные блоки повсеместно применяются в малоэтажном строительстве из-за своей прочности и дешевизны. Такие здания практически не подвергаются износу и старению, не гниют, не осыпаются и не разрушаются. Качественный пенобетон устойчив к воздействию агрессивных химических веществ. Ему не повредит попадание капель технического масла, ацетона или бензина. В пользу этого материала говорит и его негорючесть.
Какие строительные блоки лучше?
Какие использовать блоки для строительства гаража? Зависит от ваших финансовых возможностей и ряда внешних факторов (климат, условия эксплуатации). Например, керамзитобетонные блоки отличаются более низким влагопоглощением и более высокой влагостойкостью, чем газобетонные, которые активно абсорбируют влагу. С другой стороны, керамзит имеет меньшую устойчивость к ударным нагрузкам, чем обычные бетоны.
Чтобы определиться, какие строительные блоки вам подойдут, ознакомьтесь со сравнительной характеристикой их основных параметров.
| Характеристика | Пенобетон | Шлакоблок | Газобетон | Керамзитобетон |
| Объемный вес, кг/м3 | 450-900 | 500-1000 | 200-600 | 700-1500 |
| Прочность, кг/см2 | 10-50 | 25-75 | 5-20 | 50-150 |
| Теплопроводность, Вт/мГрад | 0,2-0,4 | 0,3-0,5 | 0,15-0,3 | 0,15-0,45 |
| Влагопоглощение | 95% | 75% | 100% | 50% |
| Усадка | 0,6-1,2 | — | 1,5 | — |
| Морозостойкость (число циклов) | 25 | 20 | 10 | 30-50 |
Этапы постройки гаража своими руками
После подготовительных работ и закупки материала, можно приступать непосредственно к постройке гаража. Эта работа проводится в несколько этапов, каждый из которых, несомненно, важен. Мы немного расскажем о ключевых моментах и особенностях каждого из этапов.
1. Разметка территории.
Разметку следует выполнить очень точно. Воспользуйтесь колышками и бечевкой. Вы должны реально представлять себе будущий гараж. Следите за углом между нитями: он должен быть ровно 90°.
2. Закладка фундамента.
Учитывая легкость материала для стен, нет необходимости делать глубокую и трудоемкую закладку фундамента. Но тут стоит учитывать особенности местности и грунта. Если нет никаких усложняющих обстоятельств, то будет достаточно фундамента в 0,5-0,8 м.

3. Кладка стен.
После застывания фундамента, можно смело приступать к работе над стенами. Установка стен не является сверхсложной работой: пеноблоки укладываются друг на друга, и закрепляются при помощи раствора
Начинать следует обязательно с угла! И соблюдайте осторожность и аккуратность, блоки должны лежать ровно и крепко. В этом вопросе строительный уровень – главный помощник. 4
Установка ворот и монтаж укрепляющей балки
4. Установка ворот и монтаж укрепляющей балки.
Монтаж ворот не самая легкая задача. Самым простым решением станут обычные распашные ворота с петлями. Короб лучше вмонтировать в стену, так конструкция будет устойчивее.
Чтоб ворота были более надежными с внутренней стороны над ними устанавливают балку. Балка должна быть с обоих сторон немного длиннее проема.
5. Кровельные работы.
Когда речь идет о строительстве гаража из блоков, не многие сразу думают о крыше. А ведь это именно та часть, которая будет защищать ваш автомобиль от дождя и снега. Самый простой вариант – односкатная крыша, но простой не значит лучший. Вариантов для возведения крыши множество – выбирайте тот, с которым сможете справиться.

6. Пол
Когда гараж почти готов, самое время заняться полом. Лучший вариант – стяжка бетоном. Такое покрытие довольно прочное и долговечное. К тому же не требует особого ухода или дальнейшего благоустройства.
https://www.youtube.com/watch?v=DCKM31ScQRE
Нужно понимать, что самостоятельное возведение гаража из блоков ответственная и трудная задача. Строительство требует не только много сил и времени, но и определенных знаний и навыков. Поэтому иногда более правильным решением будет доверить это дело профессионалам. Конечный результат обойдется несколько дороже, зато качество каждого этапа работы будет соответствовать техническим требованиям. Однако гараж из пеноблоков, построенный собственными руками, станет объектом вашей гордости!

Фундамент ленточный под гараж
Ленточный фундамент становится всё более популярным. Его используют во многих проектах, благодаря относительно небольшой затратности, по сравнению с плитным, и хорошим несущим качествам. Если для гаража вам нужна смотровая яма или погреб, ленточный фундамент позволяет без труда их соорудить.
Перед возведением монолитного ленточного фундамента для гаража нужно рассчитать его глубину и ширину.
Сильно распространён мелкозаглубленный ленточный фундамент. Он довольно экономичный. Для его возведения необходимо небольшое количество строительных материалов: опалубки, арматуры и железобетона. Минимальная глубина ленточного фундамента 40 см. Такой фундамент можно возводить если грунт под ним не пучинистый, не сыпучий. Не допускается строительство на органическом грунте. Большинство других грунтов прекрасно подходят для ленточного монолитного фундамента.
Ленточный фундамент закладывают в глубину до 2-3 м. На пучинистых грунтах фундамент под гараж опускается ниже максимальной глубины промерзания. На сыпучих грунтах рекомендуется устанавливать подошву фундамента как можно глубже. Чем глубже фундамент, тем больше сопротивление сжатию. У глубокозаглубленного фундамента риск значительной усадки меньше.
Ширина фундамента должна минимум на 10 см быть больше ширины стен.
После разметки расположения ленточного фундамента, нужно вырыть котлован на глубину его залегания с припуском песчаной подушки на 10-20 см.
Заливка ленточного фундамента под гараж может осуществиться двумя способами.
Более распространённый — установка опалубки на полную высоту всех стенок фундамента, потом армирование и заливка железобетонной смесью.
Менее распространено закладывание ленточного фундамента в два этапа. Несколько подходов необходимо, если над фундаментом трудится небольшая команда работников. Можно не успеть за один день сделать в бетономешалке необходимое количество смеси. Если появилась проблема с нехваткой времени, сначала заливают основную часть фундамента прямо в траншею, предварительно сделав армирование. После затвердения железобетона устанавливают и закрепляют опалубку на необходимую высоту и снова заливают фундамент до конца.
Какая должна быть опалубка для фундамента под гараж, определяют в зависимости от бюджета на строительство гаража и его общего дизайна.
Существует несъёмная опалубка — металлическая, железобетонная и из пенопостирола. Опалубку такого вида нужно обшивать материалом, который можно выбрать в соответствии с общим дизайном гаража. При использовании несъёмной опалубки не придётся тратить время на её снятие.
Несъёмная опалубка изготавливается из деревянных досок или листов фанеры. Для установки щиты опалубки плотно стыкуют между собой и закрепляют вязальной проволокой.
Армировать фундамент нужно для укрепления его несущих качеств.
Арматурный каркас состоит из как минимум двух рядов вертикальных прутьев. Горизонтальные прутья обычно располагаются с шагом 30 см. Их количество увеличивается пропорционально глубине фундамента.
После установки опалубки и армирования фундамент под гараж нужно залить железобетоном. Готовую смесь можно купить в строительном магазине или изготовить её самостоятельно. Нужно смешать цемент, песок, щебень в пропорции 1:3:5. Заливать фундамент можно в два этапа, но гораздо более прочным будет залитый в один приём монолитный ленточный фундамент.
Монолитный фундамент часто выбирается строителями. Высокие материальные затраты и достаточно сложный процесс установки оправдываются хорошими несущими качествами, высокой износоустойчивостью и возможностью возведения на практически любом типе грунта.

Фундамент под гараж из шлакоблока. Об этом вы прочитаете в следующей нашей статье. А тут вы узнаете, как залить фундамент под гараж своими руками.
Глава 3: Основы строительства гаража блочного типа
Глава 3 посвящена основам строительства гаража блочного типа. В этой главе мы рассмотрим процесс поэтапного строительства гаража, начиная от подготовки фундамента и заканчивая установкой дверей и окон.
Подготовка фундамента
Первым шагом в строительстве гаража блочного типа является подготовка фундамента. Фундамент должен быть устойчивым и прочным, чтобы выдерживать вес гаража. Подготовка фундамента включает в себя следующие шаги:
- Очистка участка от растительности и мусора.
- Выравнивание грунта и установка опалубки.
- Установка арматуры и заливка бетоном.
- Ожидание полного высыхания бетона.
Монтаж блоков стен и крыши
После подготовки фундамента начинается монтаж блоков стен и крыши. Блоки должны быть установлены в соответствии с проектом и с учетом необходимой прочности и устойчивости гаража. Монтаж блоков стен и крыши включает в себя следующие шаги:
- Установка первого ряда блоков.
- Установка угловых блоков и определение углов гаража.
- Установка оставшихся блоков стен и крыши, при необходимости обрезка блоков.
- Установка стропильной системы и кровельного материала.
Установка дверей и окон
После установки блоков стен и крыши необходимо установить двери и окна. Двери и окна должны быть установлены так, чтобы обеспечить безопасность и удобство использования гаража. Установка дверей и окон включает в себя следующие шаги:
- Выбор и установка дверей.
- Выбор и установка окон.
- Установка замков и ручек на дверях и окнах.
Размещение вентиляционных отверстий
Вентиляционные отверстия необходимы для обеспечения правильной вентиляции гаража. Они также помогают предотвратить конденсацию внутри гаража. Размещение вентиляционных отверстий включает в себя следующие шаги:
- Определение места установки вентиляционных отверстий.
- Установка вентиляционных отверстий.
Примеры
В этой главе мы представим несколько примеров поэтапного строительства гаража блочного типа. Рассмотрим различные варианты монтажа блоков стен и крыши, установки дверей и окон, а также размещения вентиляционных отверстий. Дадим краткие описания каждого проекта и покажем, какие материалы использовались в каждом проекте.
Пример 1. Гараж с металлической крышей и дверью. Для этого проекта использовались блоки стен из кирпича и металлическая крыша. Дверь была выбрана из металла для обеспечения безопасности.
Пример 2. Гараж с деревянной крышей и окнами. Для этого проекта использовались блоки стен из ячеистого бетона и деревянная крыша. Окна были установлены для обеспечения естественного освещения и вентиляции.
Керамзитобетонные блоки
Керамзитобетон является высокоэкологичным материалом, обладающим превосходными звуко- и теплоизоляционными характеристиками. По экологичности он сравним с керамическим кирпичом.
Керамзитобетонные блоки производят из обожженной глины (керамзита), песка, воды и цемента. Посредством вибропрессования смесь исходных материалов уплотняется, формируется в блоки и проходит тепловую обработку.
В результате получается высокопрочный материал, который с успехом применяется не только для строительства малоэтажных зданий, но и для возведения наружных стен высотных зданий.
Глава 8: Расчеты и таблицы
Глава 8 содержит расчеты и таблицы, необходимые для строительства гаража блочного типа. Эти расчеты и таблицы помогут вам определить количество материалов, необходимых для строительства, выбрать подходящие размеры и характеристики блоков, дверей, окон и других элементов, а также рассчитать нагрузки на фундамент и конструкцию гаража.
Расчет материалов для строительства гаража блочного типа
Для расчета материалов для строительства гаража блочного типа необходимо знать размеры гаража и тип используемых блоков. Обычно для строительства гаражей блочного типа используются стеновые блоки из ячеистого бетона или газобетона. Расчет материалов можно провести следующим образом:
- Определите общую площадь стен гаража, умножив периметр на высоту стен.
- Рассчитайте количество блоков, необходимых для постройки стен, разделив общую площадь стен на площадь одного блока.
- Определите количество цемента, песка и щебня, необходимых для производства блоков. Для этого можно использовать соотношение 1:3:5 (одна часть цемента, три части песка и пять частей щебня).
- Рассчитайте количество цемента, песка и щебня, необходимых для кладки блоков. Для кладки обычно используют цементный раствор в соотношении 1:3 (одна часть цемента и три части песка).
- Определите количество арматуры, необходимой для укрепления стен гаража. Для этого можно использовать примерно 0,1-0,2% от объема стен.
Таблицы с размерами и характеристиками блоков, дверей, окон и других элементов
Для выбора подходящих размеров и характеристик блоков, дверей, окон и других элементов можно использовать специальные таблицы. Например, таблицы с размерами и характеристиками блоков из ячеистого бетона или газобетона помогут выбрать подходящий размер и марку блоков.
Расчет нагрузок на фундамент и конструкцию гаража
Для правильного расчета фундамента и конструкции гаража необходимо учитывать нагрузки, которые будут действовать на него. Это могут быть нагрузки от снега, ветра, собственного веса конструкции и т.д. Расчет нагрузок можно провести с помощью специальных таблиц и нормативных документов.
Итак, для строительства гаража блочного типа необходимо провести ряд расчетов и использовать специальные таблицы. Это поможет правильно выбрать размеры и характеристики блоков, дверей, окон и других элементов, а также рассчитать необходимое количество материалов и нагрузки на фундамент и конструкцию гаража.
Примеры таблиц
Примеры таблиц для выбора размеров и характеристик блоков, дверей, окон и других элементов для гаража блочного типа:
Таблица размеров и характеристик блоков из ячеистого бетона:
| Размер блока | Ширина, мм | Высота, мм | Длина, мм | Марка прочности | Плотность, кг/м3 |
|---|---|---|---|---|---|
| 400 × 200 × 200 | 400 | 200 | 200 | D500 | 700 |
| 500 × 200 × 200 | 500 | 200 | 200 | D500 | 800 |
| 600 × 200 × 200 | 600 | 200 | 200 | D500 | 900 |
| 600 × 300 × 200 | 600 | 300 | 200 | D500 | 1100 |
Таблица размеров и характеристик дверей для гаража блочного типа:
| Размер двери | Ширина, мм | Высота, мм | Толщина, мм | Материал |
|---|---|---|---|---|
| 2,5 м × 2 м | 2500 | 2000 | 40 | Сталь |
| 3 м × 2,5 м | 3000 | 2500 | 40 | Сталь |
| 3 м × 3 м | 3000 | 3000 | 40 | Сталь |
Таблица размеров и характеристик окон для гаража блочного типа:
| Размер окна | Ширина, мм | Высота, мм | Остекление | Материал |
|---|---|---|---|---|
| 500 × 500 | 500 | 500 | Двойное | ПВХ |
| 1000 × 500 | 1000 | 500 | Двойное | ПВХ |
| 1500 × 500 | 1500 | 500 | Двойное | ПВХ |
Таблица расчета нагрузок на фундамент и конструкцию гаража:
| Нагрузка | Значение, кН/м² |
|---|---|
| Снеговая нагрузка | 1,5 |
| Ветровая нагрузка | 0,7 |
| Собственный вес | 2,5 |
| Нагрузка от машин | 5,0 |
Итак, таблицы помогут вам выбрать подходящие размеры и характеристики блоков, дверей, окон и других элементов для гаража блочного типа, а также рассчитать необходимые нагрузки на фундамент и конструкцию гаража. Это позволит вам правильно спланировать строительство гаража и выбрать необходимые материалы.
Расчет расходов
Если рассматривать пеноблоки как вариант материала, пригодного для постройки гаража, то легко рассчитать необходимую смету затрат, требуемых для строительства данной конструкции. Первая стадия затрат — покупка пеноблоков:
- Стеновые блоки — средняя стоимость порядка 3 тысяч рублей за м3 (габариты блока — 60/30/20см). Цена за один блок — 100 рублей.
- Перегородные блоки — средняя стоимость в пределах 2800 eрублей за 1 м3.
Помимо приобретения блоков, для строительства понадобится стандартный набор стройматериалов:
- Цемент. Цена за 50 кг (М300) — в пределах 250 рублей.
- Песок. Цена за один кубический метр — в пределах 200 рублей.
- Щебень — 1700 рублей за 1 м3.
- Гравий — 1200 рублей за 1 м3.
- Утеплитель — в пределах 1300 за 1 м2.
- Гидроизоляция — от 40 рублей за 1 м2.
Как мы видим, строительство гаража, даже учитывая малую стоимость пеноблоков, будет стоить суммы денег. Есть способы, которые помогут сэкономить на затратах строительства:
- Пол в гараже засыпают щебенкой, а не делают монолитный слой из цемента. Надо только предварительно уплотнить грунт перед засыпкой.
- Изготовление фундамента на столбах, что поможет сэкономить на цементном растворе.
- Покупка материалов может обойтись дешевле, если приобретать их в зимнее время.
Плюсы и минусы
В целом, достоинства и недостатки хозблока на даче, построенного из газоблоков или пеноблоков
Доступная цена
Крупный формат, ускоряет сроки строительства
Можно построить хозблок из газобетона своими руками, материал легко режется и пилится без электрического инструмента
Стены сарая будут тёплые и непродуваемые
В неотапливаемом помещении нет необходимости заботиться о защите кладки от пара изнутри
Можно выбрать любой вариант отделки снаружи, в том числе монтировать невентилируемымй фасад
Длительность срока службы
Огнестойкость
При постоянном воздействии влаги газобетон способен впитать до 30% воды от собственной массы. Но он столь же легко отдаёт её в атмосферу, поэтому стены неотапливаемых зданий можно эксплуатировать без внешней отделки
Хорошая геометрия позволит вести кладку на клею, что позволит сократить расход кладочной смеси
Ячеистые бетоны не обладают высокой прочностью и плохо воспринимают изгибающие нагрузки. Фундамент нужно обязательно делать монолитный, иначе на кладке будут образовываться трещины.
Пористые основания слабо сопротивляются вырывающим нагрузкам, поэтому навешивать на стены сарая тяжёлые полки нужно с применением специализированного крепежа. А лучше, установить напольные стеллажи.
Подготовительные работы
После выбора материала важно понять, как будет выглядеть будущий гараж, где на участке он будет располагаться и сколько материалов понадобиться. К каждому этапу подготовительных работ следует подойти с максимальной ответственностью, так как от правильности расчетов во многом будет завесить результат
Проектирование
Даже если вы не сталкивались с необходимостью создания проекта – не беда. Вы можете, например, скачать в интернете уже готовый проект и подогнать его под нужные размеры или же, вооружившись листом и бумагой, создать свой. Но помните, что вам нужно не просто определить какая высота будет у стен, но и ответить на более важные вопросы.
Прежде чем заняться чертежом проекта убедитесь, что учитываете следующие моменты:
- качество грунта и глубину залегания грунтовых вод;
- расположение на участке: не будет ли постройка мешать проходу;
- будете ли вы делать смотровую яму;
- нужно ли дополнительное место для инструментов и пр.
Только ответив на эти вопросы, можно приступать к проекту. Но будьте предельно внимательны и перепроверьте расчеты несколько раз.

Расчет материалов
Следующий шаг – расчет количества материалов. Учитывая то, что пеноблок не самый дешевый материал (особенно если вы отдали предпочтение газосиликату), стоит подсчитать количество необходимого материала максимально точно.
Обратите внимание, что нужно знать какого размера будут пеноблоки. Только учитывая этот параметр, вы сможете двигаться дальше
Подсчет не составит труда: длину стены разделить на длину пеноблока, тоже самое проделать с высотой. Если это возможно, упростите себе задачу и подгоните размеры под количество целых пеноблоков. Так и расчет делать проще и в процессе строительства это сыграет вам на руку.
Помимо подсчета количества основного материала, задумайтесь и о дополнительных. Цемент или клей для кладки, перчатки, рабочие инструменты – это все лучше покупать заранее. Помимо этого, следует позаботиться о приобретении материалов, из которых будет сделана крыша, ворота и система вентиляции.

Плюсы и минусы пеноблоков и газоблоков
Решив сделать хозблок на даче из газоблоков или пеноблоков, нужно всесторонне оценить плюсы и минусы материалов. По свойствам пенобетон и газобетон схожи. Оба типа блоков относятся к легким бетонам, имеют правильную геометрическую форму, высокую теплопроводность, негорючесть. Рассмотрим технические характеристики материалов, которые имеют значение при строительстве хозяйственного строения:
| Оцениваемый параметр | Газобетонные блоки | Пенобетонные блоки |
| Теплопроводность | 0.10…0.14 | 0.09…0.38 |
| Плотность, кг/м³ | 400…800 | 400…1200 |
| Водопоглощение, % от веса | 25 | 10…16 |
| Прочность | В25 | В25 |
| Паропроницаемость | 0.25 | 0.15 |
| Морозостойкость, циклов | не менее 25 | не менее 10 |
| Звукоизоляция | отличная | хорошая |
| Толщина стены для Московской обл. , см | 20…40 | 40…60 |
| Кладка на материал | только клей | клей или ЦПС |
| Толщина швов в кладке, мм | 3…5 | 7…10 |
| Срок эксплуатации, лет | от 50 | до 50 лет |
Как видно из таблицы, основное отличие газобетона от пенобетона — это морозостойкость, толщина кладочного шва, толщина стен, а значит и расход блоков, водопоглощение. На вопрос, можно ли сделать из блока газобетона сарай — ответ: разумеется – да. При выборе материала нужно учитывать такие параметры как наличие соответствующих материалов в вашем регионе, тип фундамента для сарая.
Рекомендации инженеров-строителей будут следующими:
- Для возведения несущих стен и перегородок лучше использовать газобетонные блоки. У них выше теплосохраняющие свойства и эксплуатационный ресурс, меньше расход за счет более тонких стен.
- Ограничений по применению газобетонных блоков на фундамент сарая практически не существует. Единственный аспект – это выбор оптимального и надежного фундамента для конкретного типа грунтов, наличия грунтовых вод, перепадов по высотам.
- Фундамент для сарая из газобетона лучше сделать из монолитного железобетона – ленточный, плитный или свайно-ростверковый. Это оптимальные варианты, которые подойдут практически для любых грунтов.
Этапы постройки гаража своими руками
После подготовительных работ и закупки материала, можно приступать непосредственно к постройке гаража. Эта работа проводится в несколько этапов, каждый из которых, несомненно, важен. Мы немного расскажем о ключевых моментах и особенностях каждого из этапов.
1. Разметка территории.
Разметку следует выполнить очень точно. Воспользуйтесь колышками и бечевкой. Вы должны реально представлять себе будущий гараж. Следите за углом между нитями: он должен быть ровно 90°.
2. Закладка фундамента.
Учитывая легкость материала для стен, нет необходимости делать глубокую и трудоемкую закладку фундамента. Но тут стоит учитывать особенности местности и грунта. Если нет никаких усложняющих обстоятельств, то будет достаточно фундамента в 0,5-0,8 м.
3. Кладка стен.
После застывания фундамента, можно смело приступать к работе над стенами. Установка стен не является сверхсложной работой: пеноблоки укладываются друг на друга, и закрепляются при помощи раствора
Начинать следует обязательно с угла! И соблюдайте осторожность и аккуратность, блоки должны лежать ровно и крепко. В этом вопросе строительный уровень – главный помощник
4. Установка ворот и монтаж укрепляющей балки.
Монтаж ворот не самая легкая задача. Самым простым решением станут обычные распашные ворота с петлями. Короб лучше вмонтировать в стену, так конструкция будет устойчивее.
Чтоб ворота были более надежными с внутренней стороны над ними устанавливают балку. Балка должна быть с обоих сторон немного длиннее проема.
5. Кровельные работы.
Когда речь идет о строительстве гаража из блоков, не многие сразу думают о крыше. А ведь это именно та часть, которая будет защищать ваш автомобиль от дождя и снега. Самый простой вариант – односкатная крыша, но простой не значит лучший. Вариантов для возведения крыши множество – выбирайте тот, с которым сможете справиться.
6. Пол
Когда гараж почти готов, самое время заняться полом. Лучший вариант – стяжка бетоном. Такое покрытие довольно прочное и долговечное. К тому же не требует особого ухода или дальнейшего благоустройства.
Нужно понимать, что самостоятельное возведение гаража из блоков ответственная и трудная задача. Строительство требует не только много сил и времени, но и определенных знаний и навыков. Поэтому иногда более правильным решением будет доверить это дело профессионалам. Конечный результат обойдется несколько дороже, зато качество каждого этапа работы будет соответствовать техническим требованиям. Однако гараж из пеноблоков, построенный собственными руками, станет объектом вашей гордости!


































